← Darlington Borough Council

Status

Awaiting decision Change of use
Received
30 Jan 2026
New homes
6

Full proposal

Conversion of existing Methodist Church (Use Class F1) to 6 No. flats (3 No. 2 bed and 3 No. 1 bed) (Use Class C3), including erection of part second storey extension, installation of 1.4 m timber boundary fence, cycle storage provision and associated works

Documents

Application Form
Archived · Original link
Comment Consultee
Archived · Original link
Comment Consultee
Archived · Original link
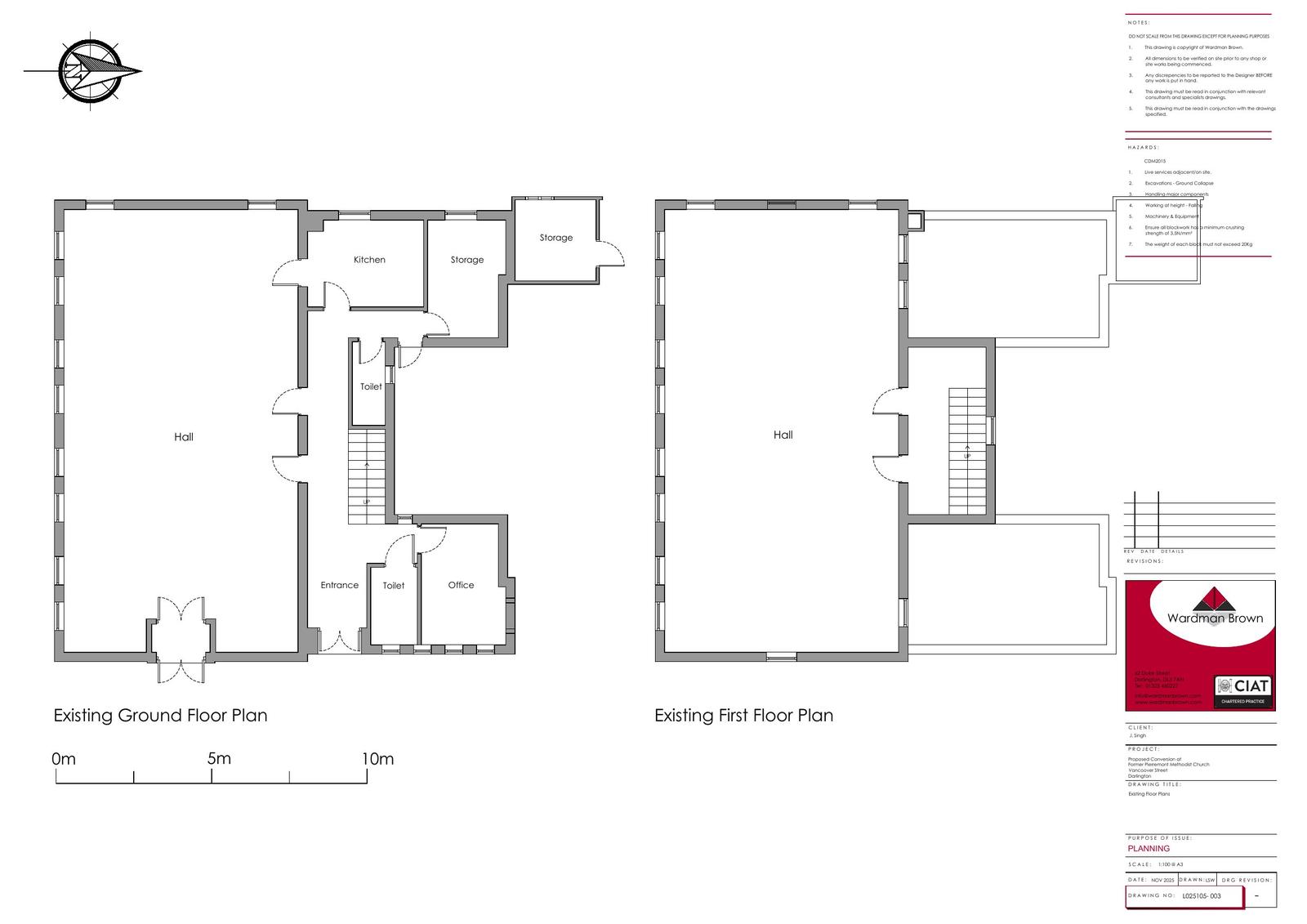
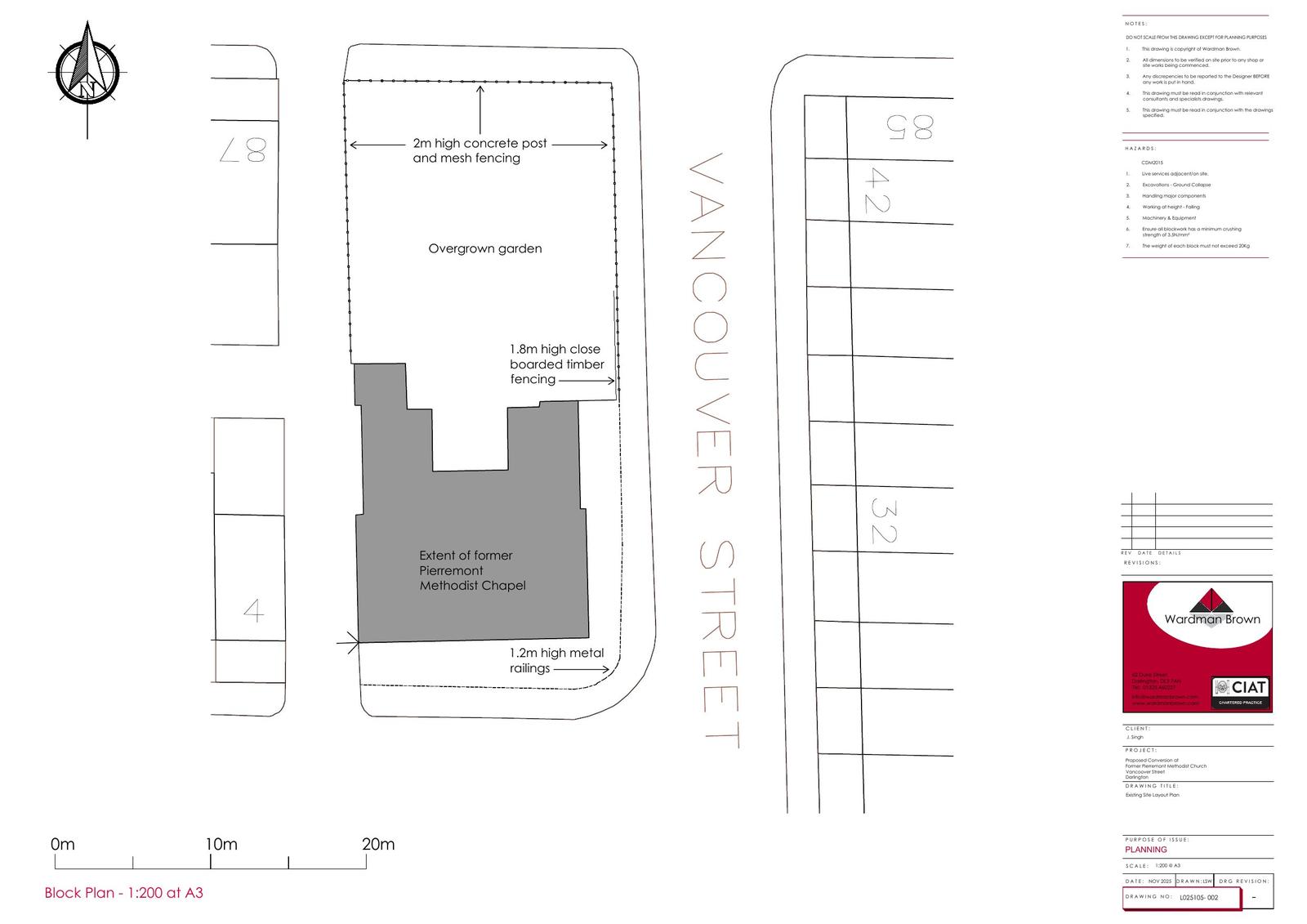
Drawing
Archived · Original link
Drawing
Archived · Original link
Drawing
Archived · Original link
Comment Consultee
Archived · Original link
Location Plan
Archived · Original link
NUTRIENT CALCULATOR TEESMOUTH
Report
Not yet archived · Original link
Comment Objection
Archived · Original link
Drawing
Archived · Original link
Drawing
Archived · Original link
Drawing
Archived · Original link
Comment Consultee
Archived · Original link

Have your say

Your comment matters. Councils must consider every representation that raises material planning considerations.

Write a comment