← Darlington Borough Council

Status

Awaiting decision House extension
Received
04 Feb 2026
New homes
0

Full proposal

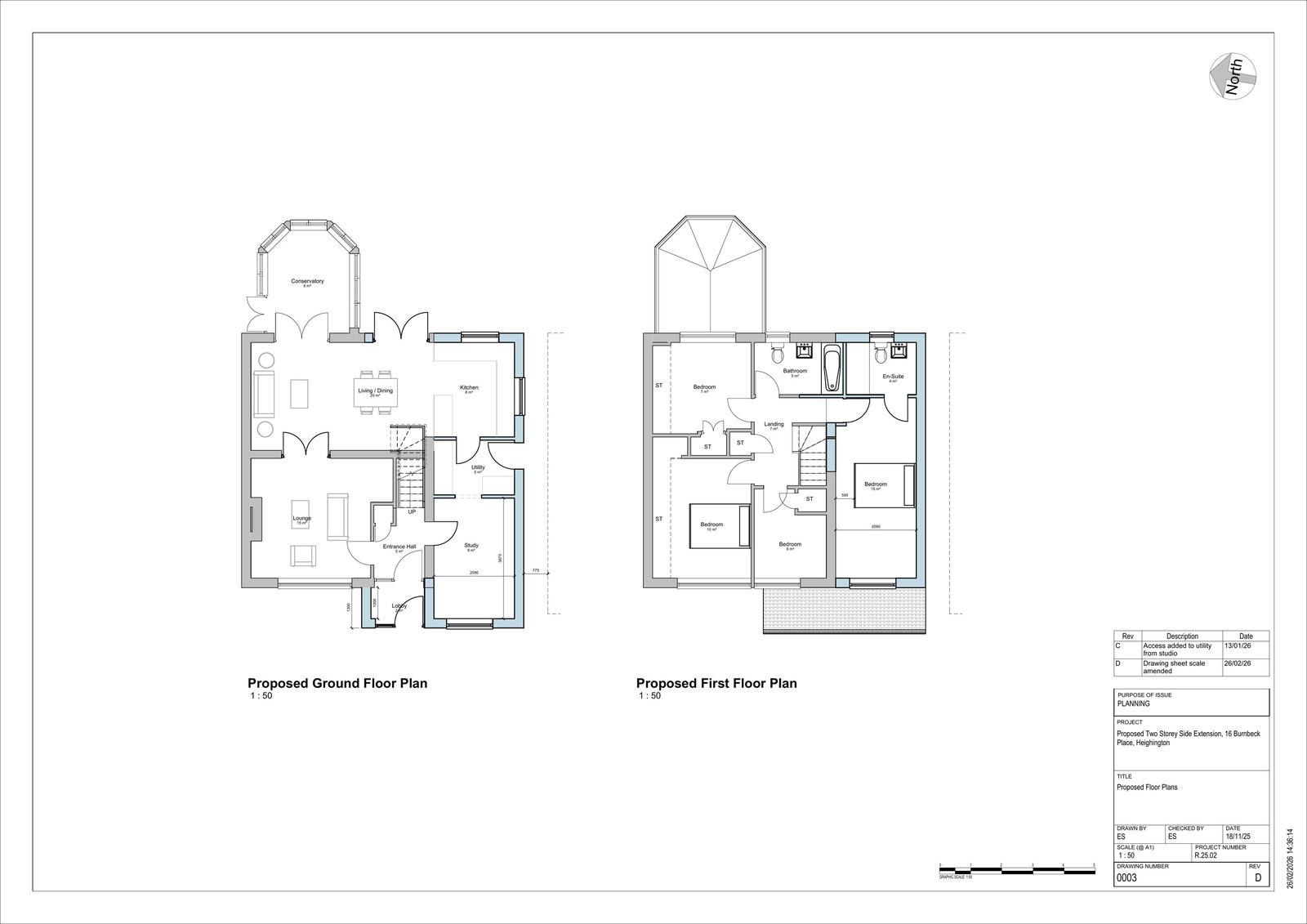
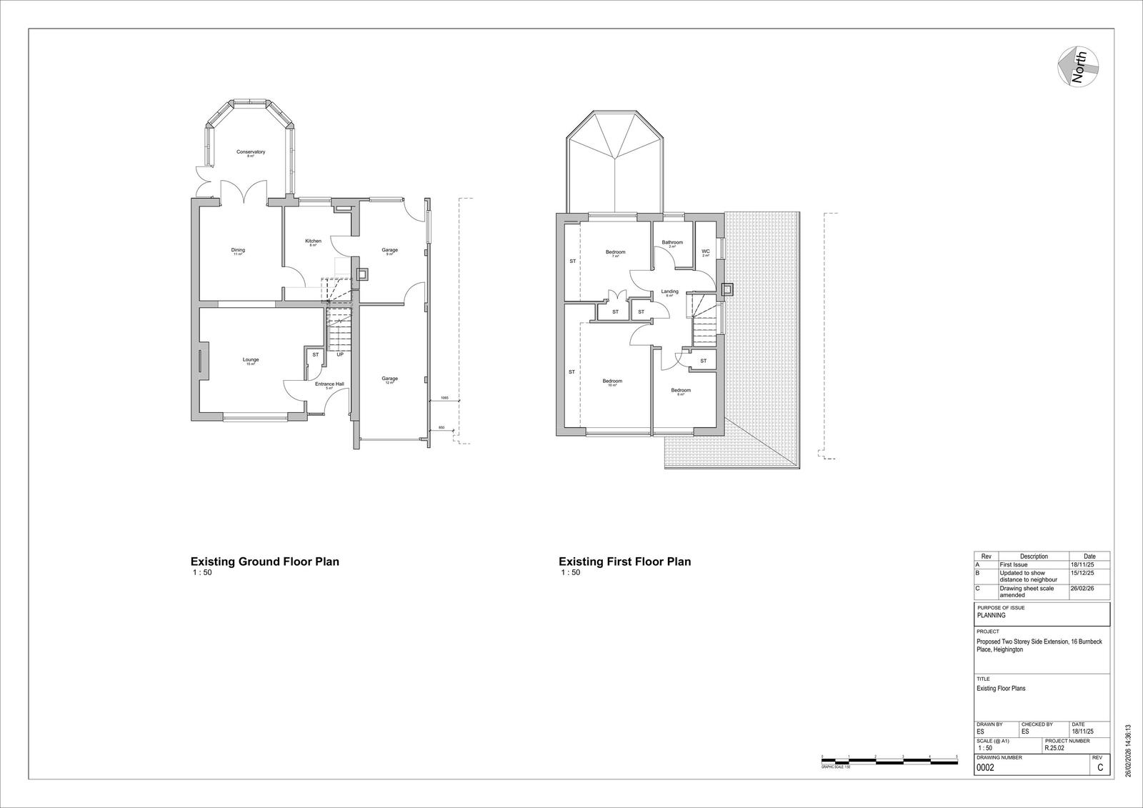
Erection of a two storey side extension incorporating conversion of existing garage into habitable space, single storey porch to front elevation together with associated external alterations

Documents

Application Form
Archived · Original link
Comment Consultee
Archived · Original link
Drawing
Archived · Original link
Drawing
Archived · Original link
Location Plan
Archived · Original link
Drawing
Archived · Original link
Drawing
Archived · Original link
Drawing
Archived · Original link

Have your say

Your comment matters. Councils must consider every representation that raises material planning considerations.

Write a comment