← Darlington Borough Council

Status

Awaiting decision House extension
Received
Last month
New homes
0

Full proposal

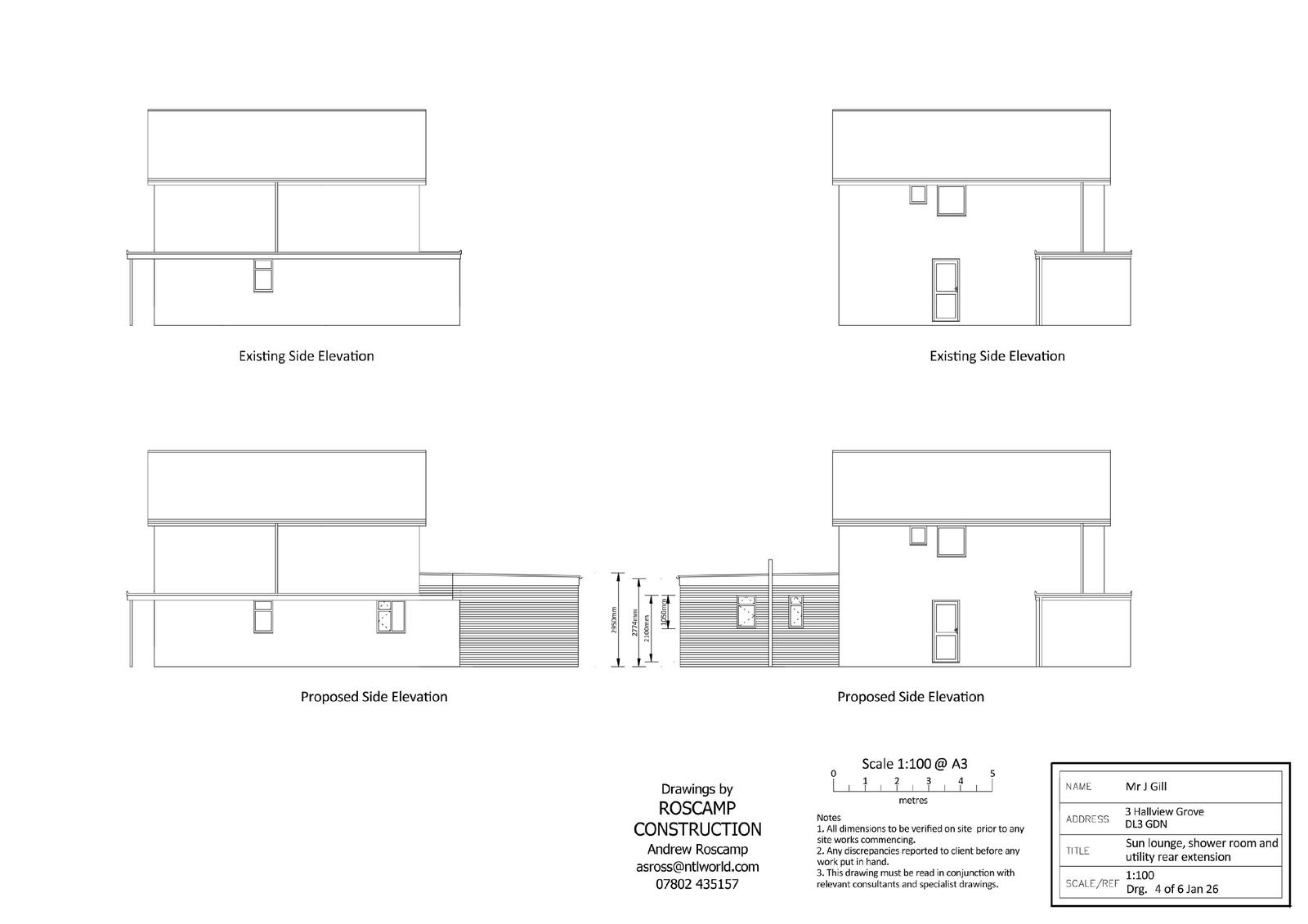
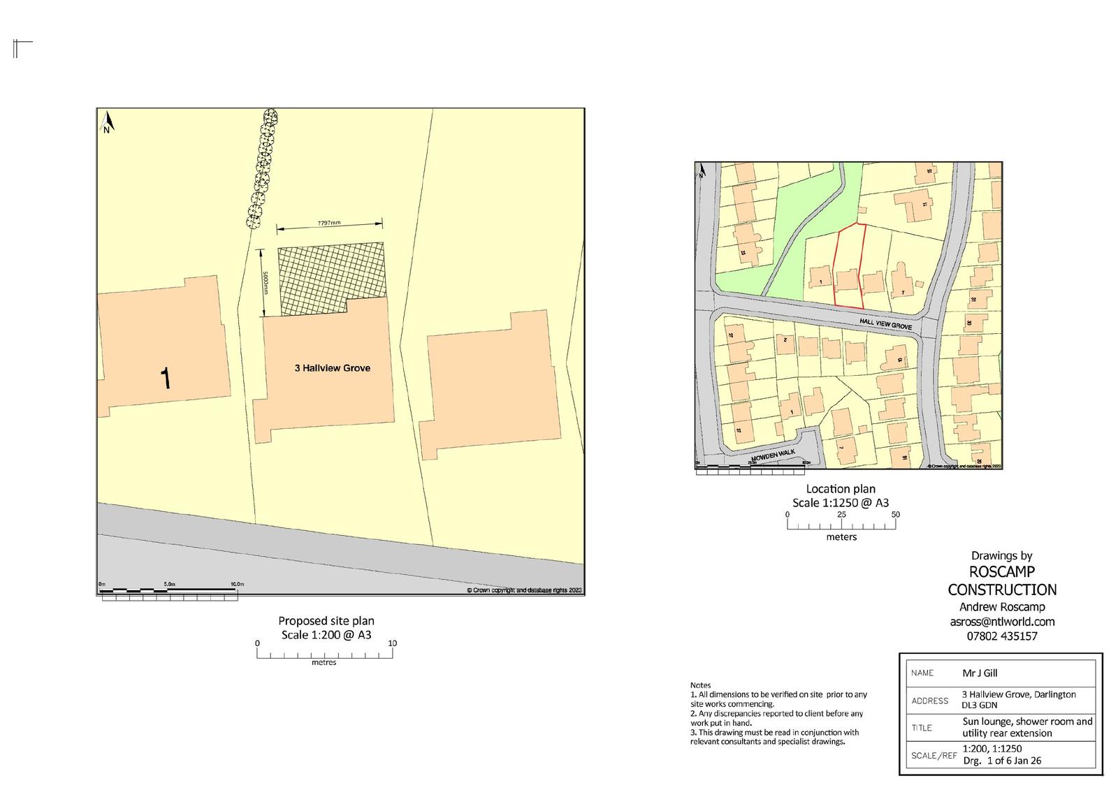
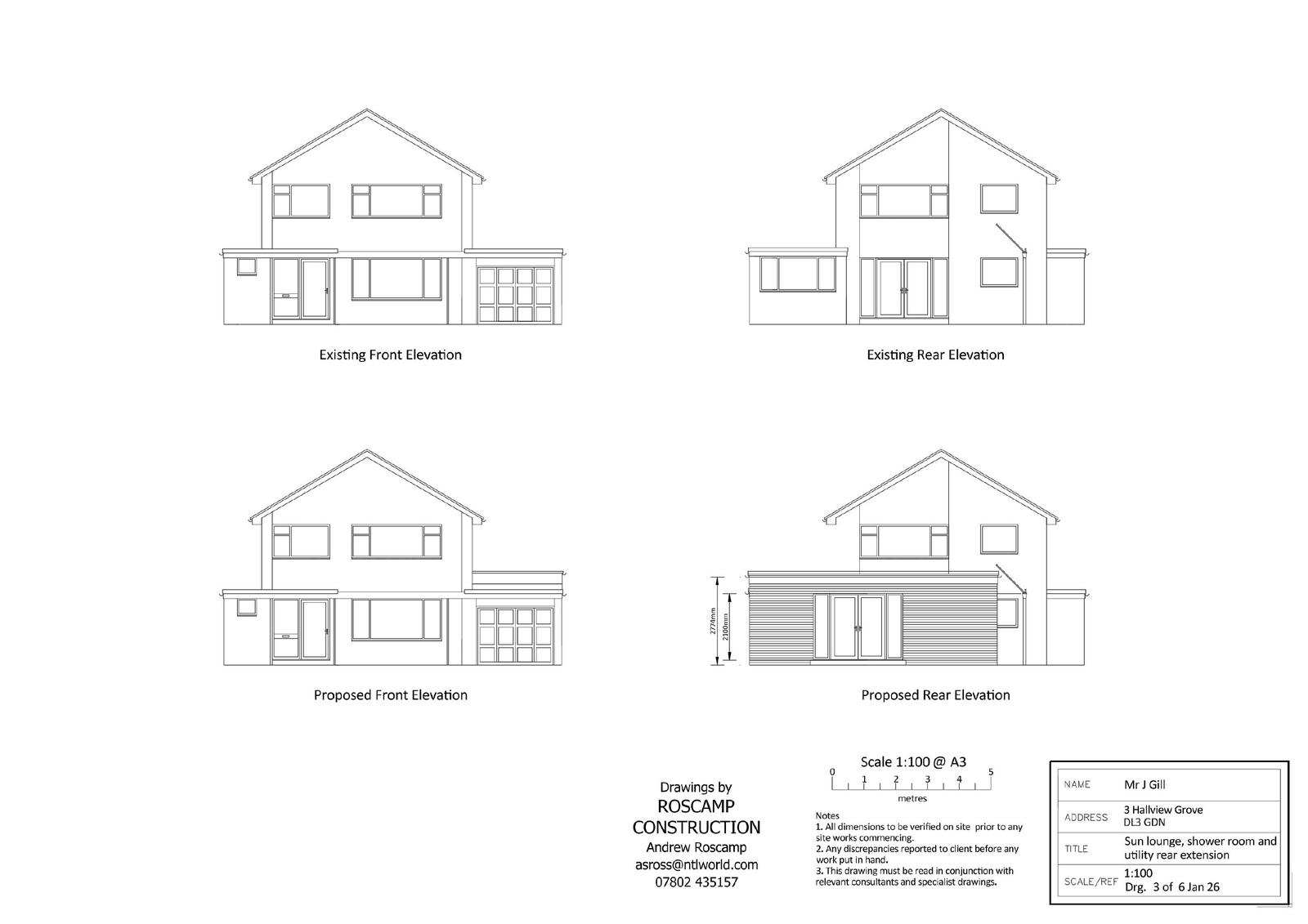
Erection of a single storey rear extension

Have your say

Your comment matters. Councils must consider every representation that raises material planning considerations.

Write a comment