← Darlington Borough Council

Status

Awaiting decision House extension
Received
Last month
New homes
0

Full proposal

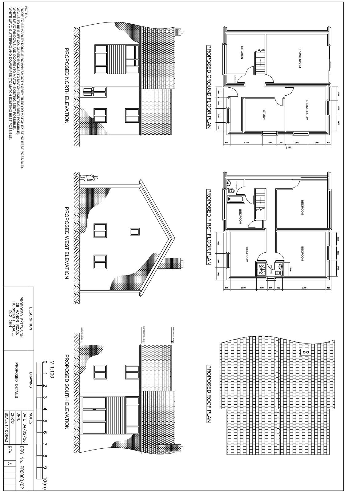
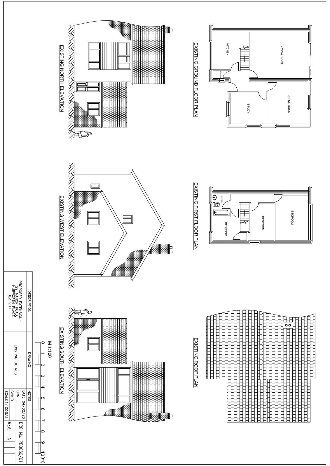
Erection of two storey extension to front (north) elevation incorporating first floor extension above existing single storey extension, together with re-roofing of entire property and associated works

Documents

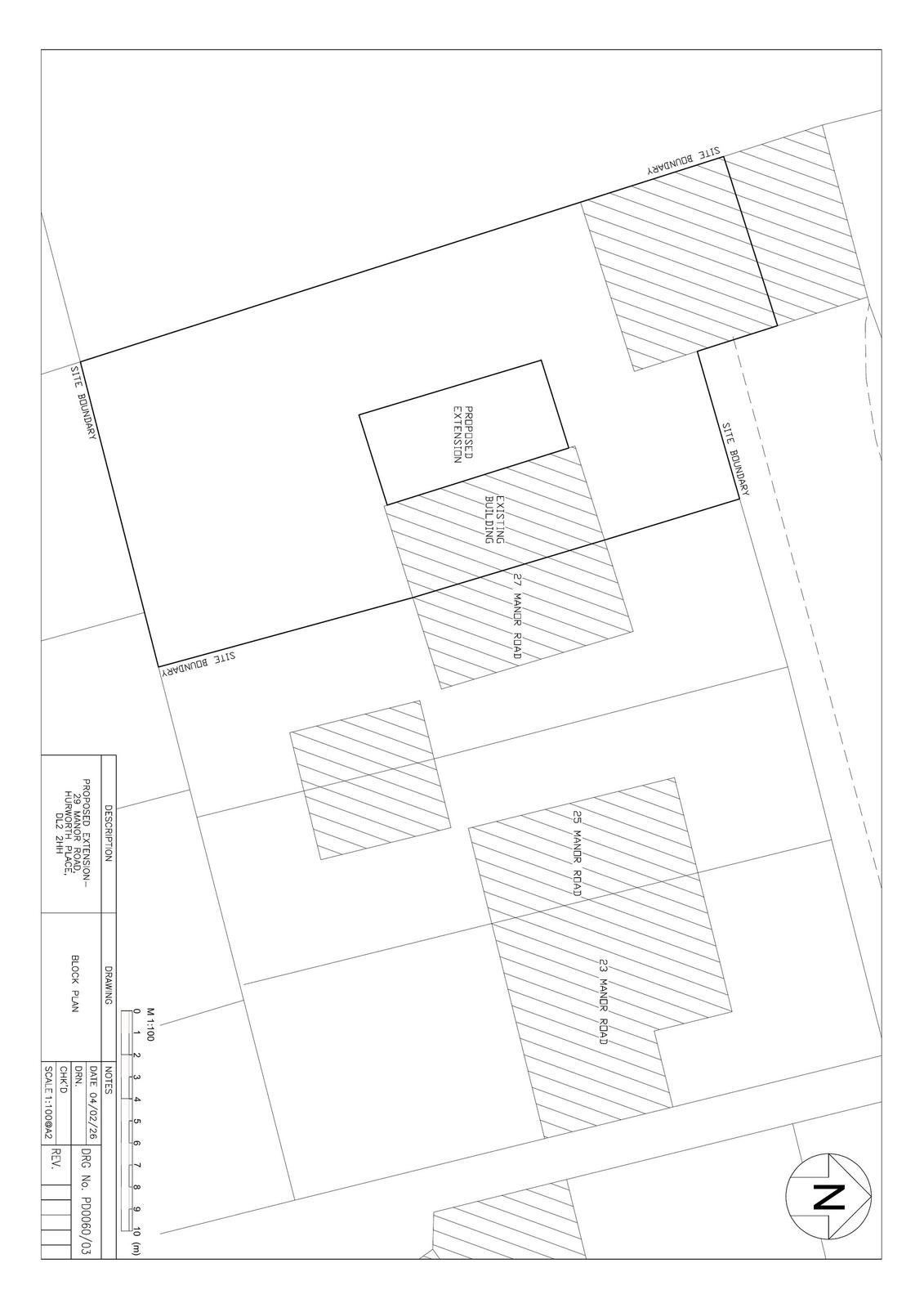
Location Plan
Archived · Original link
Application Form
Archived · Original link
Drawing
Archived · Original link
Air Quality Assessment
Archived · Original link

Have your say

Your comment matters. Councils must consider every representation that raises material planning considerations.

Write a comment