← Darlington Borough Council

Status

Awaiting decision House extension
Received
Last month
New homes
0

Full proposal

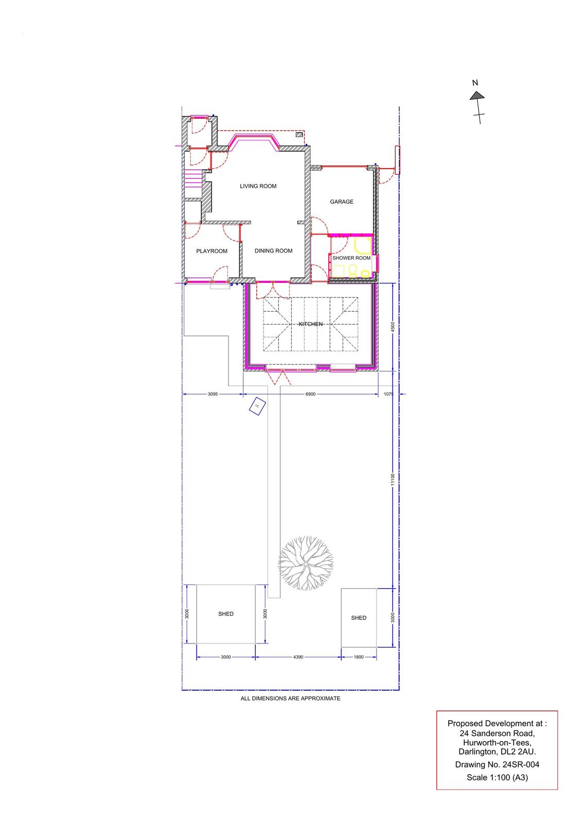
Erection of single storey rear extension incorporating roof lantern together with part conversion of garage into habitable space and associated works

Documents

Application Form
Archived · Original link
Drawing
Archived · Original link
Location Plan
Archived · Original link

Have your say

Your comment matters. Councils must consider every representation that raises material planning considerations.

Write a comment