← Darlington Borough Council

Status

Awaiting decision House extension
Received
29 days ago
New homes
0

Full proposal

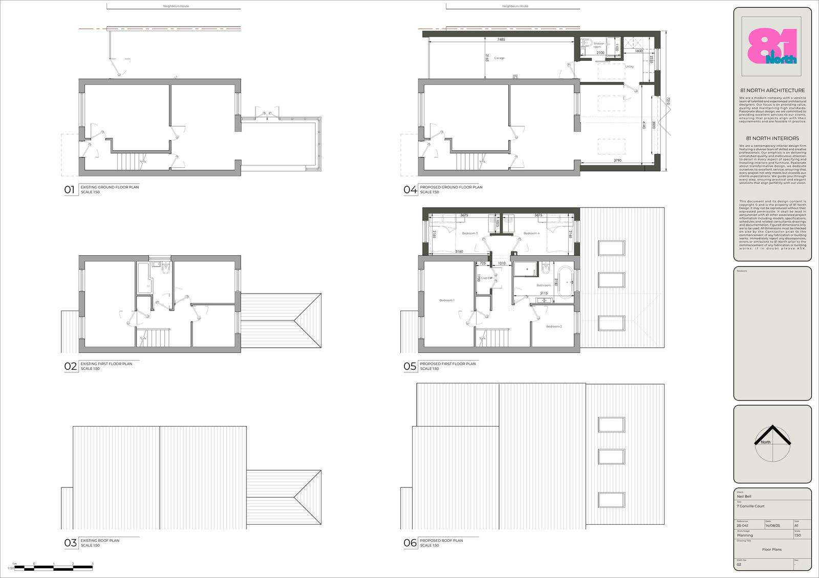
Demolition of existing rear extension and erection of a two storey side and single storey rear wraparound extension

Have your say

Your comment matters. Councils must consider every representation that raises material planning considerations.

Write a comment