← Dartford Borough Council

Status

Awaiting decision Change of use
Received
23 Dec 2025
New homes
0

Full proposal

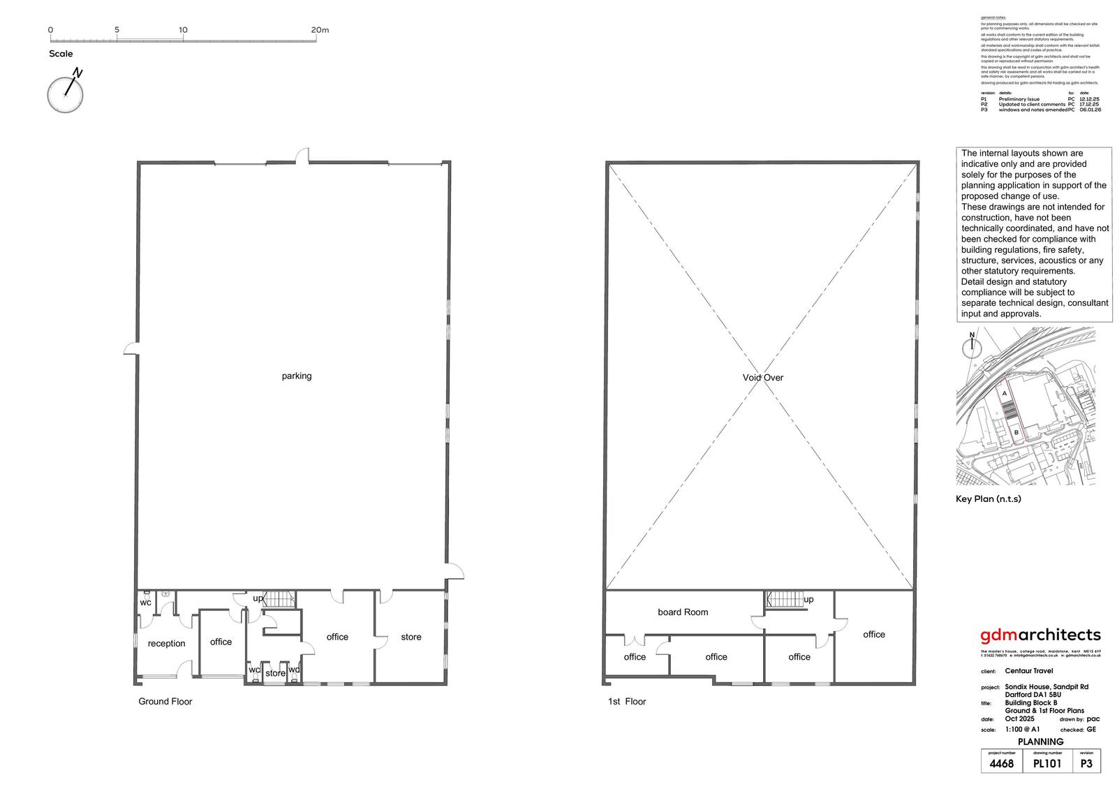
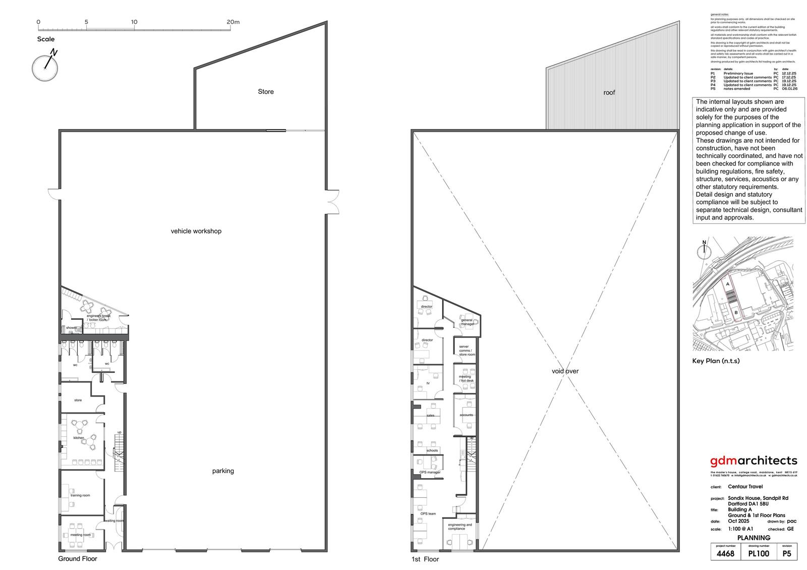
Change of Use of land and buildings from B8 Use to a flexible use comprising B2, E(g)(iii), B8, and Sui Generis use for coach, bus, and mini-bus depot with associated electric vehicle conversion operations and general servicing

Have your say

Your comment matters. Councils must consider every representation that raises material planning considerations.

Write a comment