← Dartford Borough Council

Status

Awaiting decision House extension
Received
29 Dec 2025
New homes
0

Full proposal

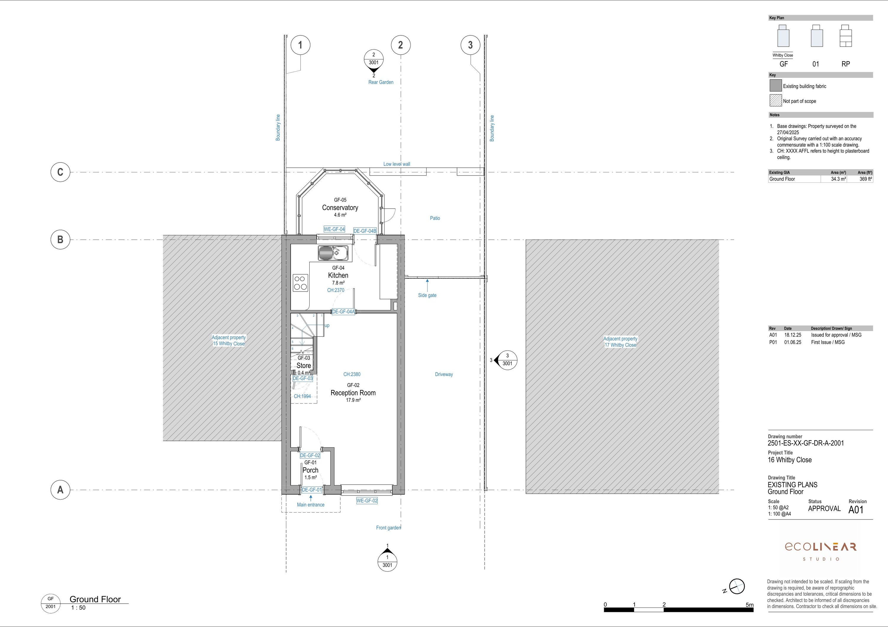
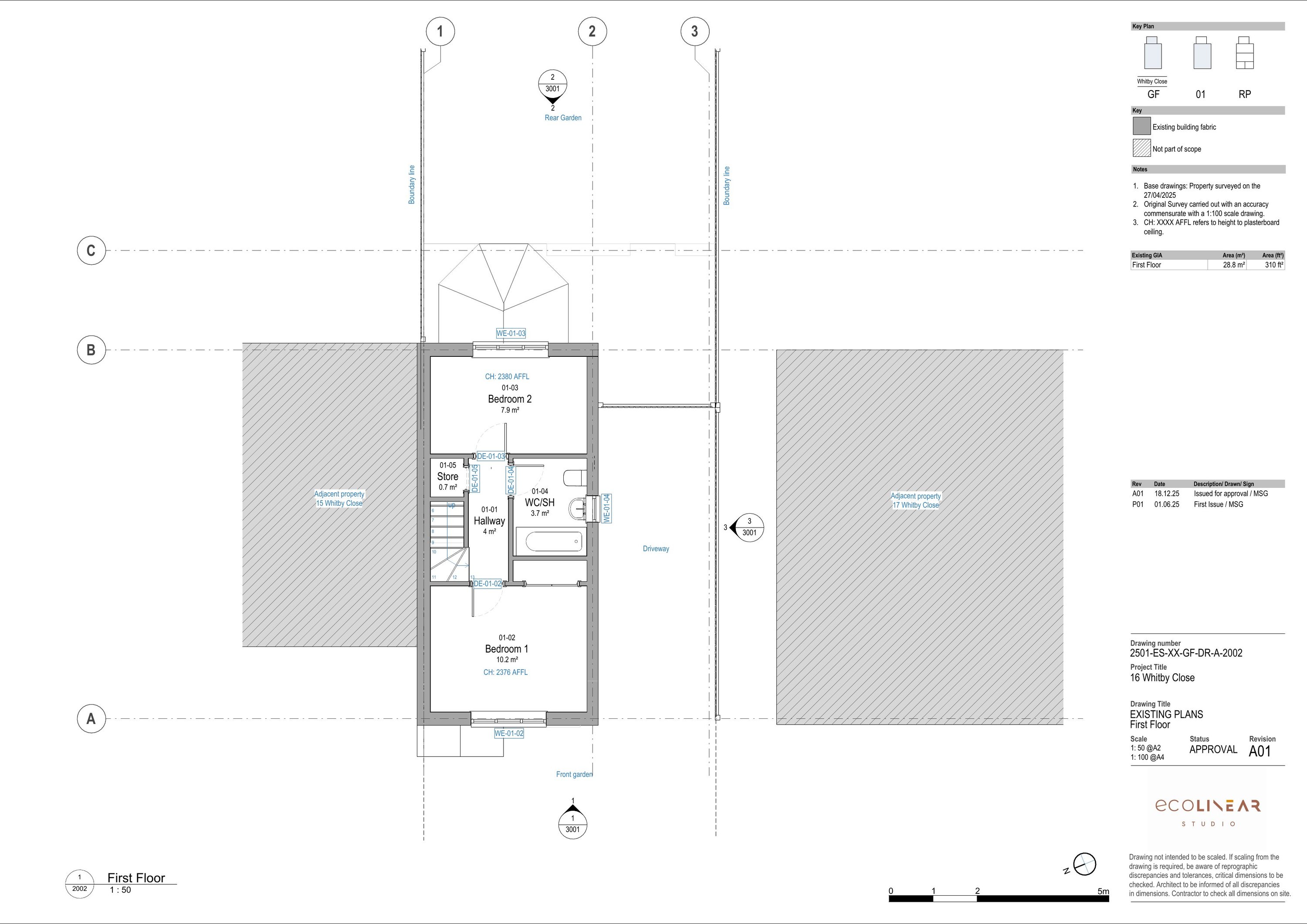
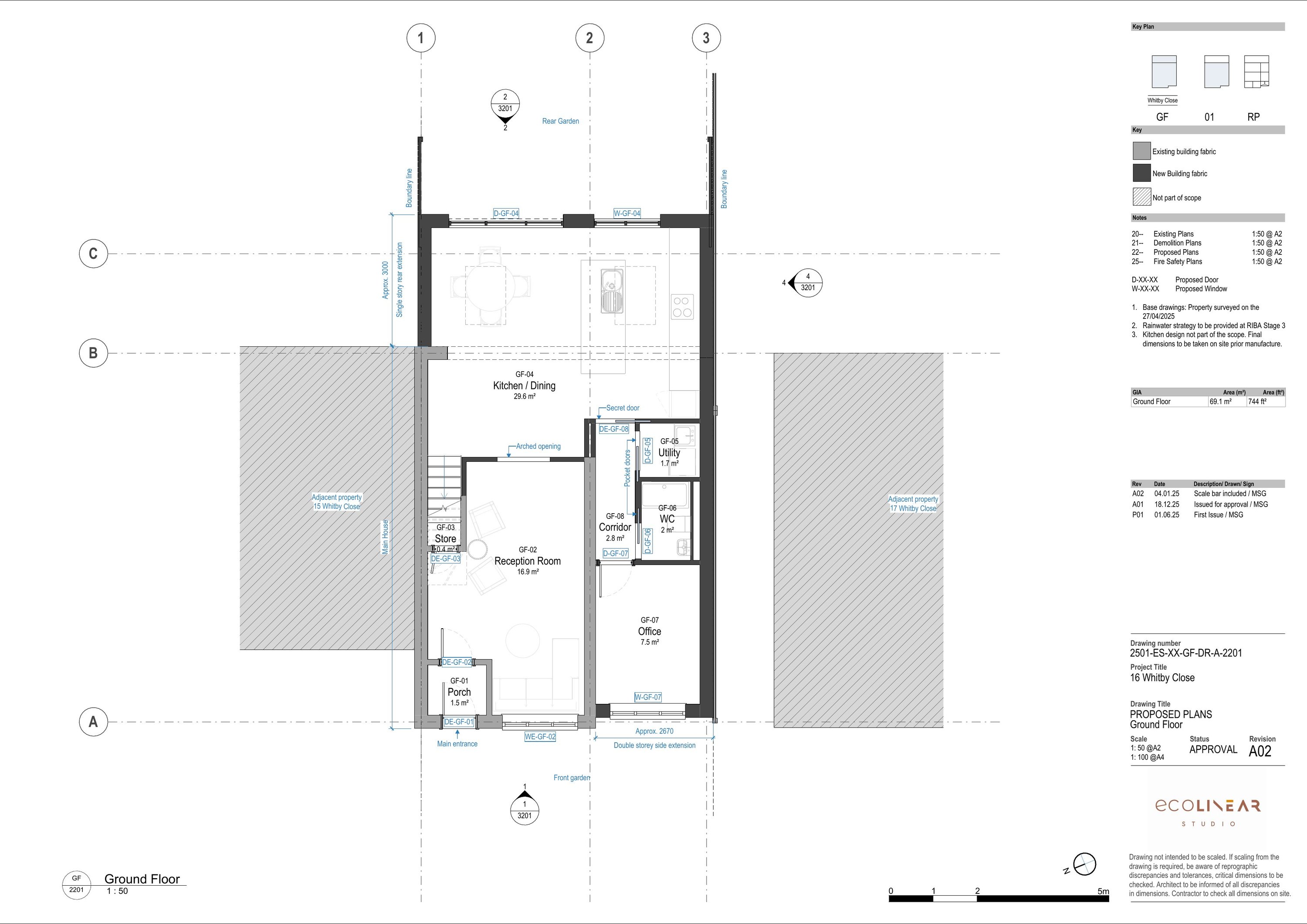
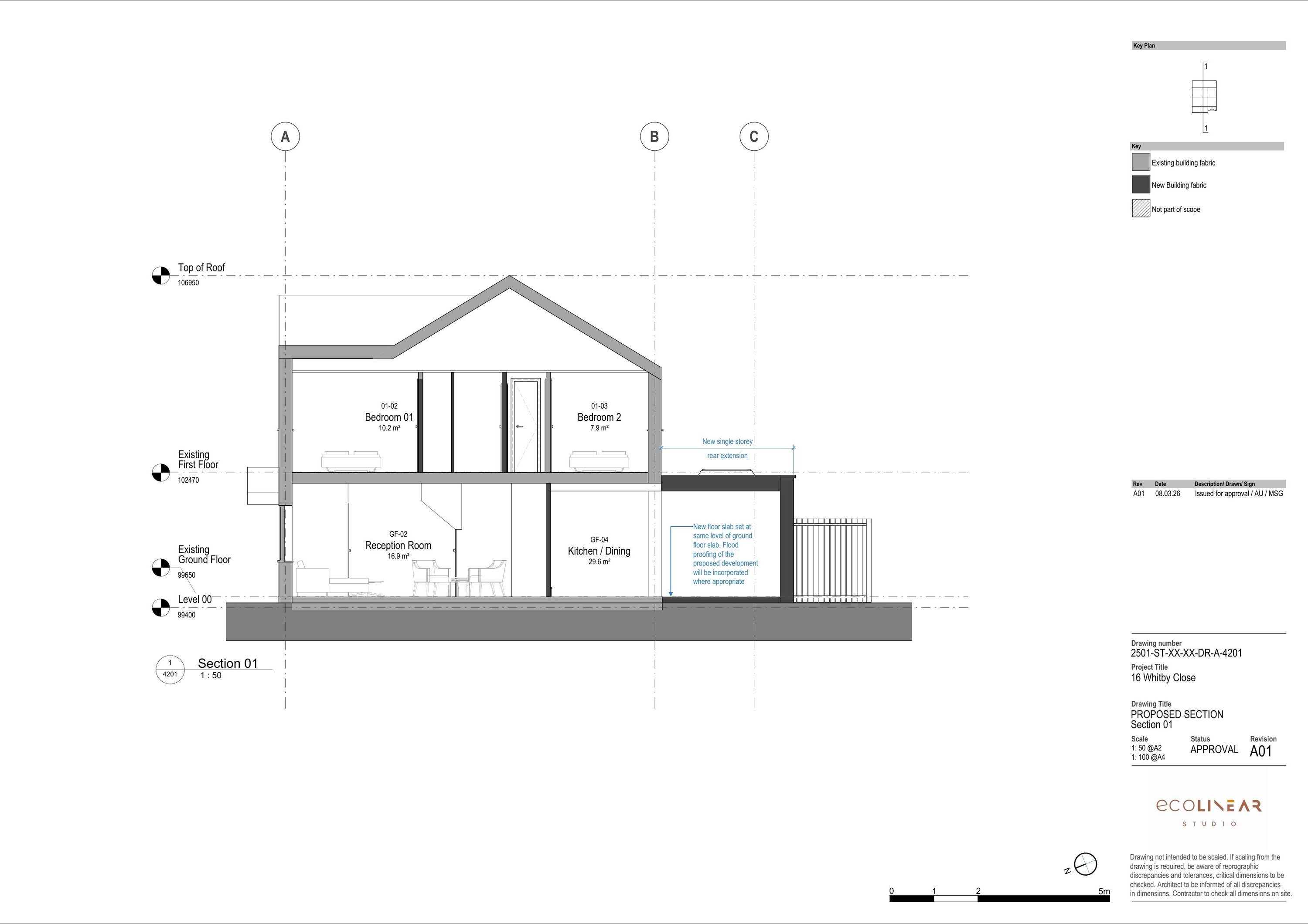
Erection of a single storey rear extension and two storey side extension

Have your say

Your comment matters. Councils must consider every representation that raises material planning considerations.

Write a comment