← Dartford Borough Council

Status

Awaiting decision House extension
Received
Last month
New homes
0

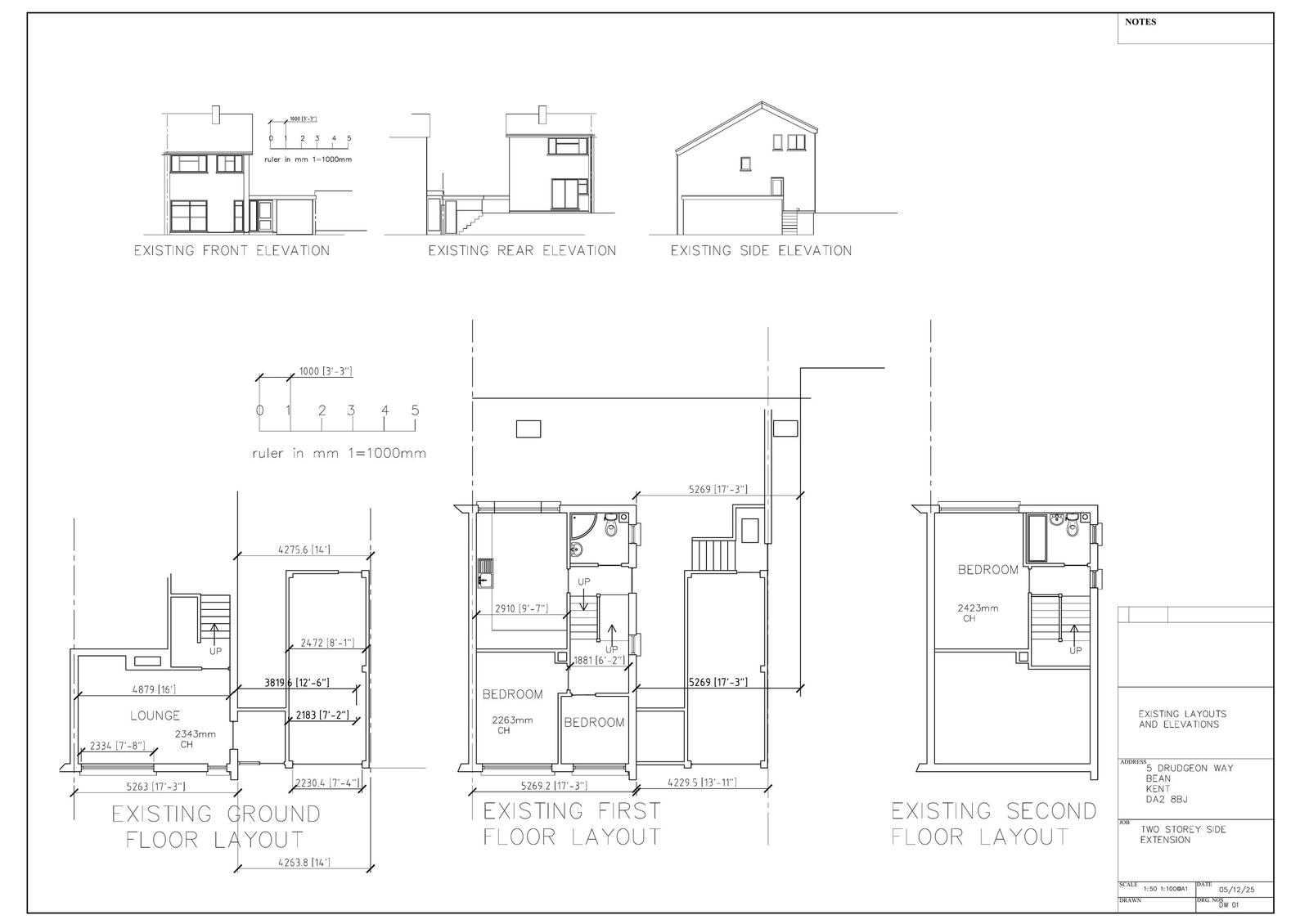
Full proposal

Erection of a two storey side extension

Have your say

Your comment matters. Councils must consider every representation that raises material planning considerations.

Write a comment