← Dartford Borough Council

Status

Awaiting decision House extension
Received
28 days ago
New homes
0

Full proposal

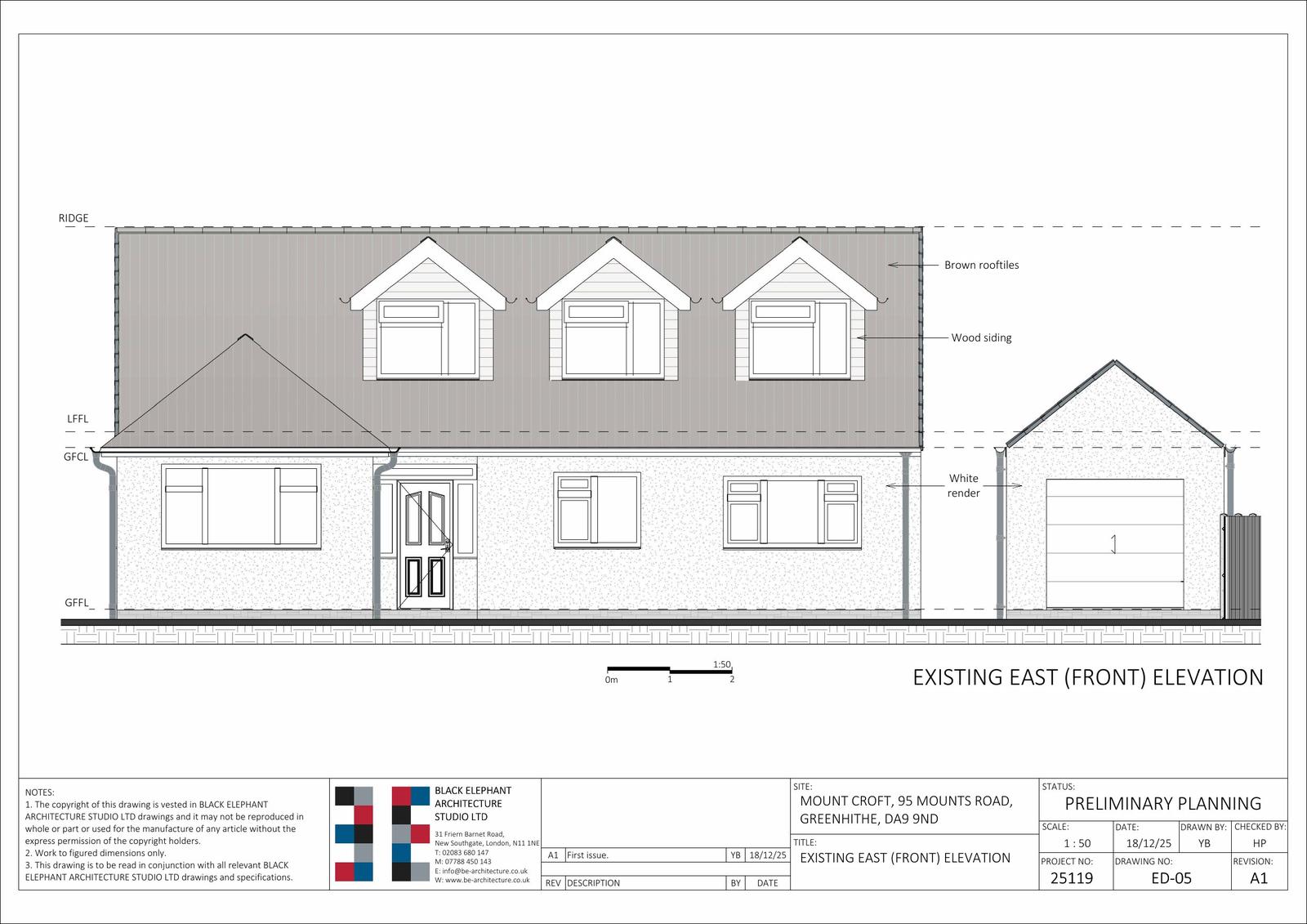
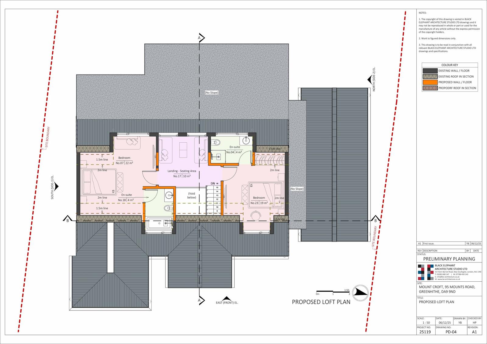
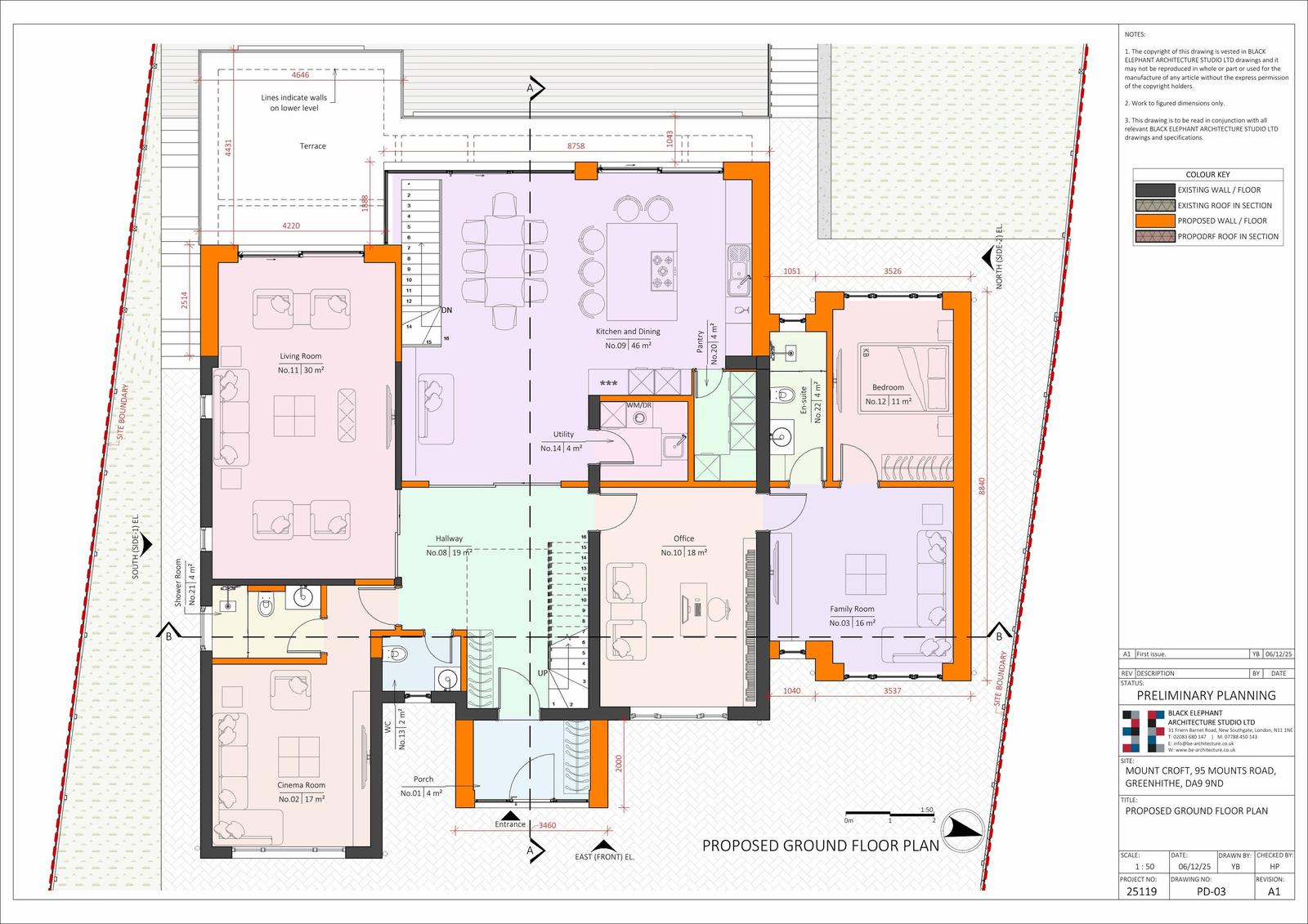
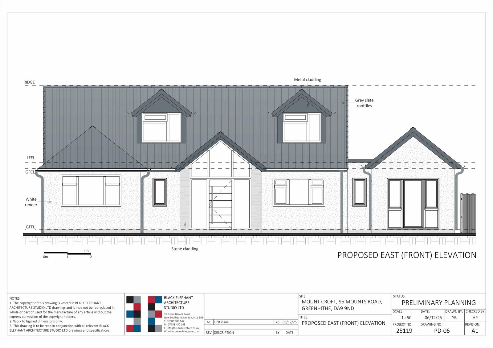
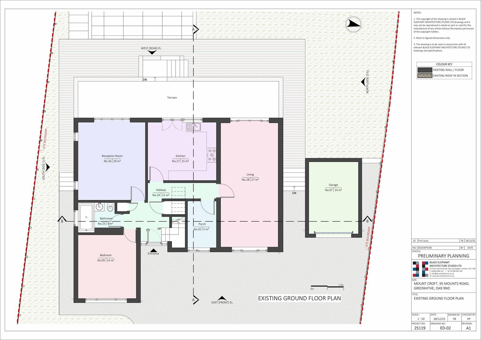
Demolition of existing garage and front dormer. Erection of a front porch, single-storey side, rear, and lower ground floor basement extension with a terrace. Internal reconfiguration and alteration to external materials, fenestration, and roof.

Documents

Application Form
Archived · Original link
Drawings
Archived · Original link
Report
Archived · Original link
Drawings
Archived · Original link
Consultation Responses
Archived · Original link

Have your say

Your comment matters. Councils must consider every representation that raises material planning considerations.

Write a comment