← Dartford Borough Council

Status

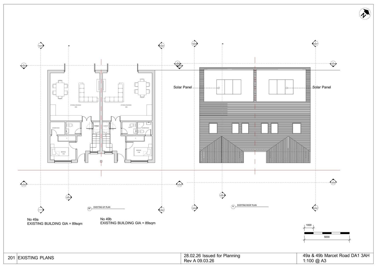
Awaiting decision House extension
Received
29 days ago
New homes
0

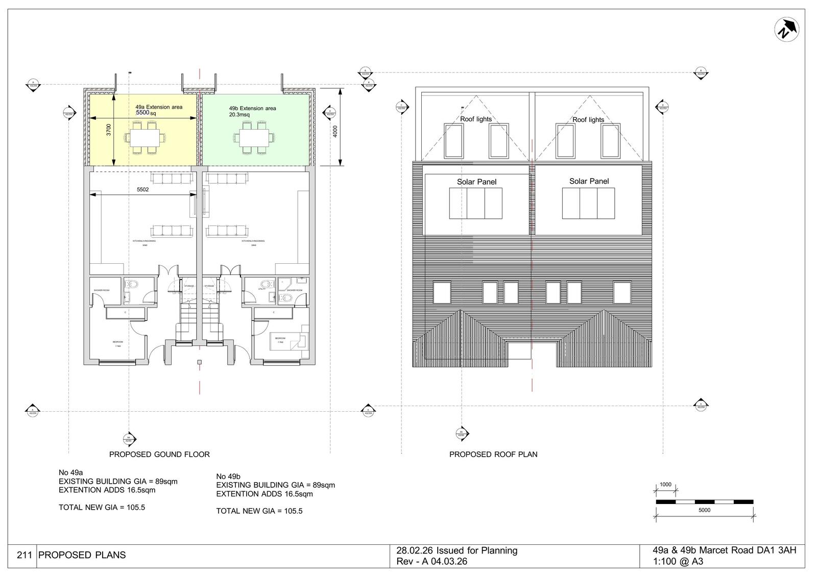
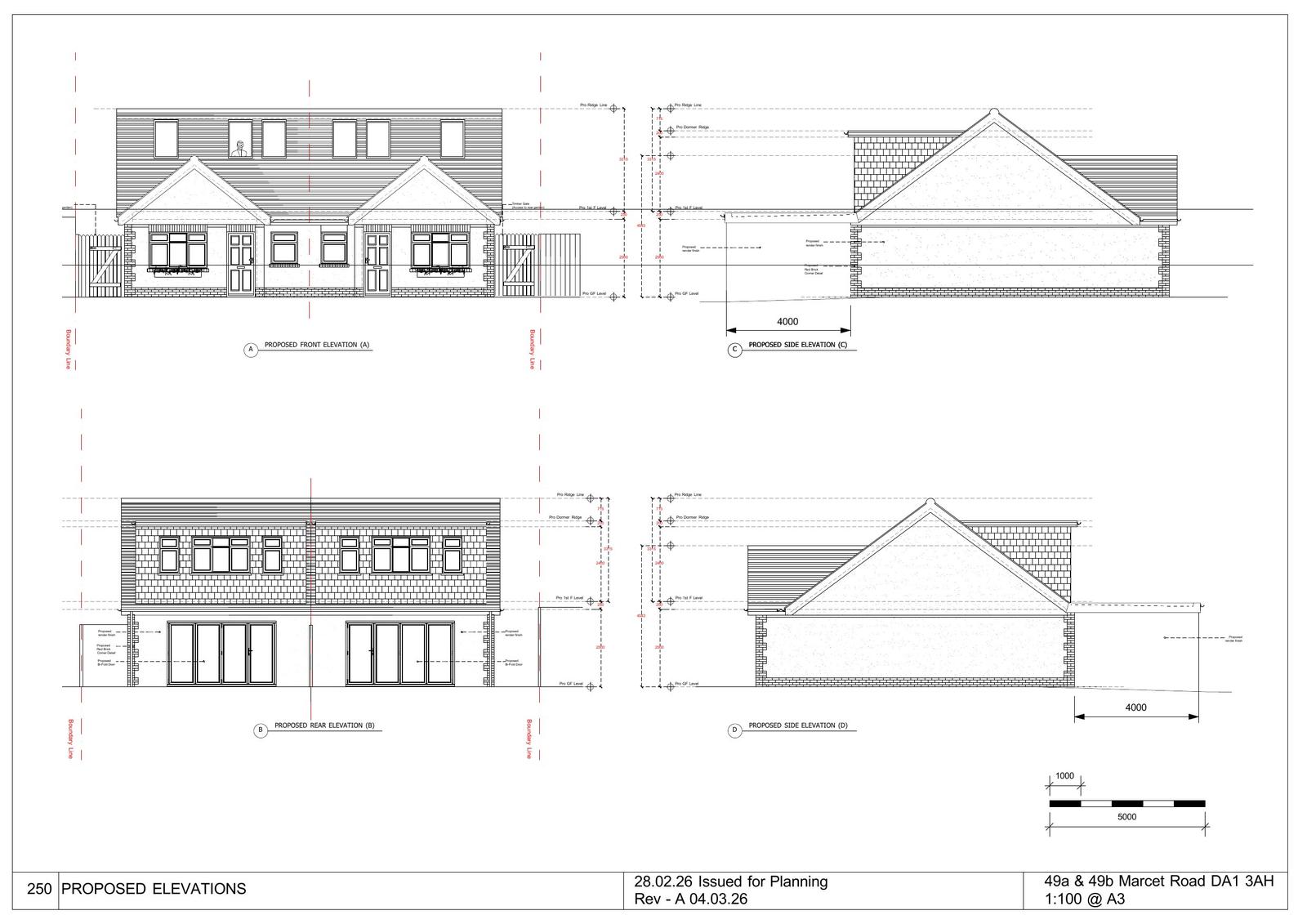
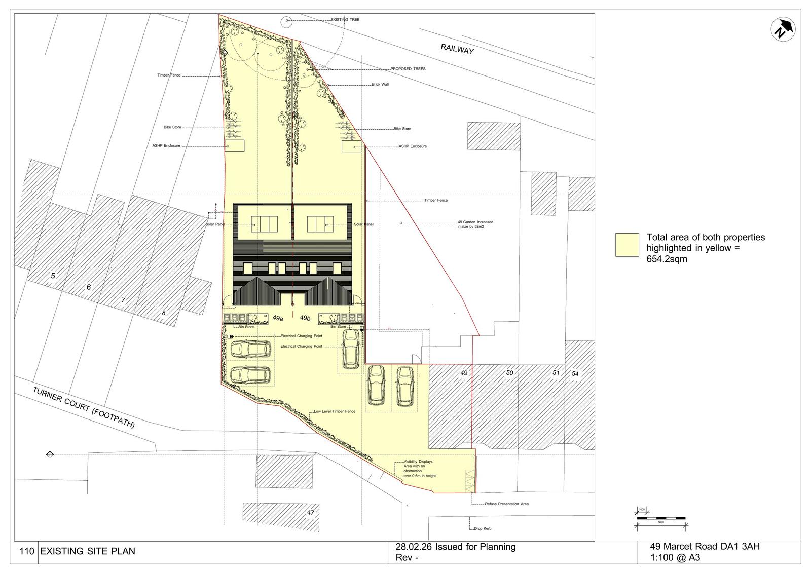
Full proposal

Erection of rear single storey extensions

Have your say

Your comment matters. Councils must consider every representation that raises material planning considerations.

Write a comment