← Back to Doncaster Metropolitan Borough Council

Status

Awaiting decision
Received 30 Jul 2025
New dwellings n/a

What you can do

Take Action

Make your voice heard. Authorities need to hear from people who support new homes.

Full Proposal

Erection of five detached self-build dwellings

Detail pages

Documents

Application Form (No Personal Data)
Application Form (No Personal Data)
Not downloaded · Council link
Committee report presented to 13/01/2026 Planning Committee
Planning Committee Report
Not downloaded · Council link
Design and Access Statement
Design and Access Statement
Not downloaded · Council link
DRAINAGE SPECIFICATION PLOT 1
Additional Plans/Information
Not downloaded · Council link
DRAINAGE SPECIFICATION PLOT 2
Additional Plans/Information
Not downloaded · Council link
DRAINAGE SPECIFICATION PLOT 3
Additional Plans/Information
Not downloaded · Council link
DRAINAGE SPECIFICATION PLOT 4
Additional Plans/Information
Not downloaded · Council link
DRAINAGE SPECIFICATION PLOT 5
Additional Plans/Information
Not downloaded · Council link
Ecology Survey/Report
Ecology Survey/Report
Not downloaded · Council link
LLFA
Consultation Reply
Not downloaded · Council link
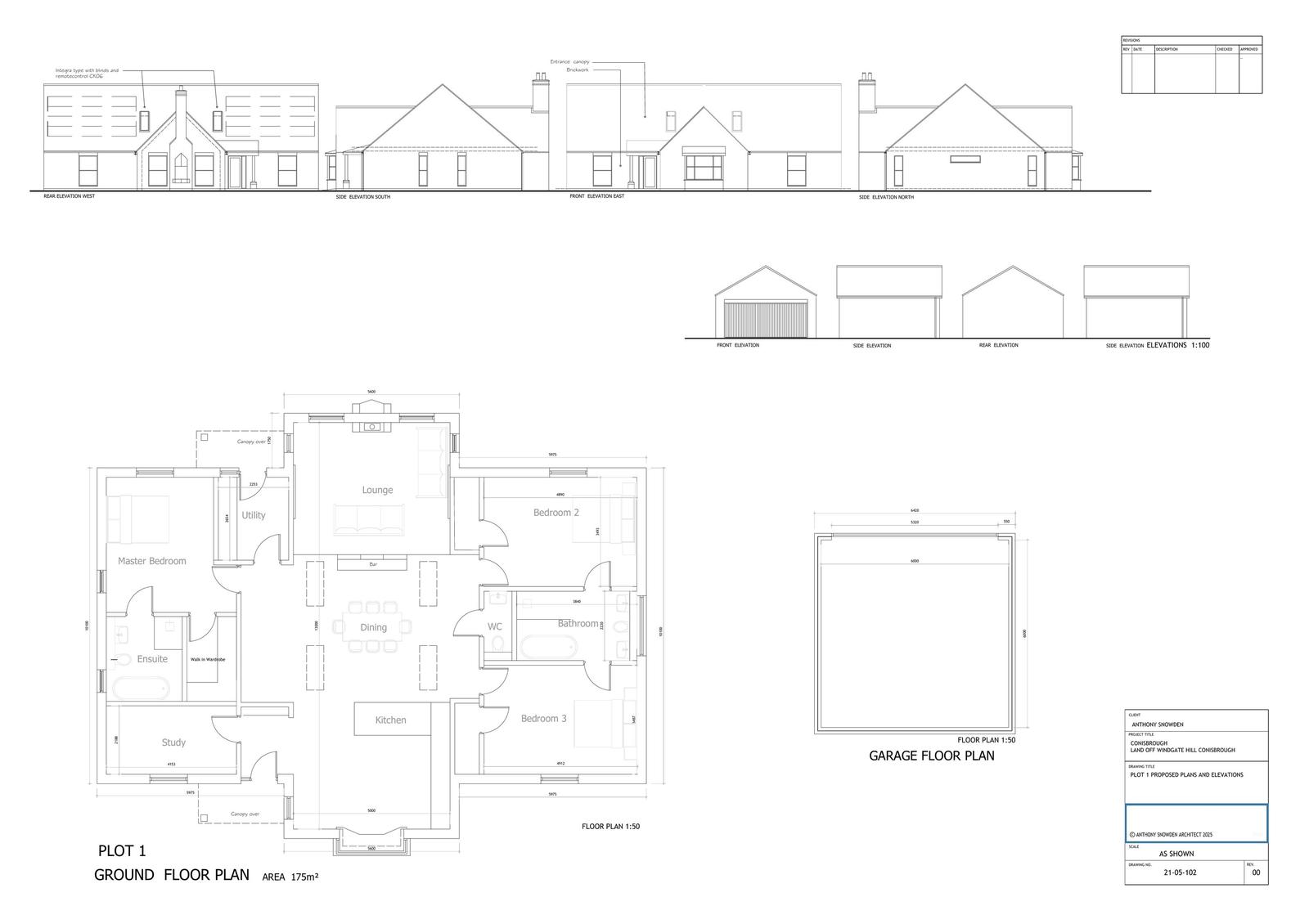
Plot 1 Proposed Plans and Elevations
Proposed Plans
Archived copy · Council link
PLOT 2 PROPOSED PLANS END ELEVATIONS
Proposed Plans
Archived copy · Council link
PLOT 3 SHEET 1 OF 2
Proposed Plans
Not downloaded · Council link
PLOT 3 SHEET 2 OF 2
Proposed Plans
Not downloaded · Council link
PLOT 5 PROPOSED PLANS AND ELEVATIONS
Proposed Plans
Archived copy · Council link
PLOT 5 PROPOSED PLANS END ELEVATIONS
Proposed Plans
Archived copy · Council link
Public Rights of Way
Consultation Reply
Not downloaded · Council link
Representations
Representations
Not downloaded · Council link
Representations
Representations
Not downloaded · Council link
Representations
Representations
Not downloaded · Council link
Representations
Representations
Not downloaded · Council link
Site Plan
Site Plan
Archived copy · Council link
SOAK AWAY PERCOLATION TEST
Additional Plans/Information
Not downloaded · Council link
South Yorkshire Police
Consultation Reply
Not downloaded · Council link
SUPERSEDED
Location Plan and Site Plan
Not downloaded · Council link
SUPERSEDED PLOT 1
Proposed Plans
Not downloaded · Council link
Yorkshire Water
Consultation Reply
Not downloaded · Council link
Yorkshire Water
Consultation Reply
Not downloaded · Council link