← Doncaster Metropolitan Borough Council

Status

Awaiting decision Commercial
Received
07 Oct 2025
New homes
0

Full proposal

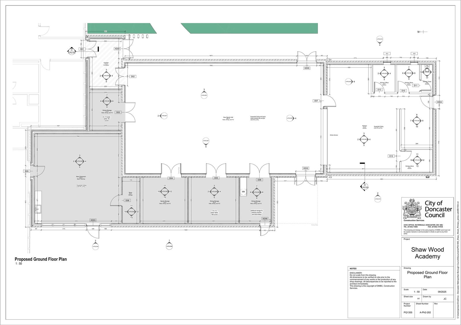
Erection of a single storey extension to the sports hall and internal alterations.

Documents

Design and Access Statement
Archived · Original link
Existing and Proposed Plans
Archived · Original link
Existing and Proposed Plans
Archived · Original link
Existing and Proposed Plans
Archived · Original link
Roof Plan
Archived · Original link
Proposed Plans
Archived · Original link
Proposed Plans
Archived · Original link
Proposed Plans
Archived · Original link
Proposed Plans
Archived · Original link
Existing Floor Plans
Archived · Original link
Proposed Plans
Archived · Original link
Location Plan
Archived · Original link
Existing and Proposed Plans
Archived · Original link
Existing and Proposed Plans
Archived · Original link
Existing and Proposed Plans
Archived · Original link
Site Plan
Archived · Original link
Roof Plan
Archived · Original link

Have your say

Your comment matters. Councils must consider every representation that raises material planning considerations.

Write a comment