← Doncaster Metropolitan Borough Council

Status

Awaiting decision House extension
Received
07 Jan 2026
New homes
0

Full proposal

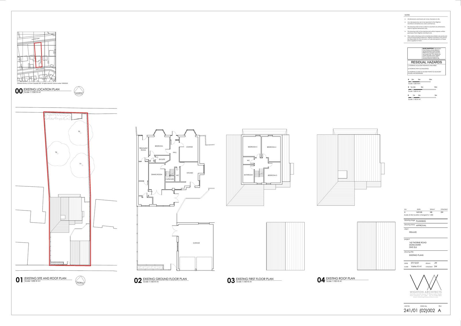
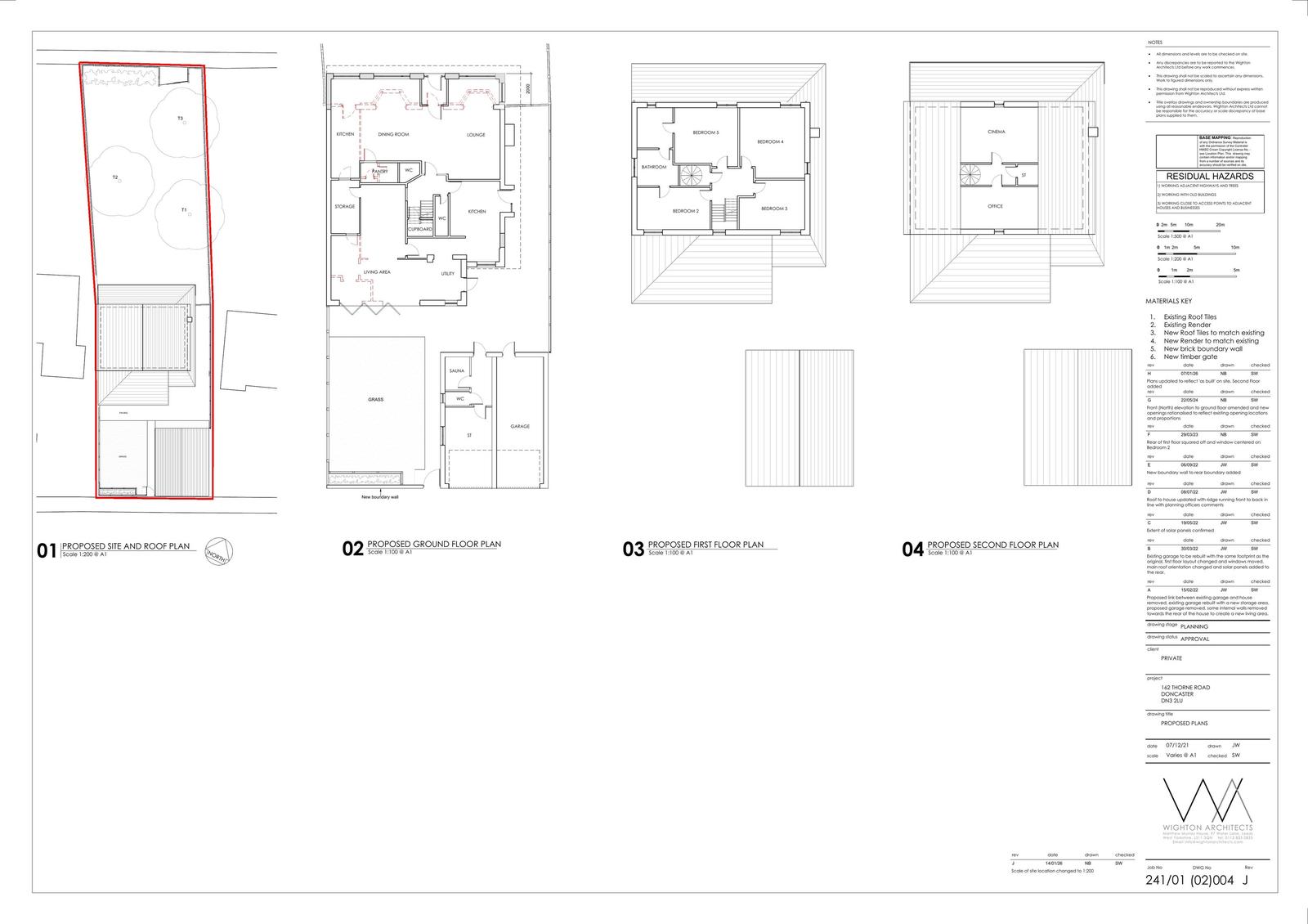
Single storey extension to the front and to the rear, raising of roof to create a first floor, and creation of rooms in roof space. Demolition of existing garage and construction of new annexe.

Documents

Existing Elevation
Archived · Original link
Existing Plans
Archived · Original link
Proposed Plans
Archived · Original link
Proposed Elevations
Archived · Original link

Have your say

Your comment matters. Councils must consider every representation that raises material planning considerations.

Write a comment