← Doncaster Metropolitan Borough Council

Status

Awaiting decision House extension
Received
03 Feb 2026
New homes
0

Full proposal

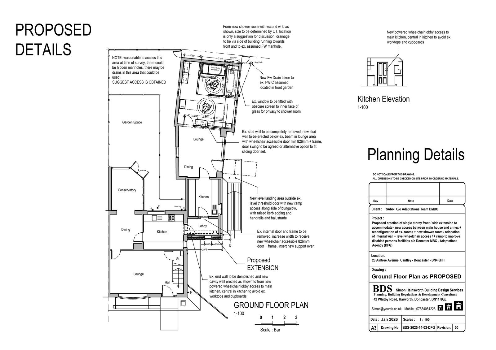
Erection of single storey front / side extension to accommodate new access between main house and annex, internal works including reconfiguration of rooms and new shower room, and installation of ramp to side

Documents

Application Form (No Personal Data)
Application Form (No Personal Data)
Not yet archived · Original link
Existing Elevation
Existing Elevation
Not yet archived · Original link
Existing Floor Plans
Existing Floor Plans
Not yet archived · Original link
Location Plan and Site Plan
Archived · Original link
Proposed Elevations
Proposed Elevations
Not yet archived · Original link
Proposed Floor Plans
Archived · Original link

Have your say

Your comment matters. Councils must consider every representation that raises material planning considerations.

Write a comment