← Doncaster Metropolitan Borough Council

Status

Awaiting decision House extension
Received
Last month
New homes
0

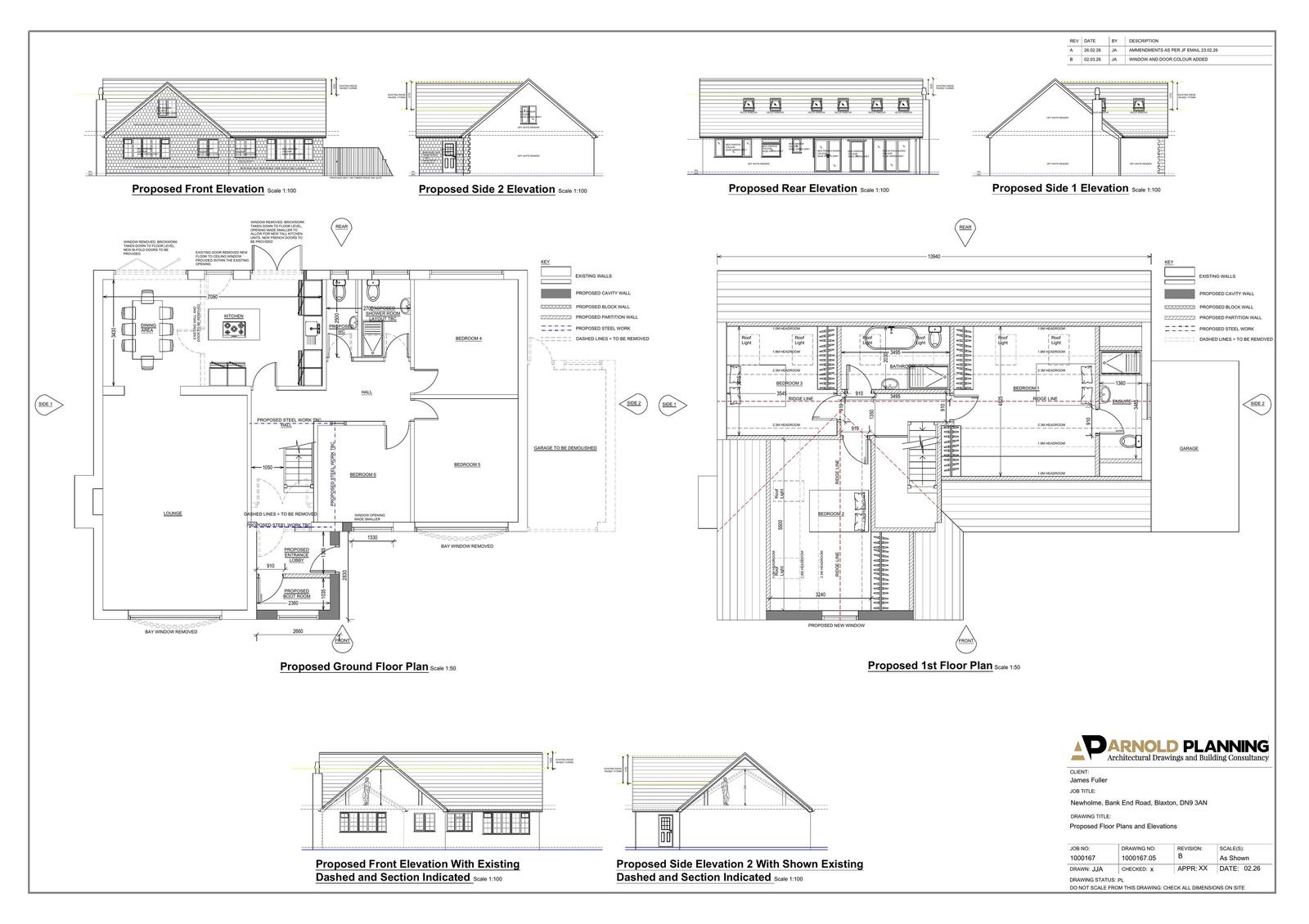
Full proposal

Raising of roof and formation of rooms in roofspace, single storey front extension, demolition of the existing garage and replacing the existing doors and windows

Documents

Site Plan
Archived · Original link
Existing Plans
Archived · Original link
Location Plan
Archived · Original link
Proposed Plans
Archived · Original link
Roof Plan
Archived · Original link
Site Plan
Archived · Original link

Have your say

Your comment matters. Councils must consider every representation that raises material planning considerations.

Write a comment