← Dover District Council

Status

Awaiting decision House extension
Received
06 Jan 2026
New homes
0

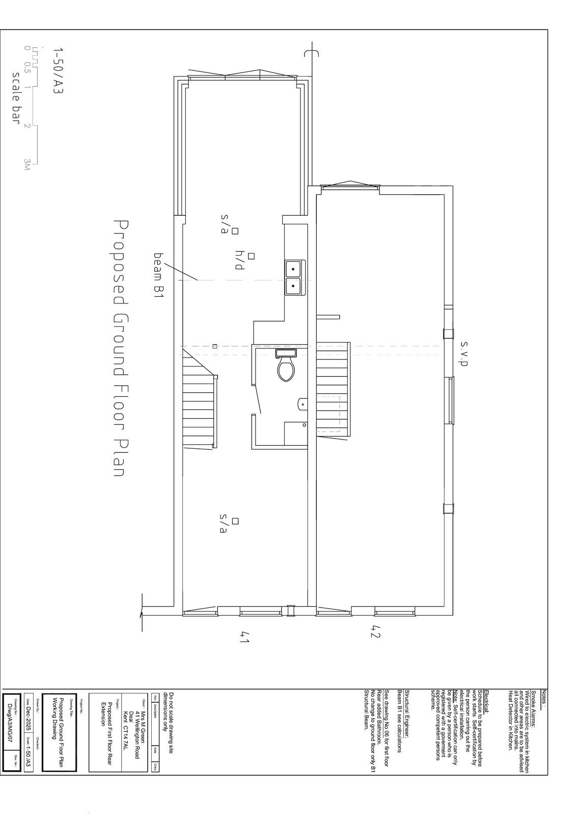
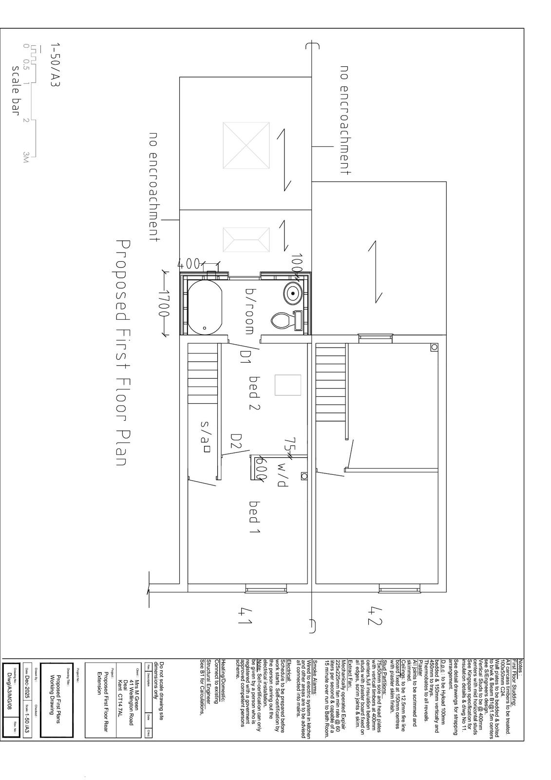
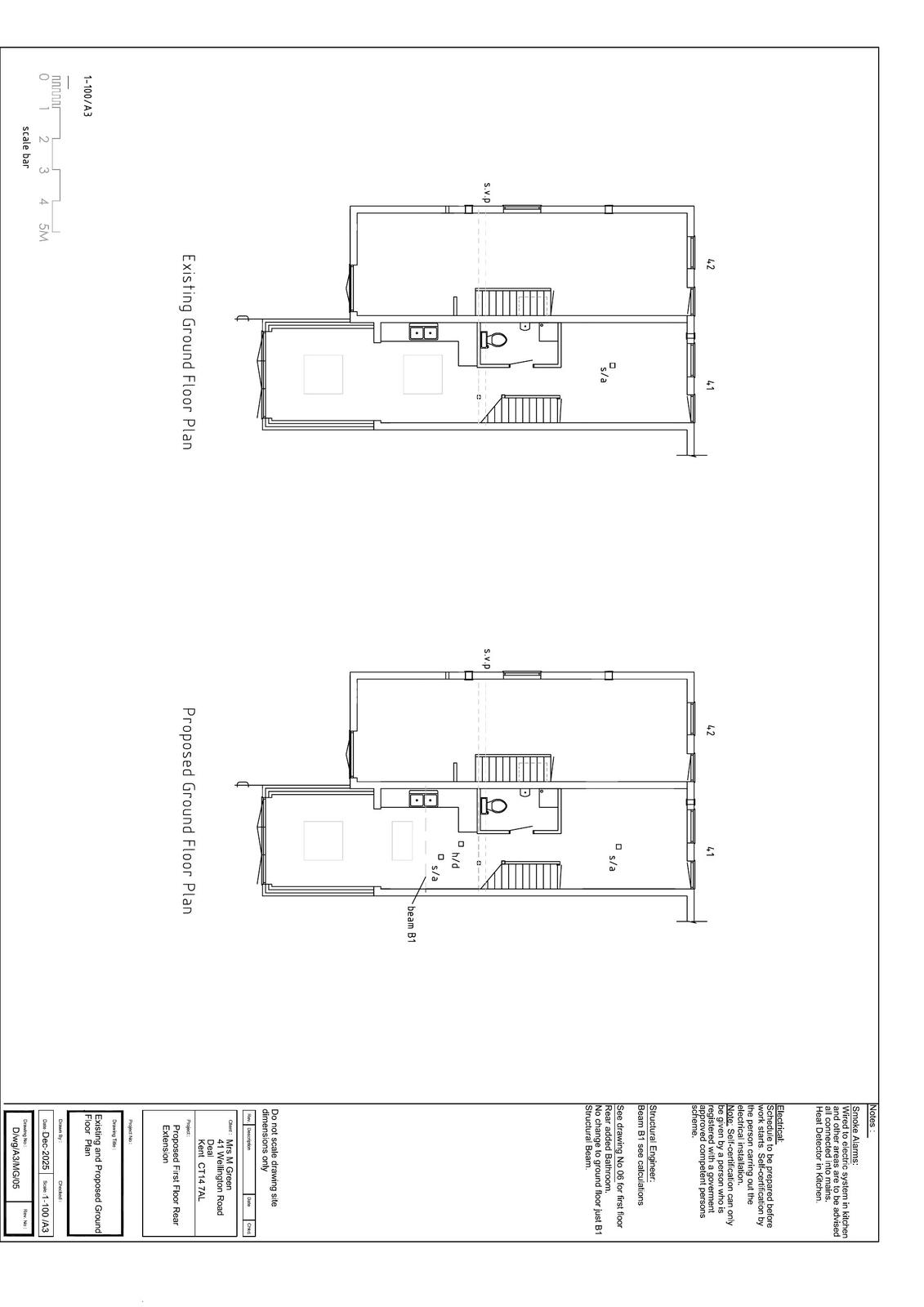
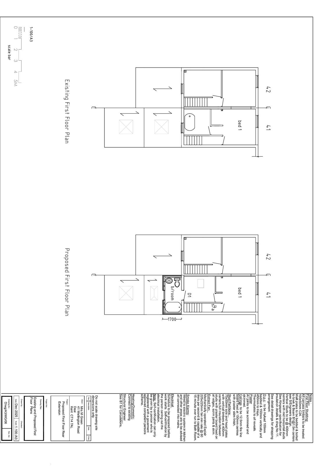
Full proposal

Erection of a first floor rear extension

Have your say

Your comment matters. Councils must consider every representation that raises material planning considerations.

Write a comment