← Dover District Council

Status

Awaiting decision House extension
Received
06 Jan 2026
New homes
0

Full proposal

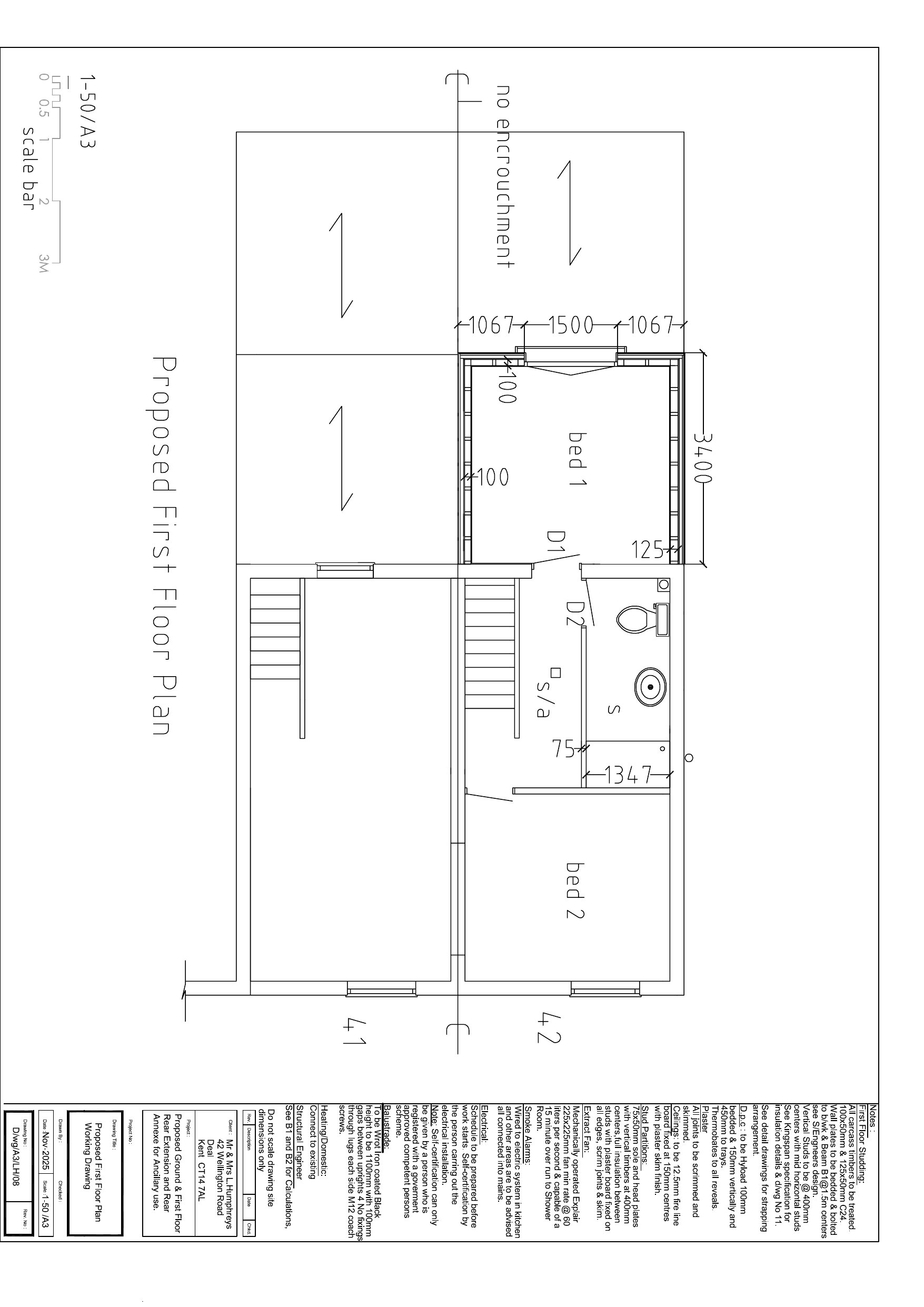
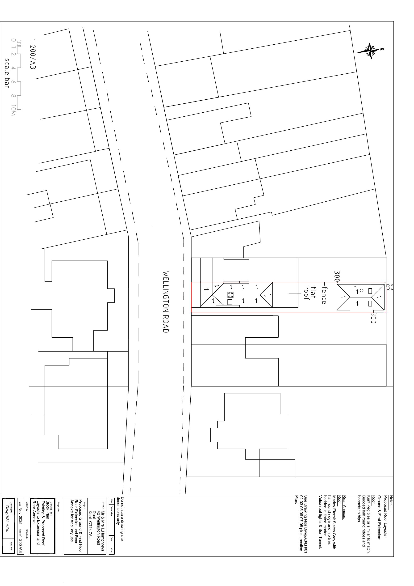
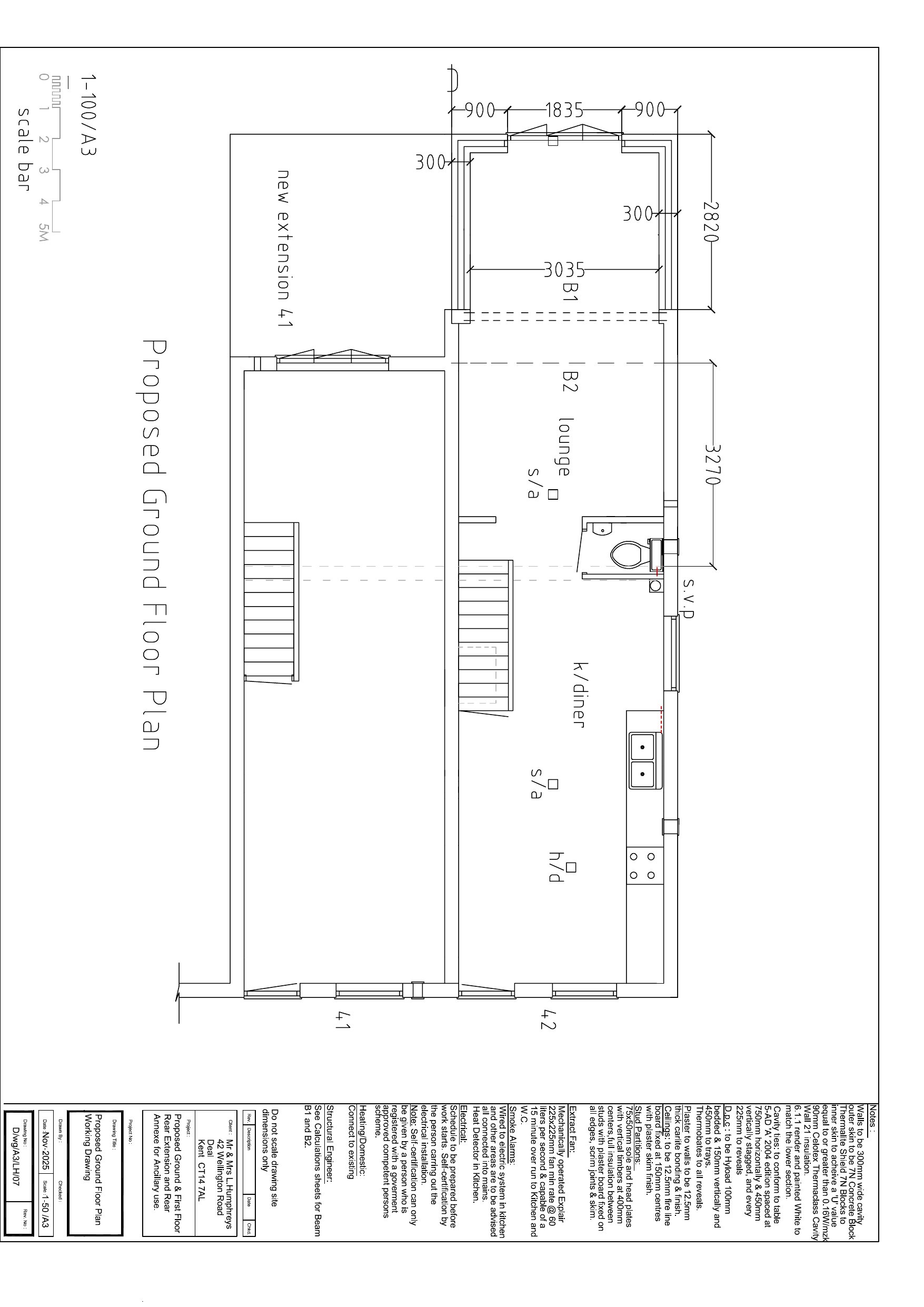
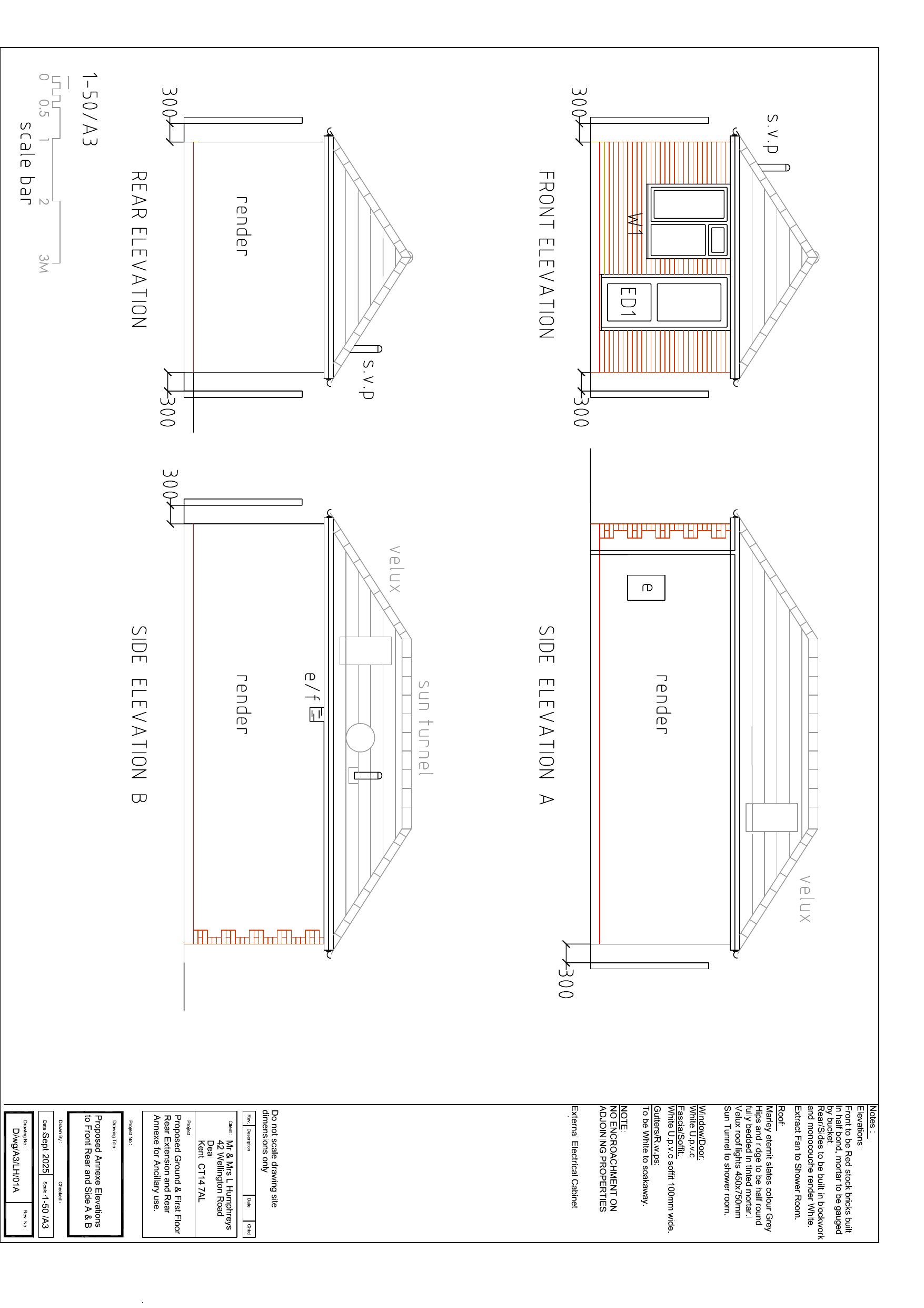
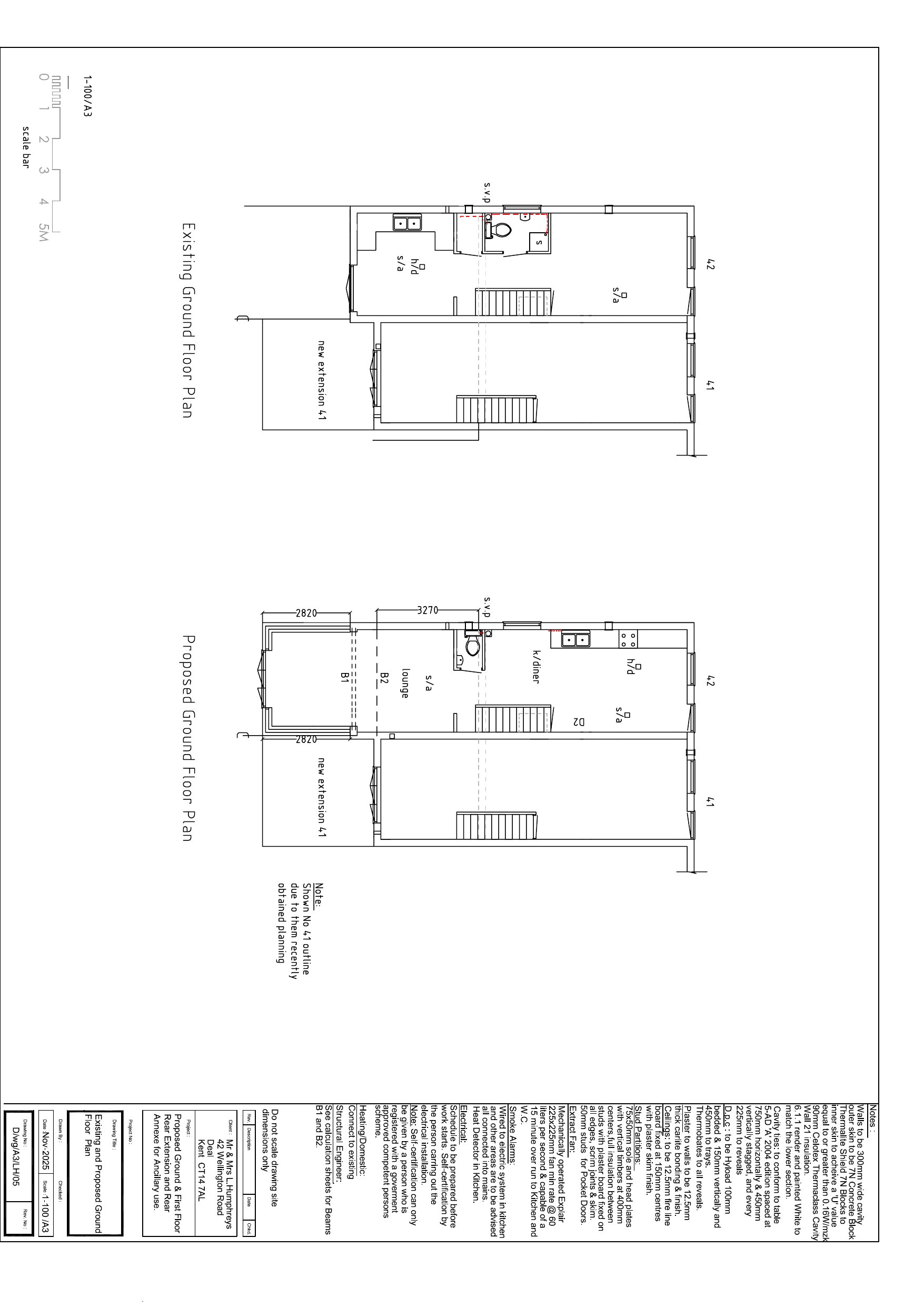
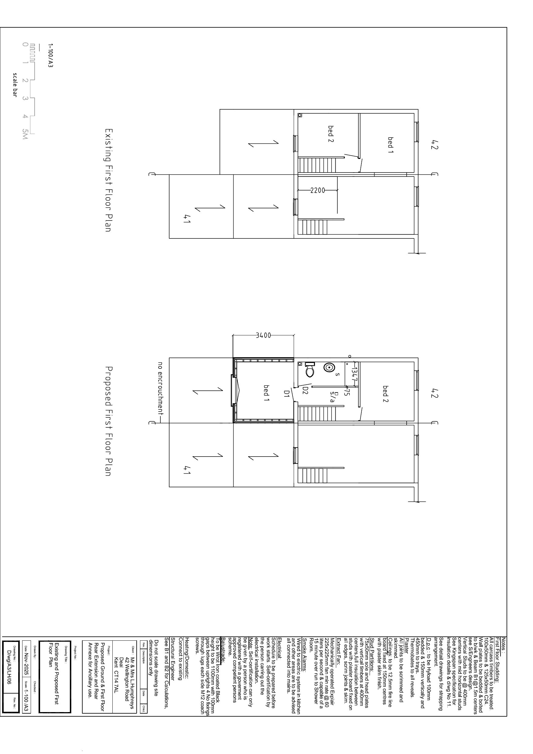
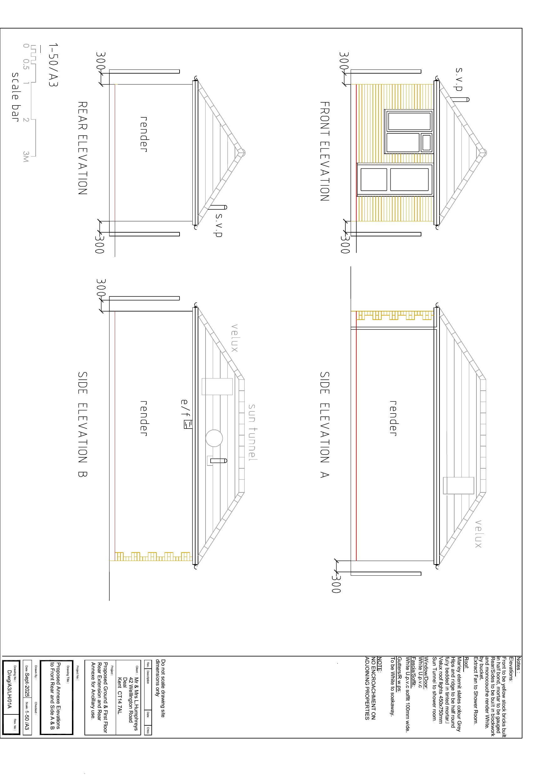
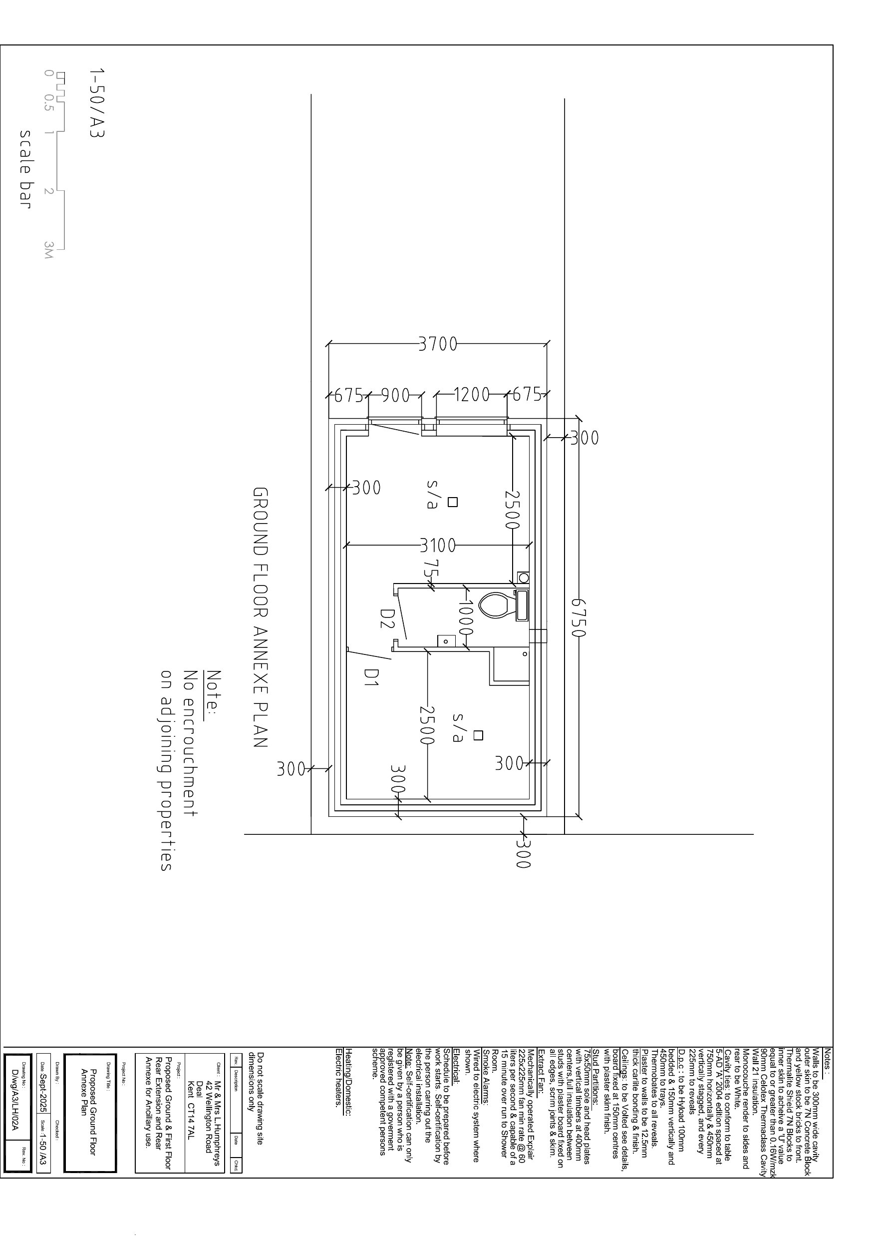
Erection of a ground and first floor rear extensions and detached annexe for ancillary use

Have your say

Your comment matters. Councils must consider every representation that raises material planning considerations.

Write a comment