← Dudley Metropolitan Borough Council
P25/0029
Dudley Metropolitan Borough Council
Status
Decision made
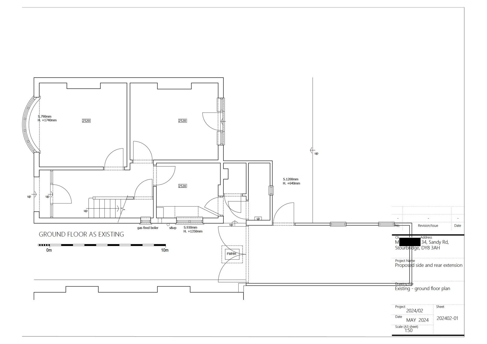
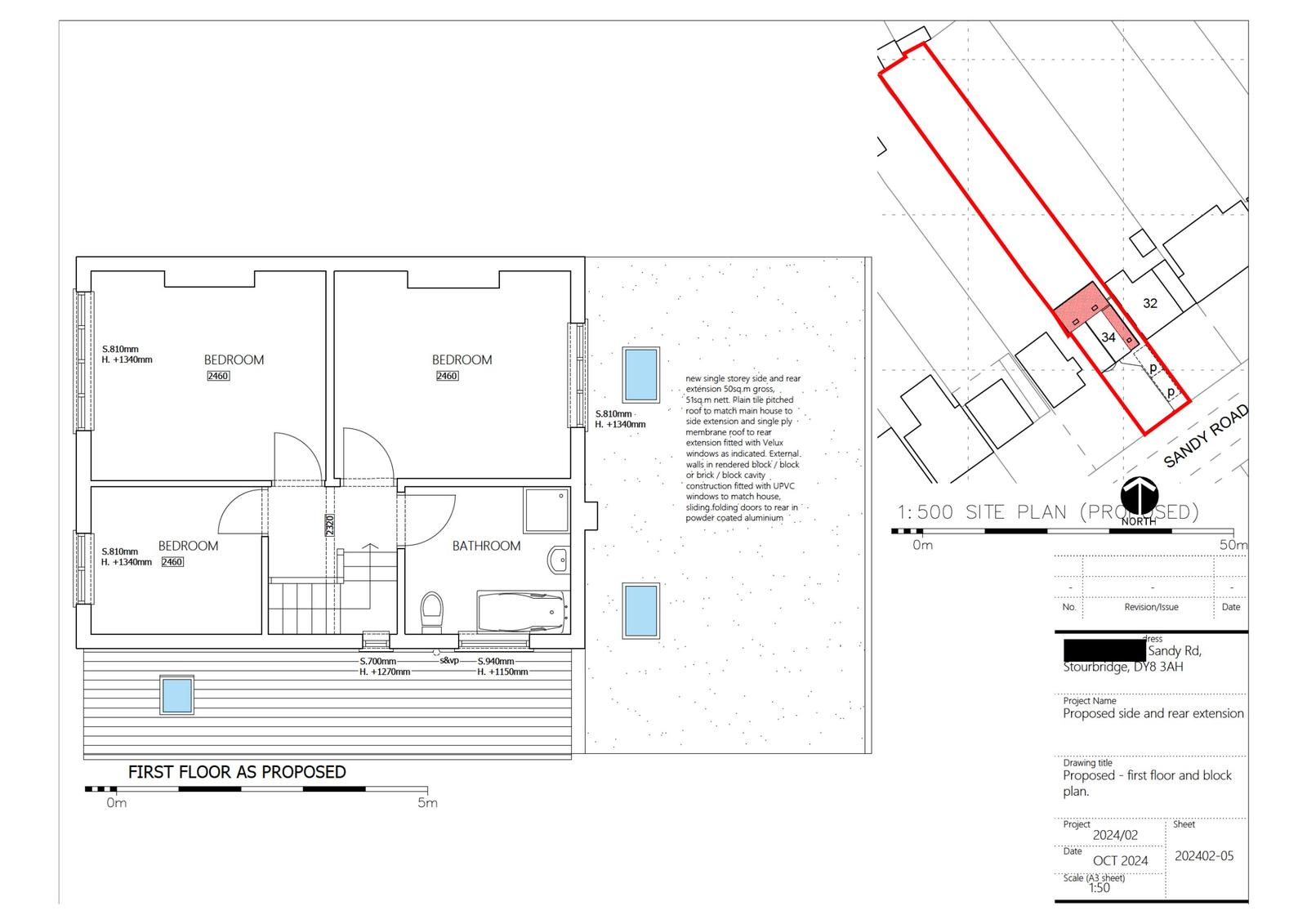
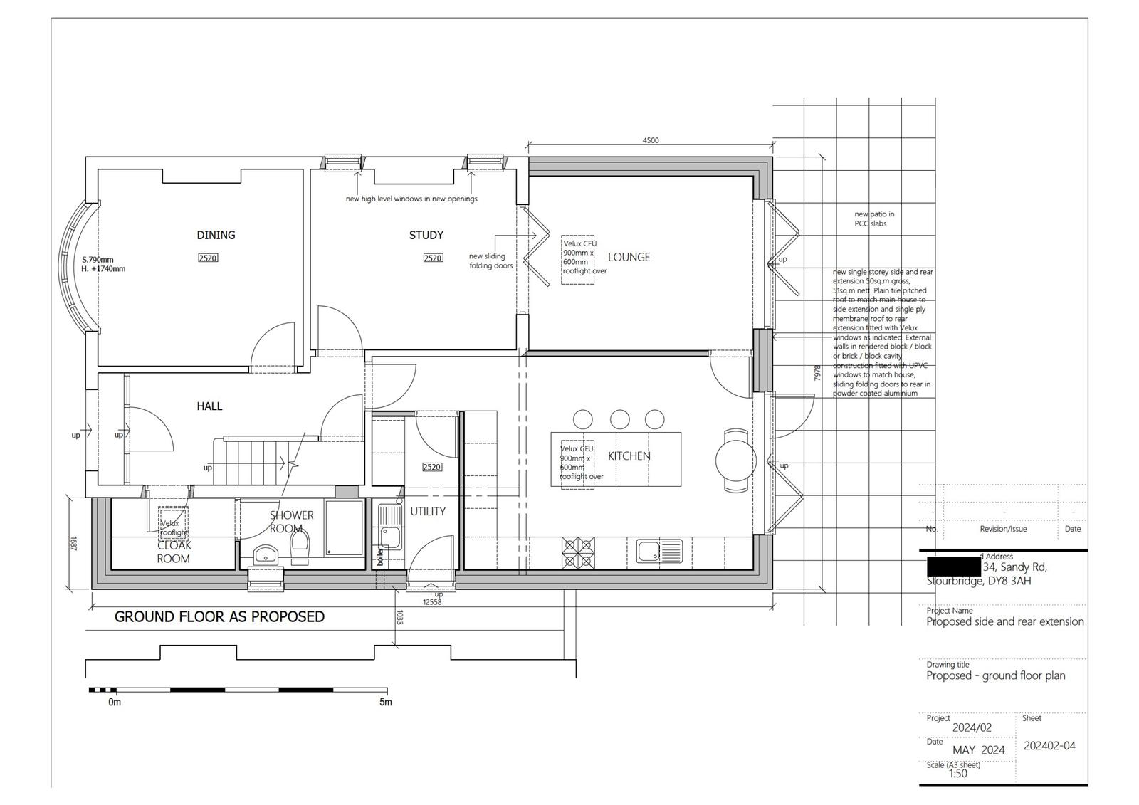
House extension
Received
09 Jan 2025
New homes
0
Full proposal
Single storey side and rear extension (following demolition of existing garage)
Documents
Have your say
Your comment matters. Councils must consider every representation that raises material planning considerations.