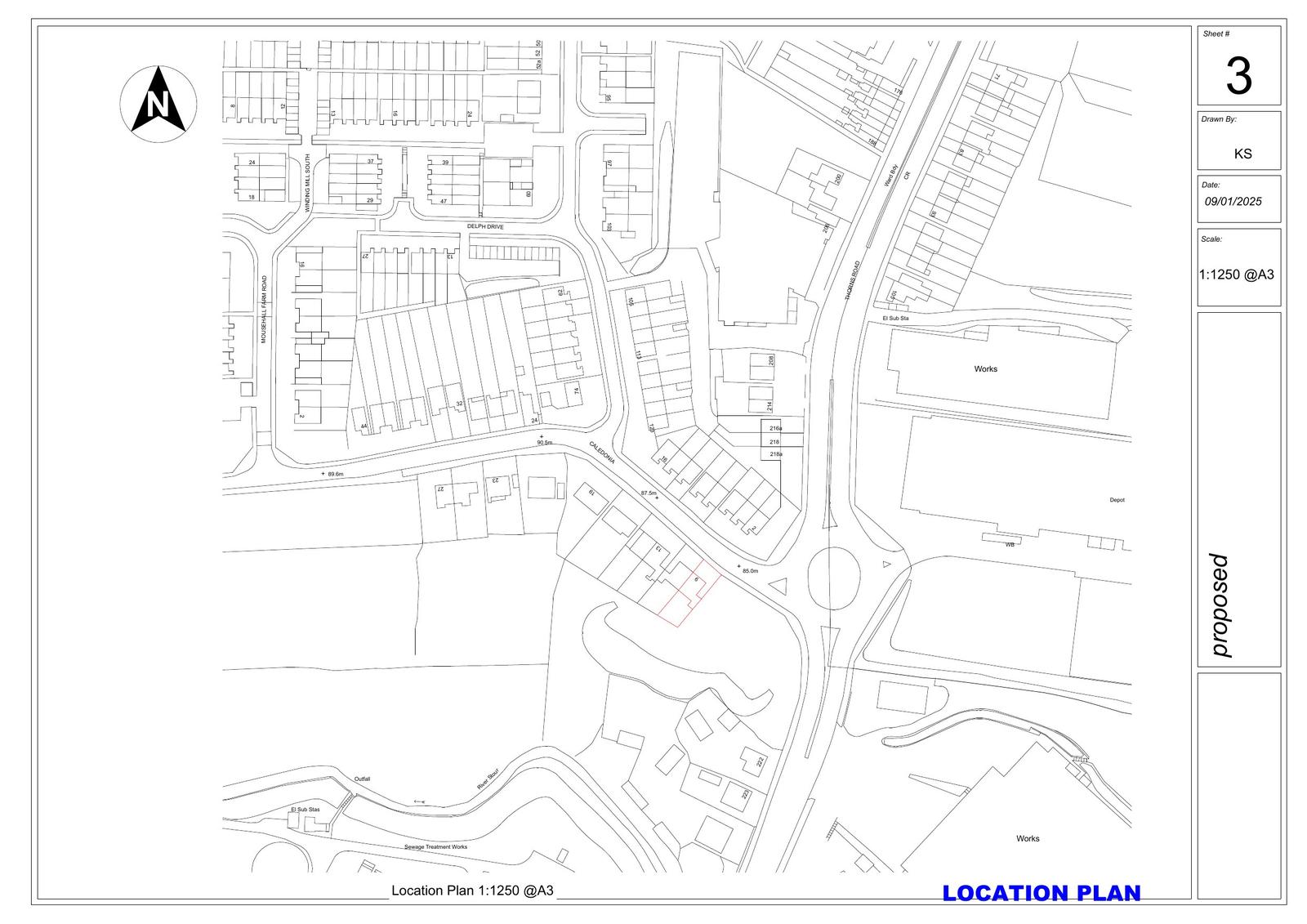
← Dudley Metropolitan Borough Council
P25/0047
Dudley Metropolitan Borough Council
Status
Decision made
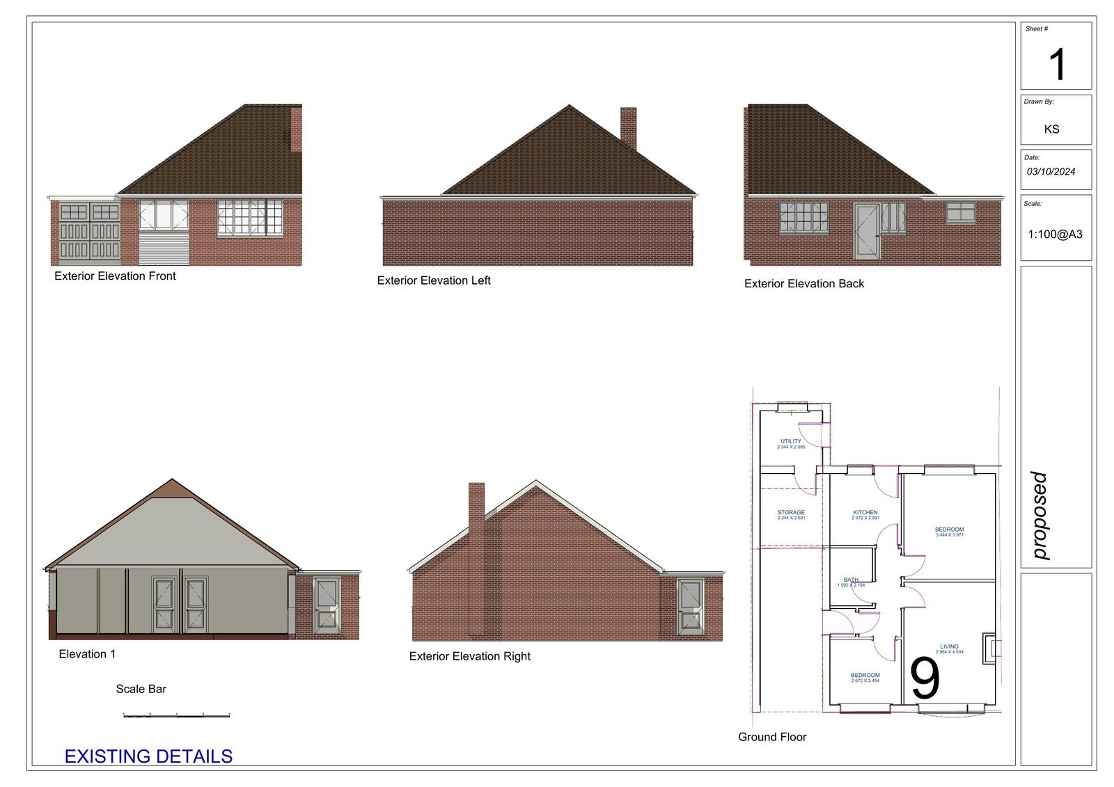
House extension
Received
15 Jan 2025
New homes
0
Full proposal
Conversion of existing car port to create a side extension with new roof and alterations to the front elevation
Documents
Have your say
Your comment matters. Councils must consider every representation that raises material planning considerations.