← Dudley Metropolitan Borough Council
P25/0063
Dudley Metropolitan Borough Council
Status
Decision made
House extension
Received
17 Jan 2025
New homes
0
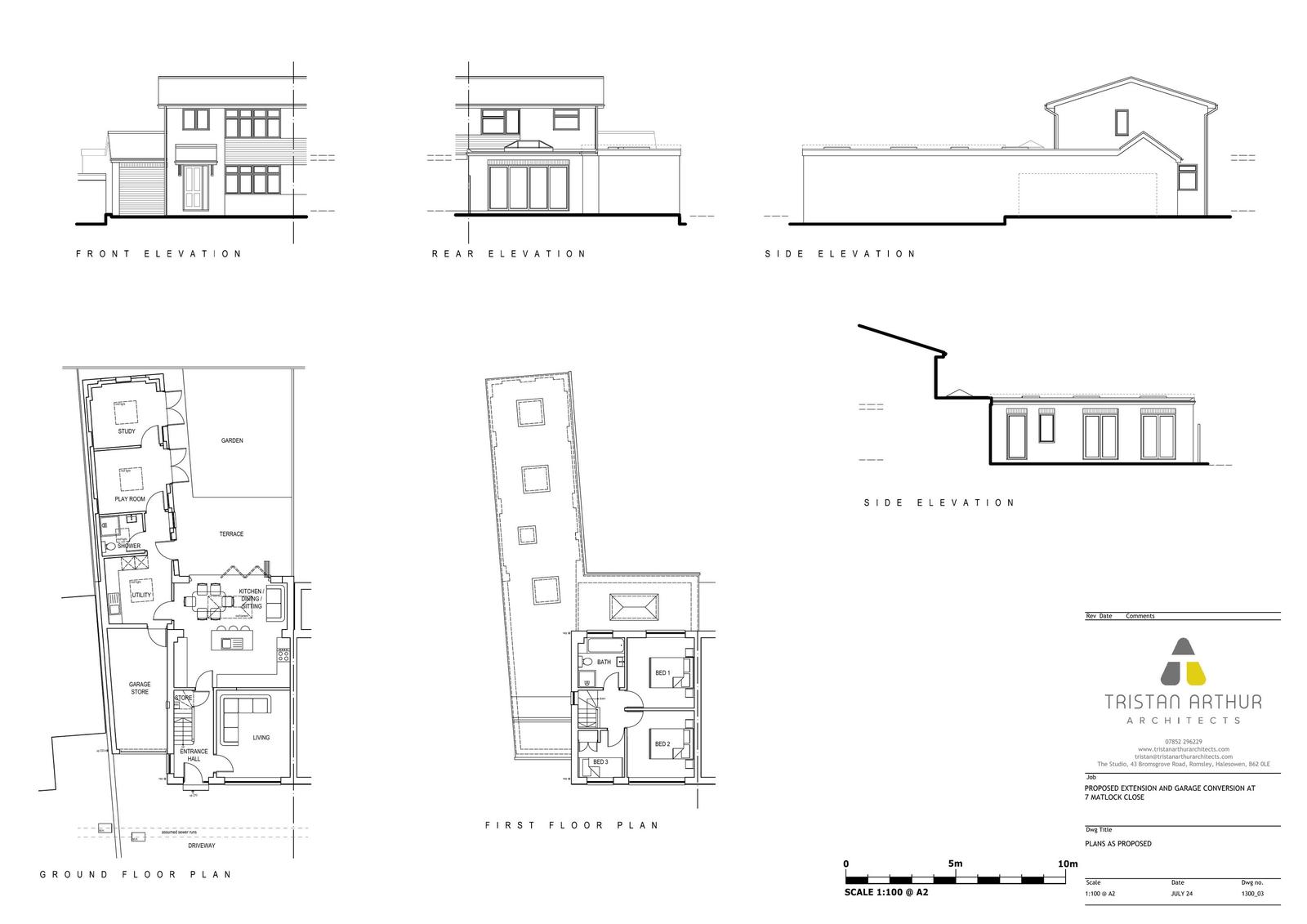
Full proposal
Single storey side/rear extension (to adjoin to existing detached garage). Conversion and elevational changes to existing garage to create additional rooms
Documents
Have your say
Your comment matters. Councils must consider every representation that raises material planning considerations.