← Dudley Metropolitan Borough Council
P25/0066
Dudley Metropolitan Borough Council
Status
Decision made
Change of use
Received
17 Jan 2025
New homes
0
Summary
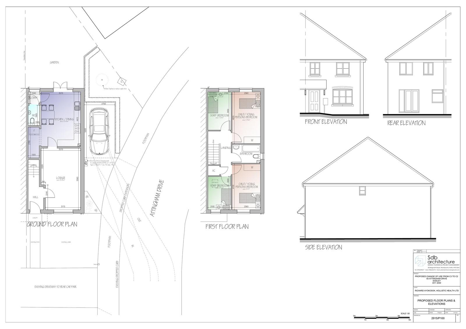
Change of use from four-bedroom dwelling (C3) to residential institution for two children (C2).
Full proposal
Proposed change of use from a 4 bedroom dwelling (Use Class C3 dwellinghouses) to residential accommodation for two children or young person's up to 18 years of age (Use Class C2 Residential Institutions) (Resubmission of refused application P24/1281)
Documents
Have your say
Your comment matters. Councils must consider every representation that raises material planning considerations.