← Dudley Metropolitan Borough Council

Status

Decision made House extension
Received
21 Jan 2025
New homes
0

Full proposal

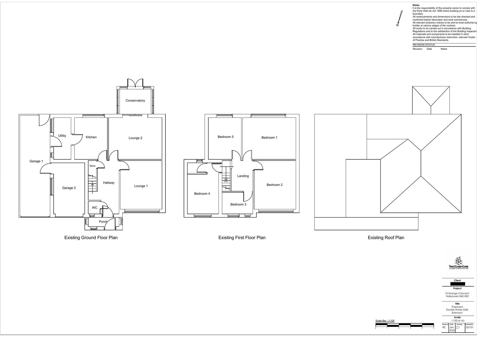
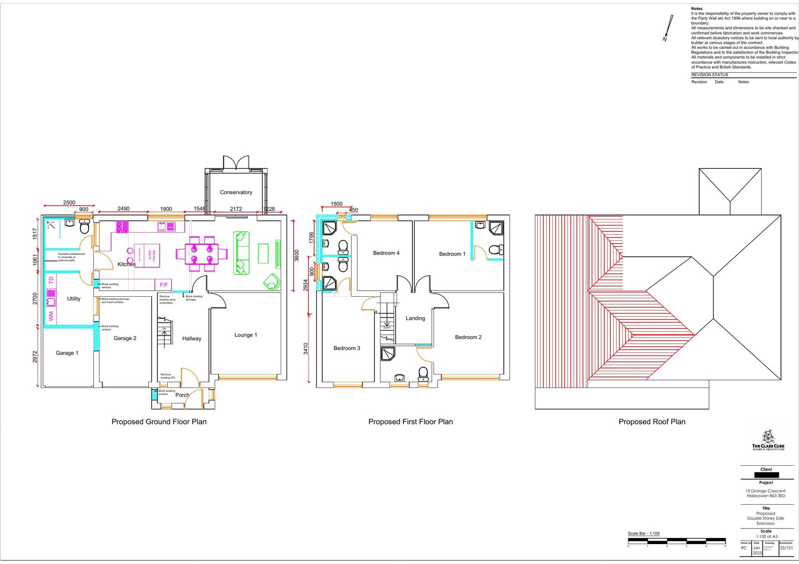
First floor side extension with additional roof alterations, partial garage conversion, minor elevational changes to garage and porch

Documents

DCPUBLIC
Archived · Original link
DCPUBLIC
Archived · Original link
DCPUBLIC
Archived · Original link

Have your say

Your comment matters. Councils must consider every representation that raises material planning considerations.

Write a comment