← Dudley Metropolitan Borough Council
P25/0111
Dudley Metropolitan Borough Council
Status
Decision made
Change of use
Received
30 Jan 2025
New homes
0
Summary
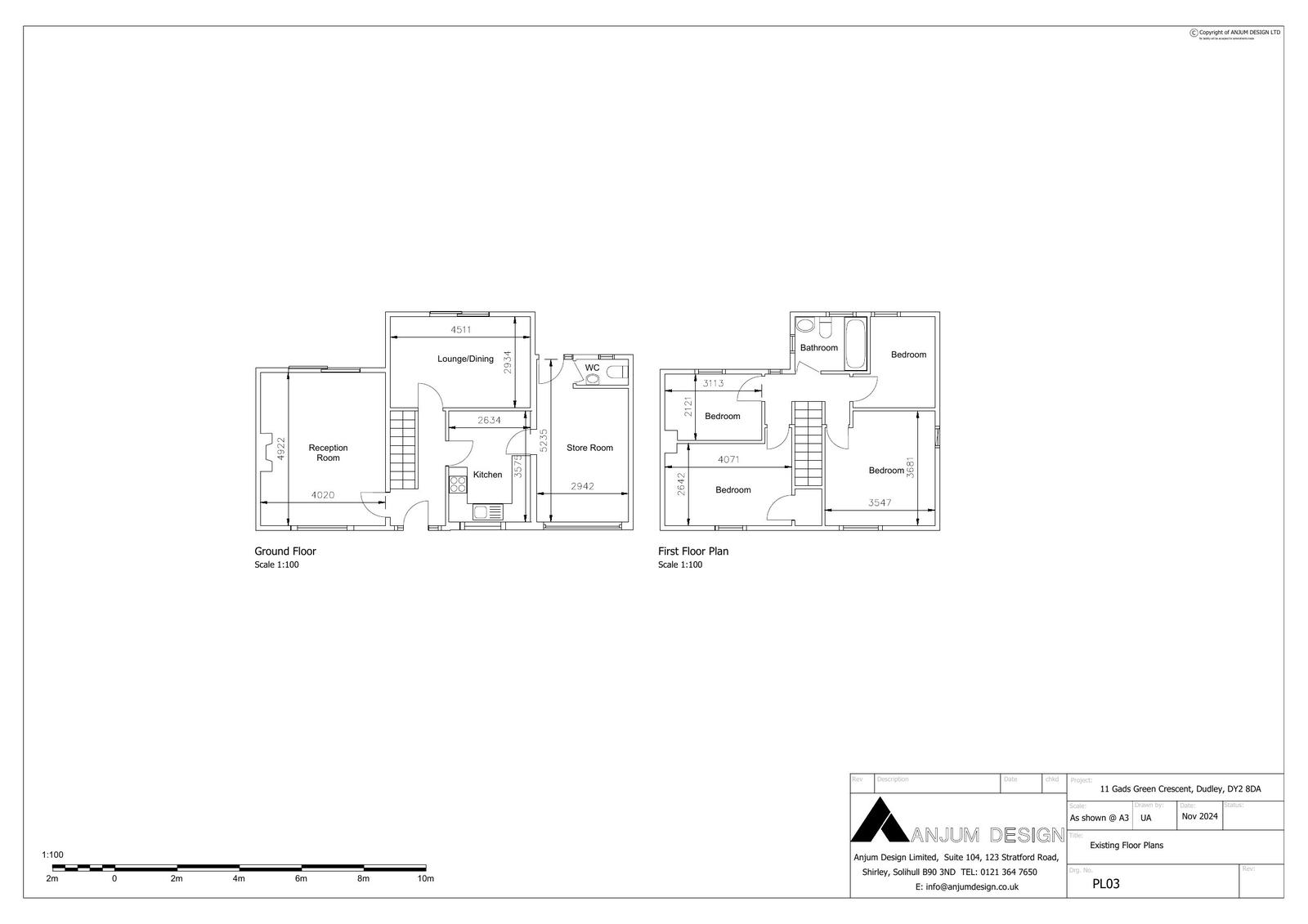
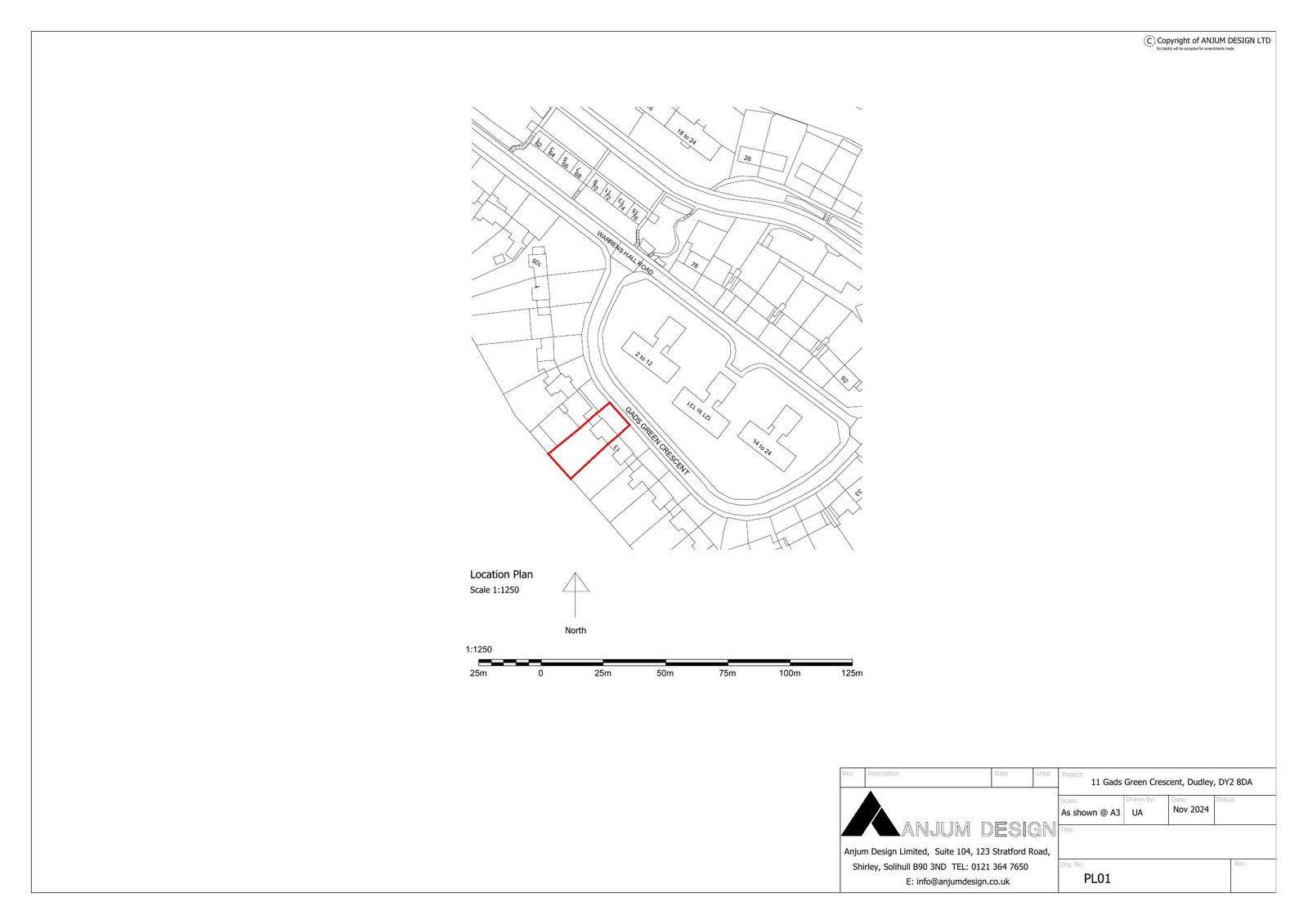
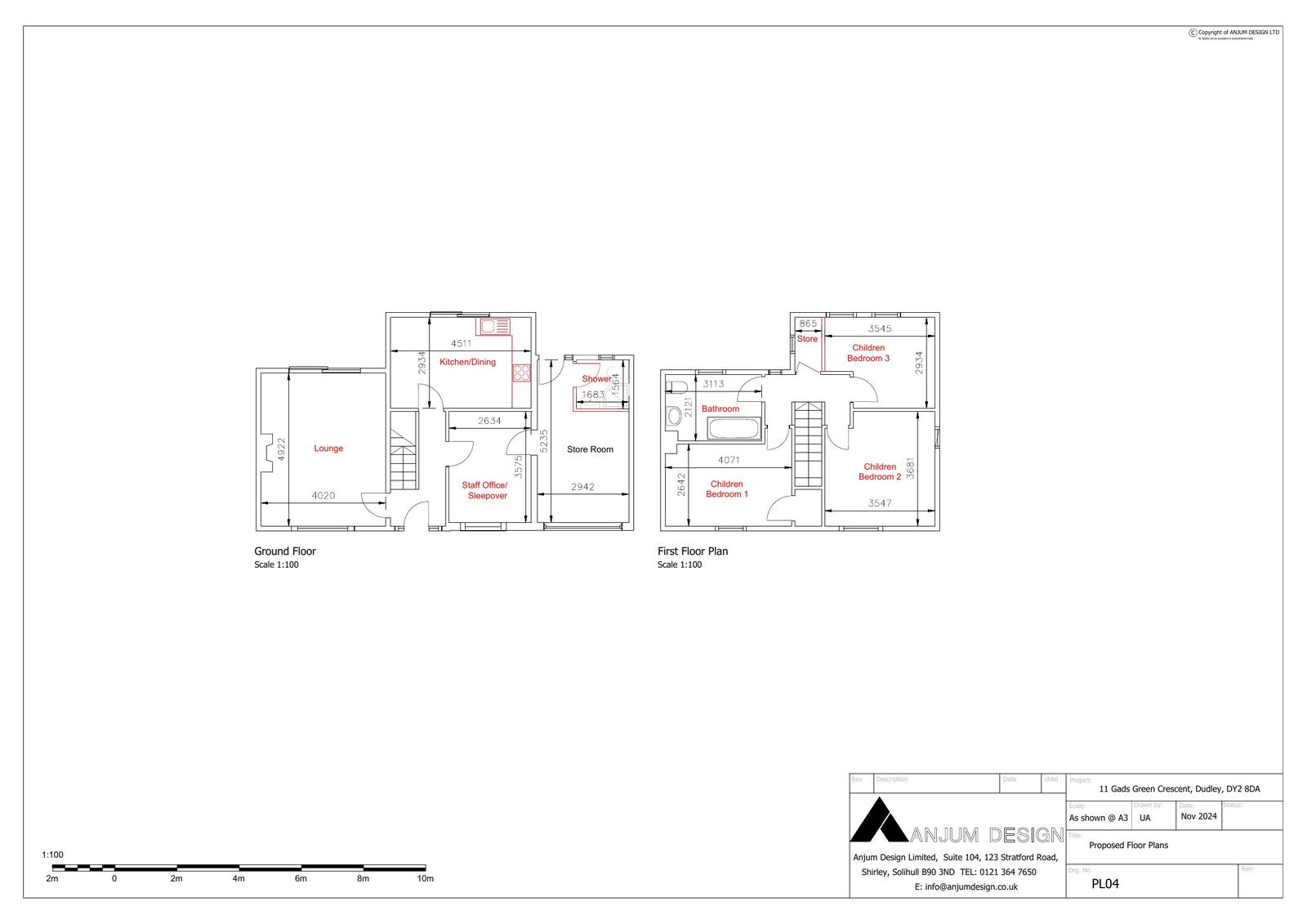
Change of use from dwelling (C3) to children’s home (C2).
Full proposal
Change of Use from dwelling house (C3) to children’s home (C2)
Documents
Have your say
Your comment matters. Councils must consider every representation that raises material planning considerations.