← Dudley Metropolitan Borough Council
P25/0115
Dudley Metropolitan Borough Council
Status
Decision made
Commercial
Received
31 Jan 2025
New homes
0
Full proposal
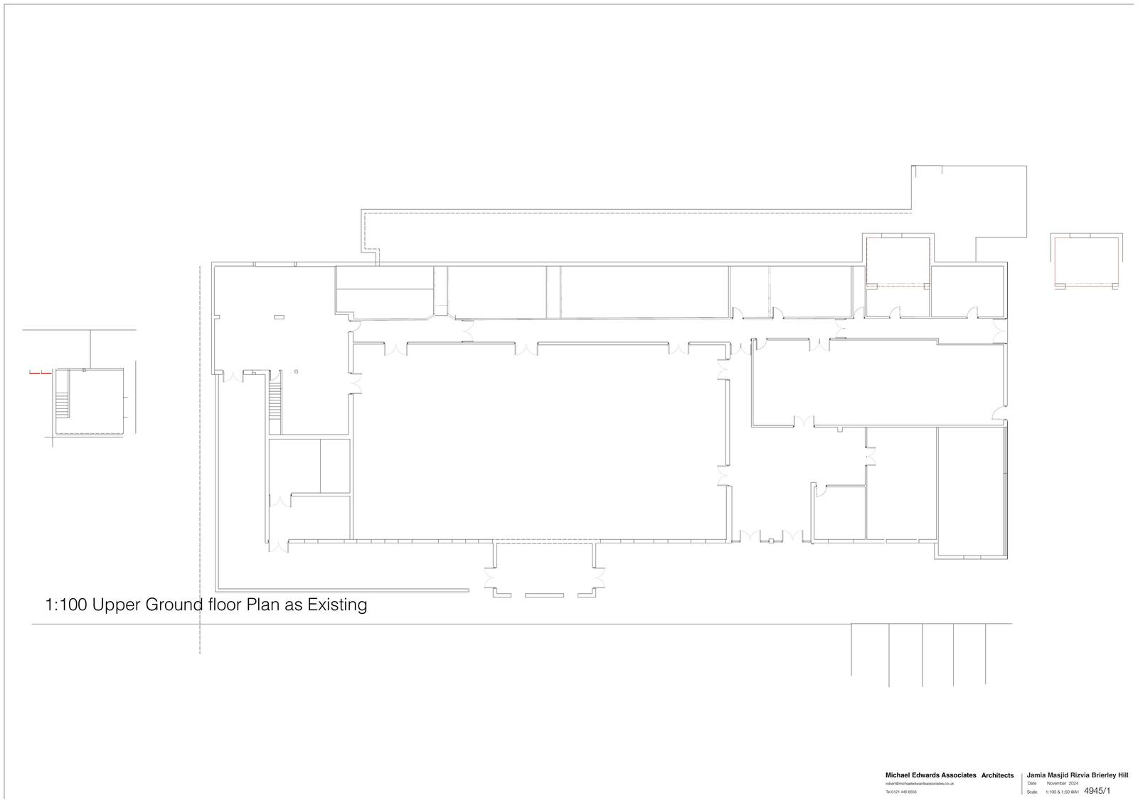
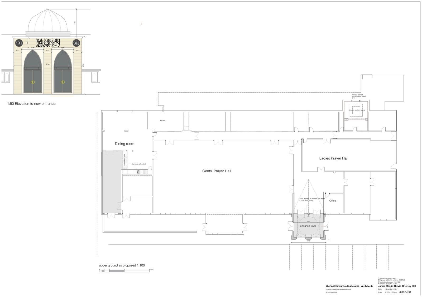
New entrance Foyer from Albion Street car park, with new flat roof and central Dome to roof, extension to side of Mosque to form larger dining area, new window to front elevation, and new Minaret to rear of building.
Documents
Have your say
Your comment matters. Councils must consider every representation that raises material planning considerations.