← Dudley Metropolitan Borough Council
P25/0269
Dudley Metropolitan Borough Council
Status
Decision made
Change of use
Received
14 Apr 2025
New homes
2
Summary
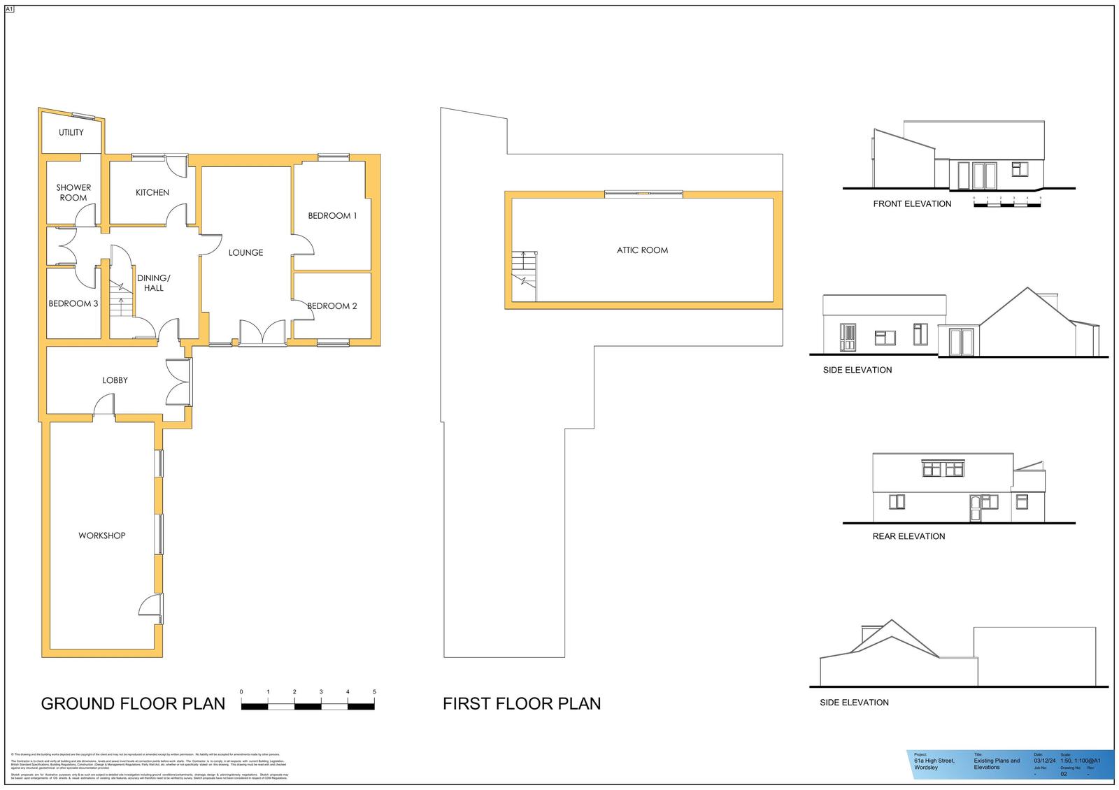
Convert existing bungalow and workshop into two two-bedroom dwellings.
Full proposal
Conversion of existing bungalow and workshop to 2 No. two bed dwellings and associated parking.
Documents
Have your say
Your comment matters. Councils must consider every representation that raises material planning considerations.