← Dudley Metropolitan Borough Council
P25/0322
Dudley Metropolitan Borough Council
Status
Decision made
House extension
Received
17 Mar 2025
New homes
0
Full proposal
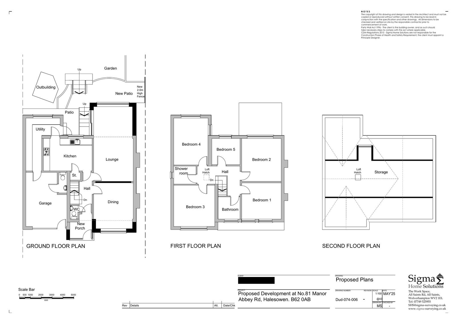
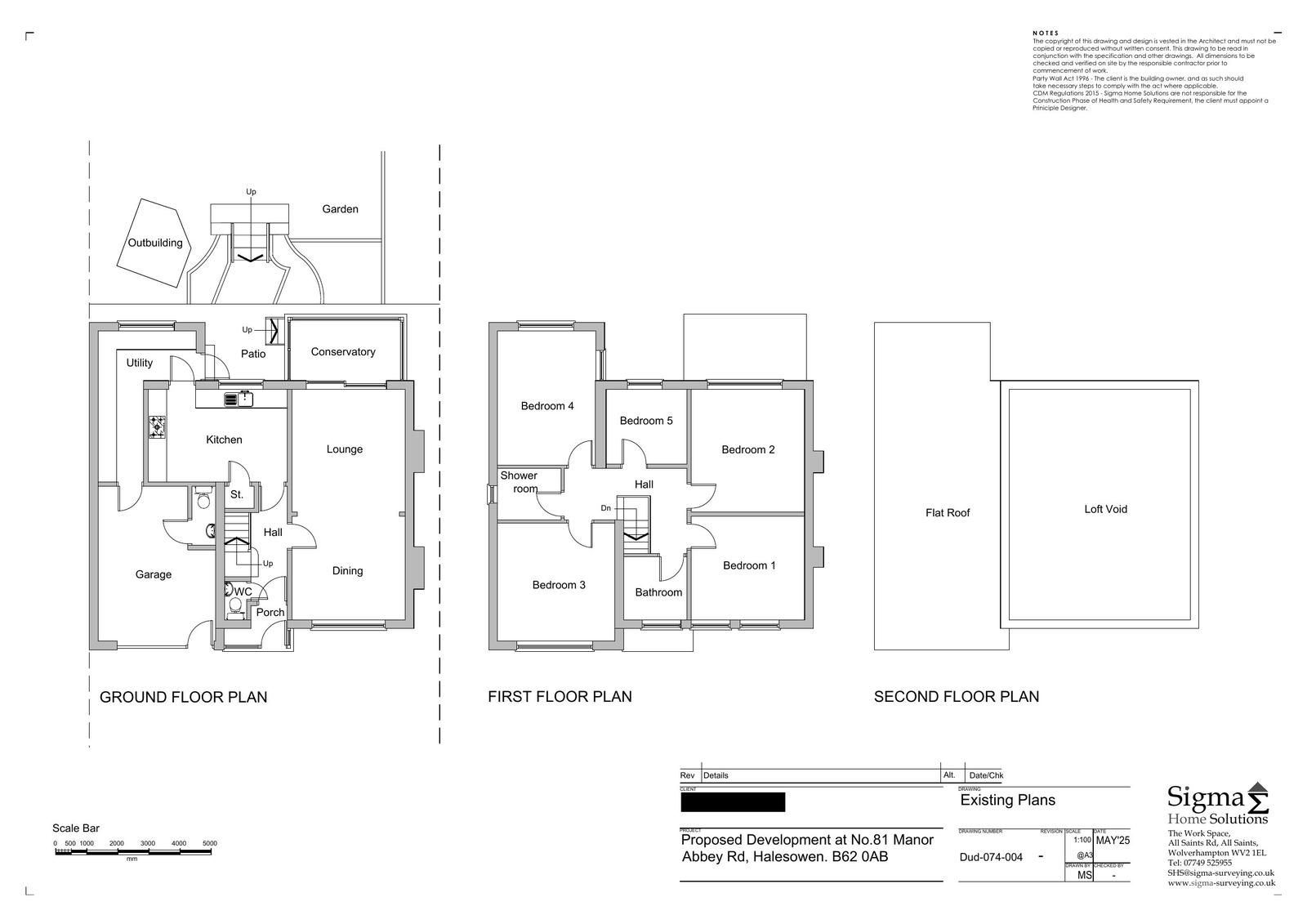
New pitched roof over first floor flat roof, new single storey front and rear extensions, raised patio and rear dormer
Documents
Have your say
Your comment matters. Councils must consider every representation that raises material planning considerations.