← Dudley Metropolitan Borough Council

Status

Decision made Change of use
Received
26 Mar 2025
New homes
2

Summary

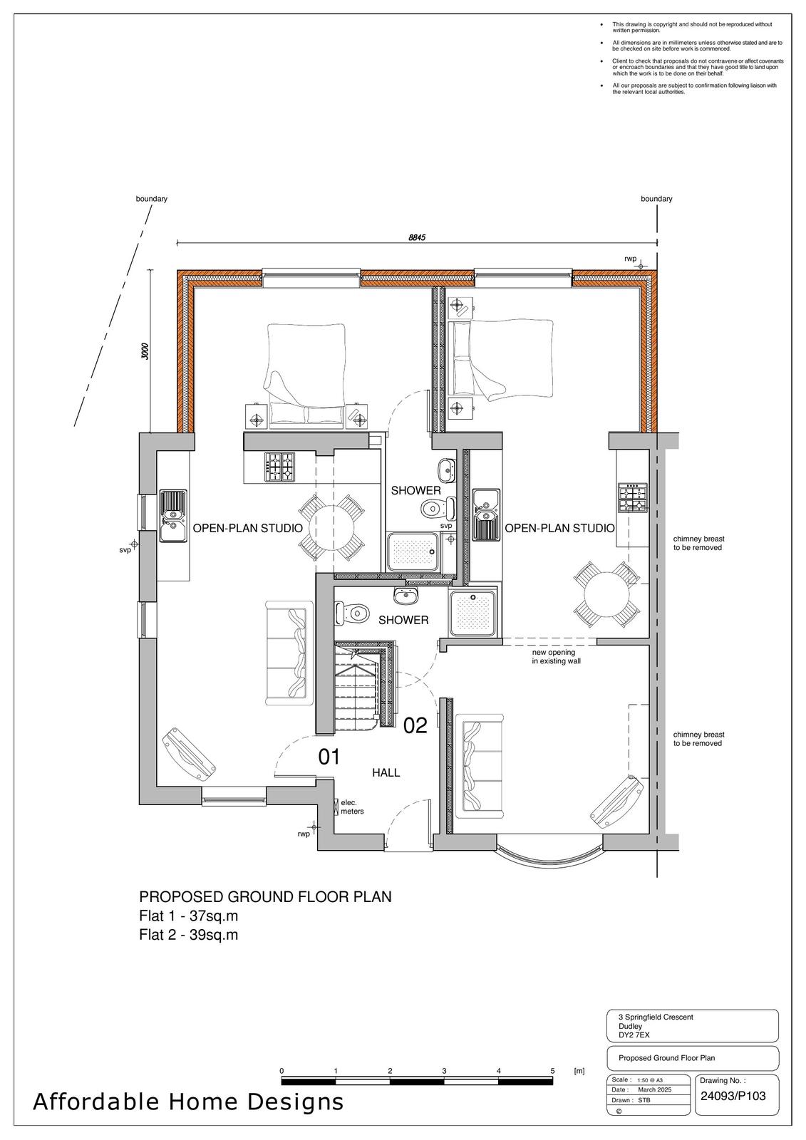
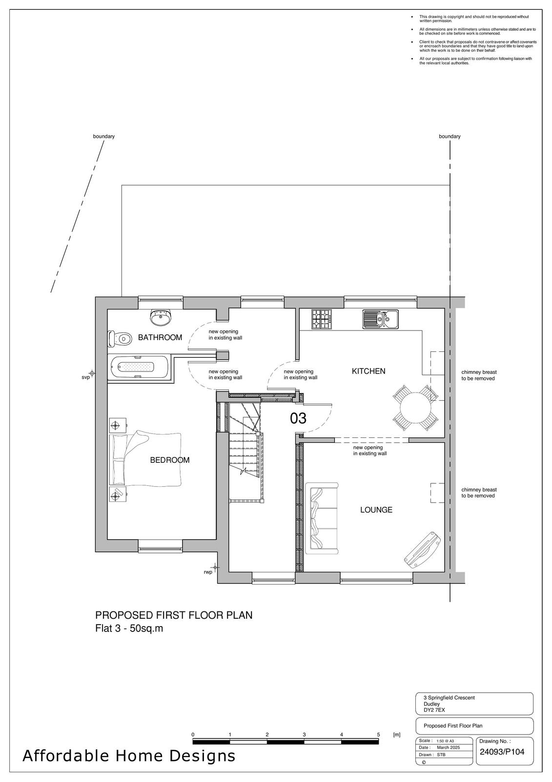
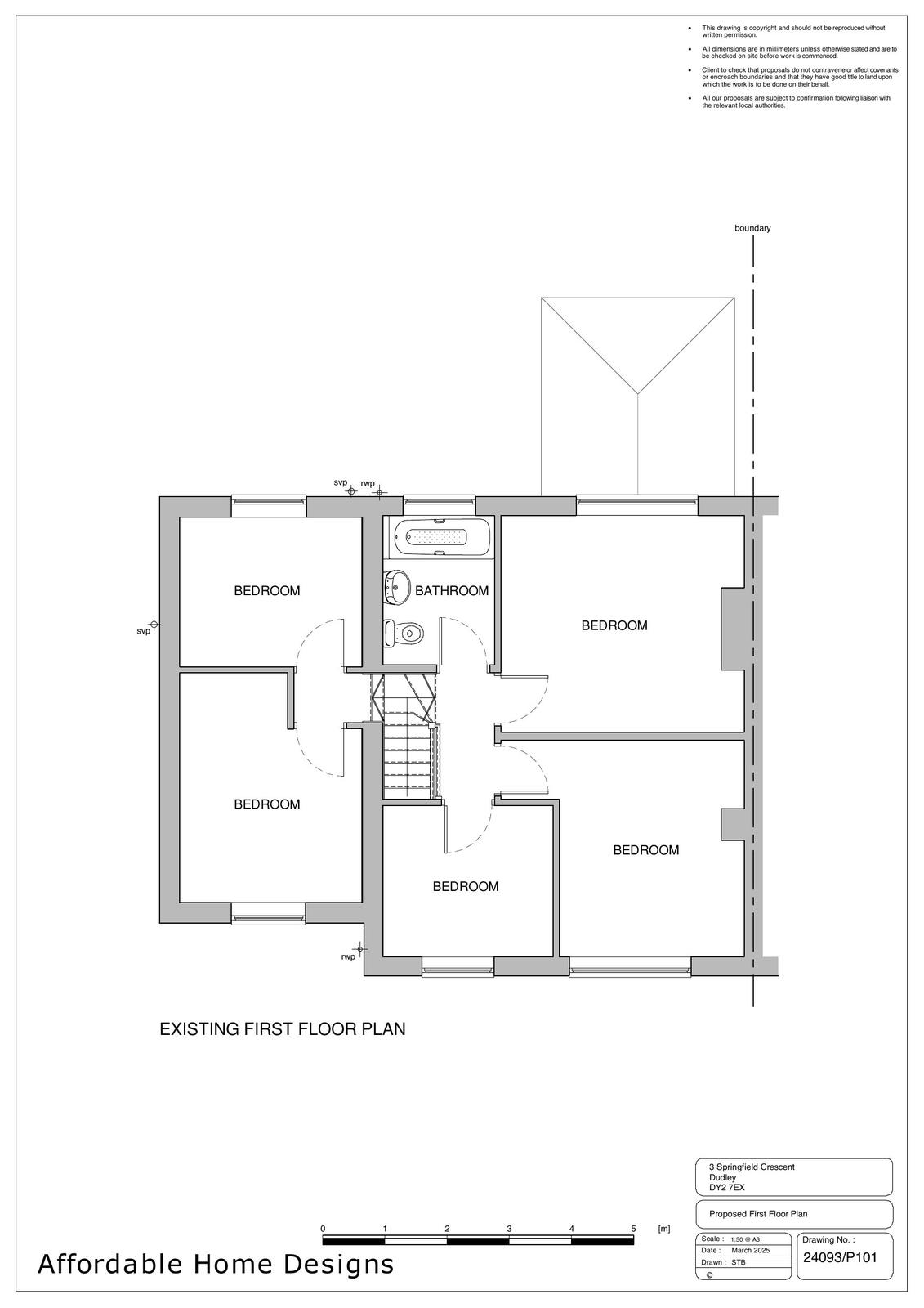
Convert existing dwelling into three apartments with single-storey rear extension.

Full proposal

Conversion of existing dwelling into 3 No. apartments and single storey rear extension

Have your say

Your comment matters. Councils must consider every representation that raises material planning considerations.

Write a comment