← Dudley Metropolitan Borough Council
P25/0386
Dudley Metropolitan Borough Council
Status
Decision made
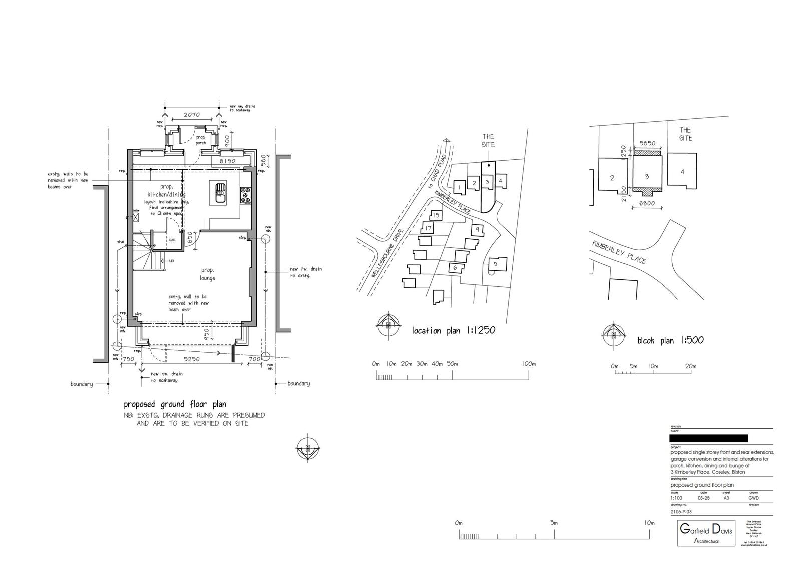
House extension
Received
27 Mar 2025
New homes
0
Full proposal
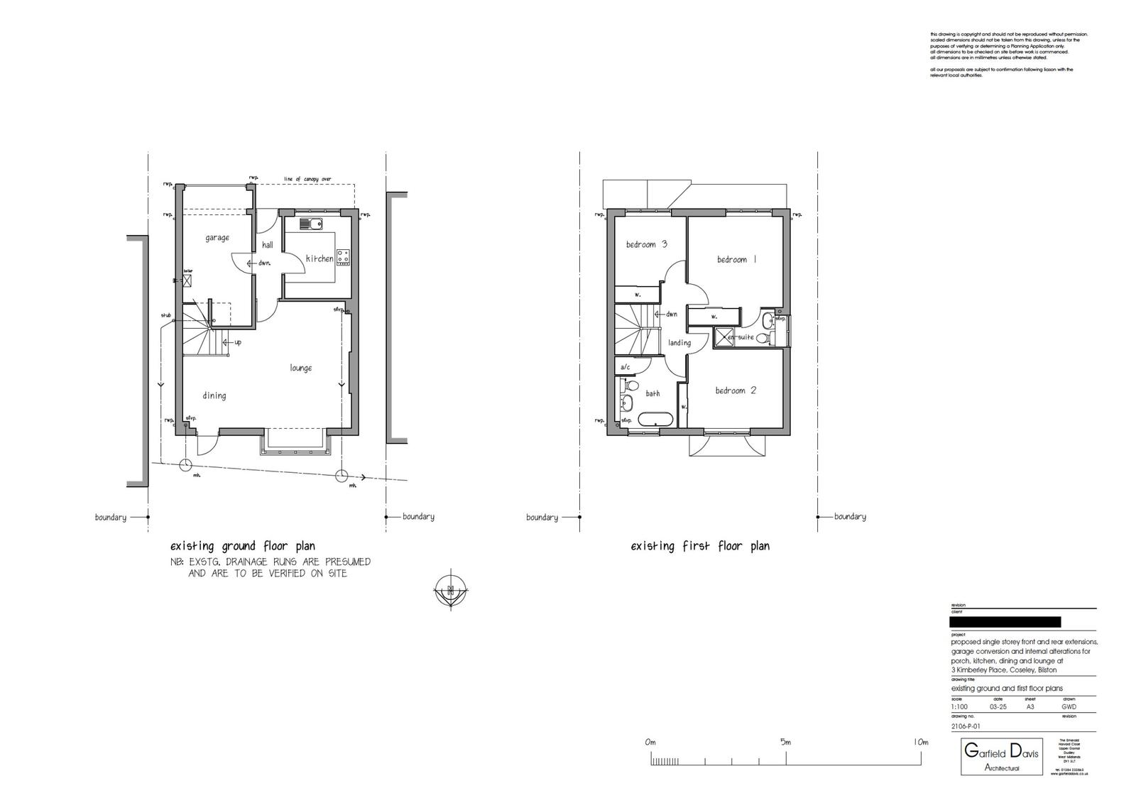
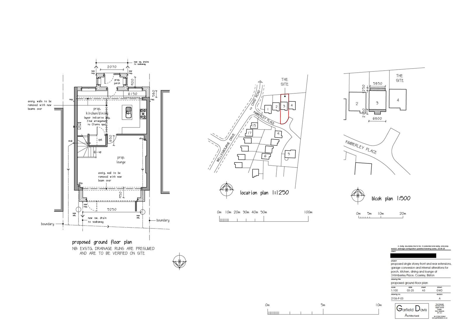
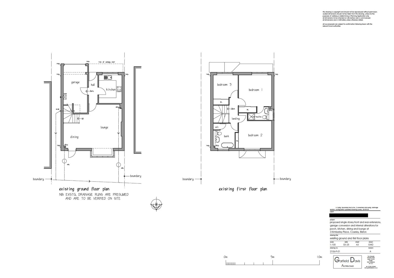
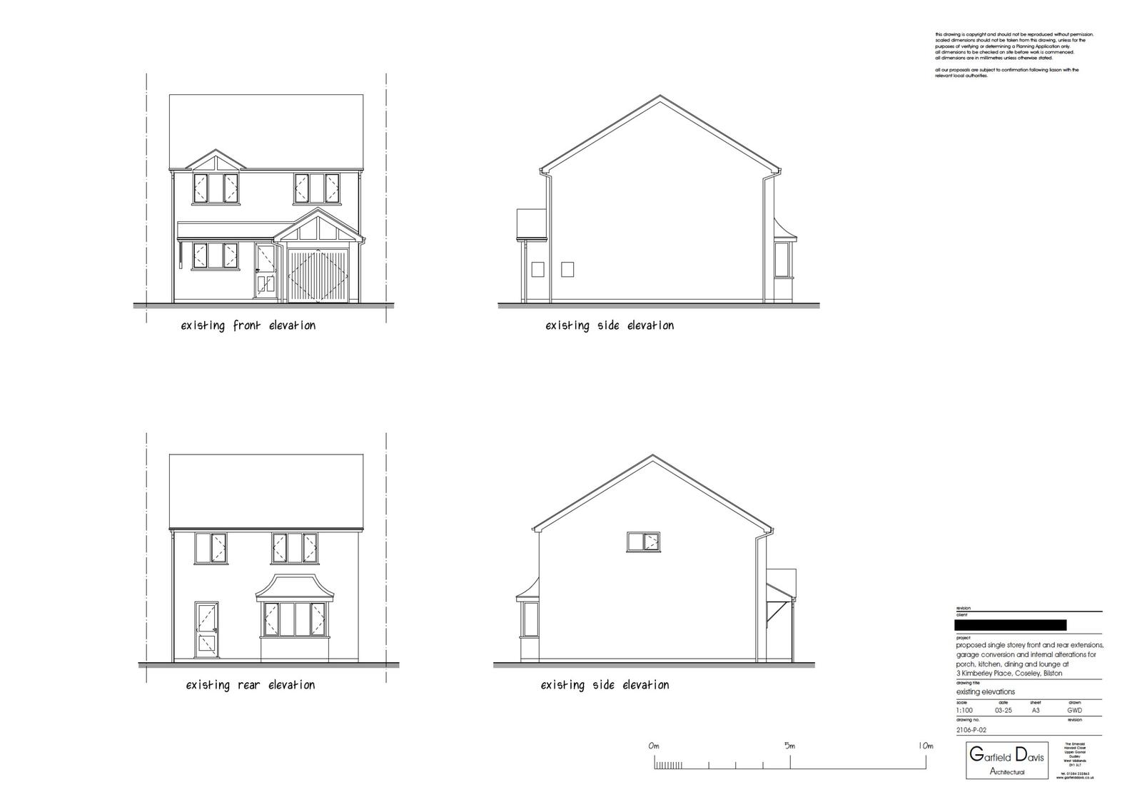
Single storey front and rear extension and garage conversion.
Documents
Have your say
Your comment matters. Councils must consider every representation that raises material planning considerations.