← Dudley Metropolitan Borough Council
P25/0387
Dudley Metropolitan Borough Council
Status
Decision made
House extension
Received
27 Mar 2025
New homes
0
Full proposal
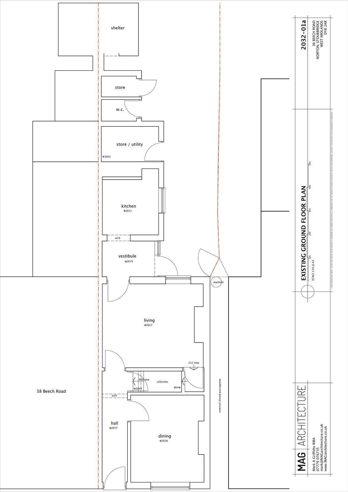
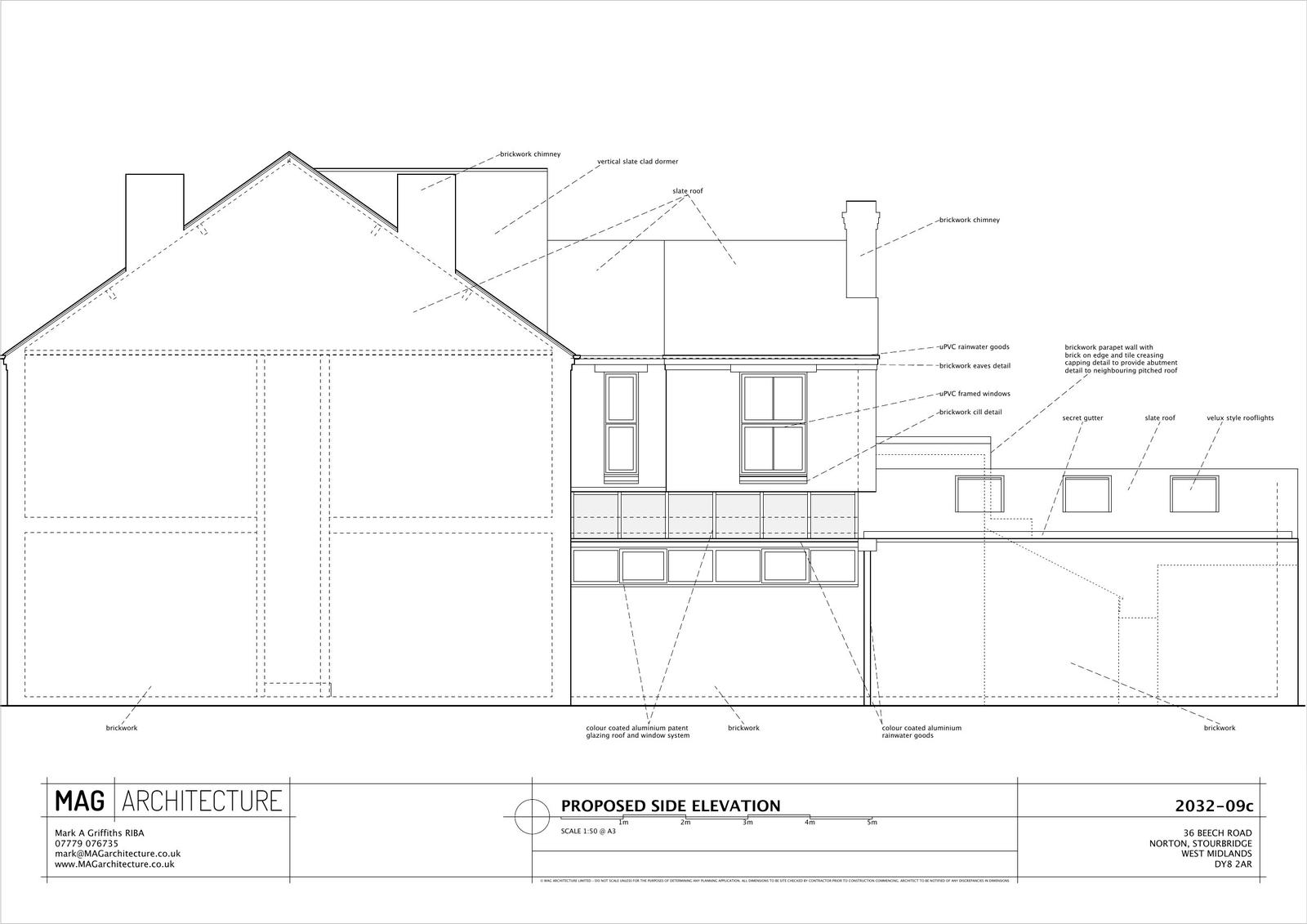
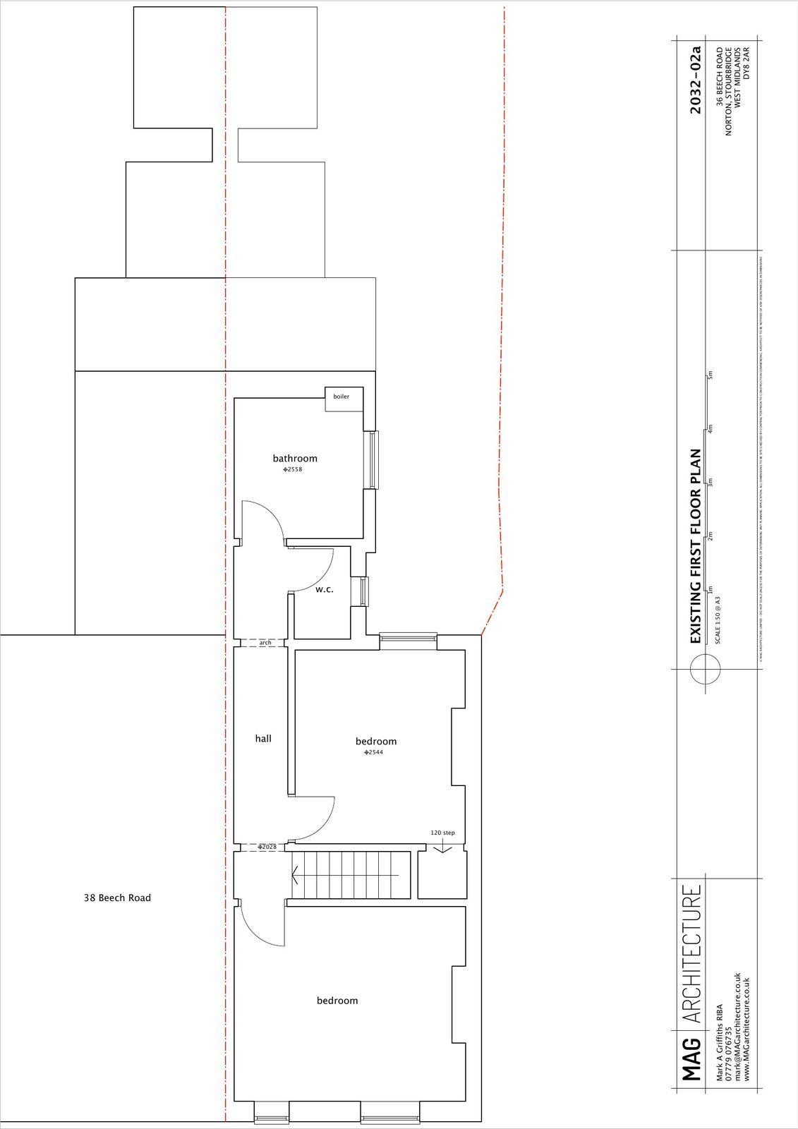
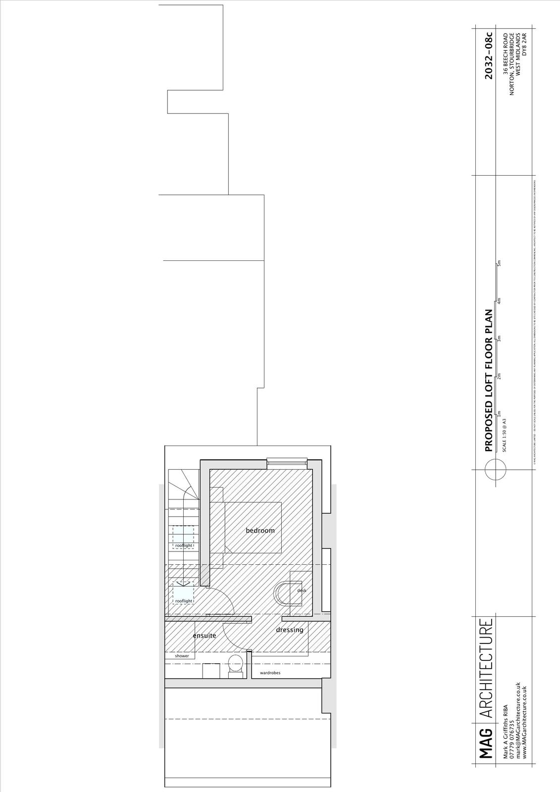
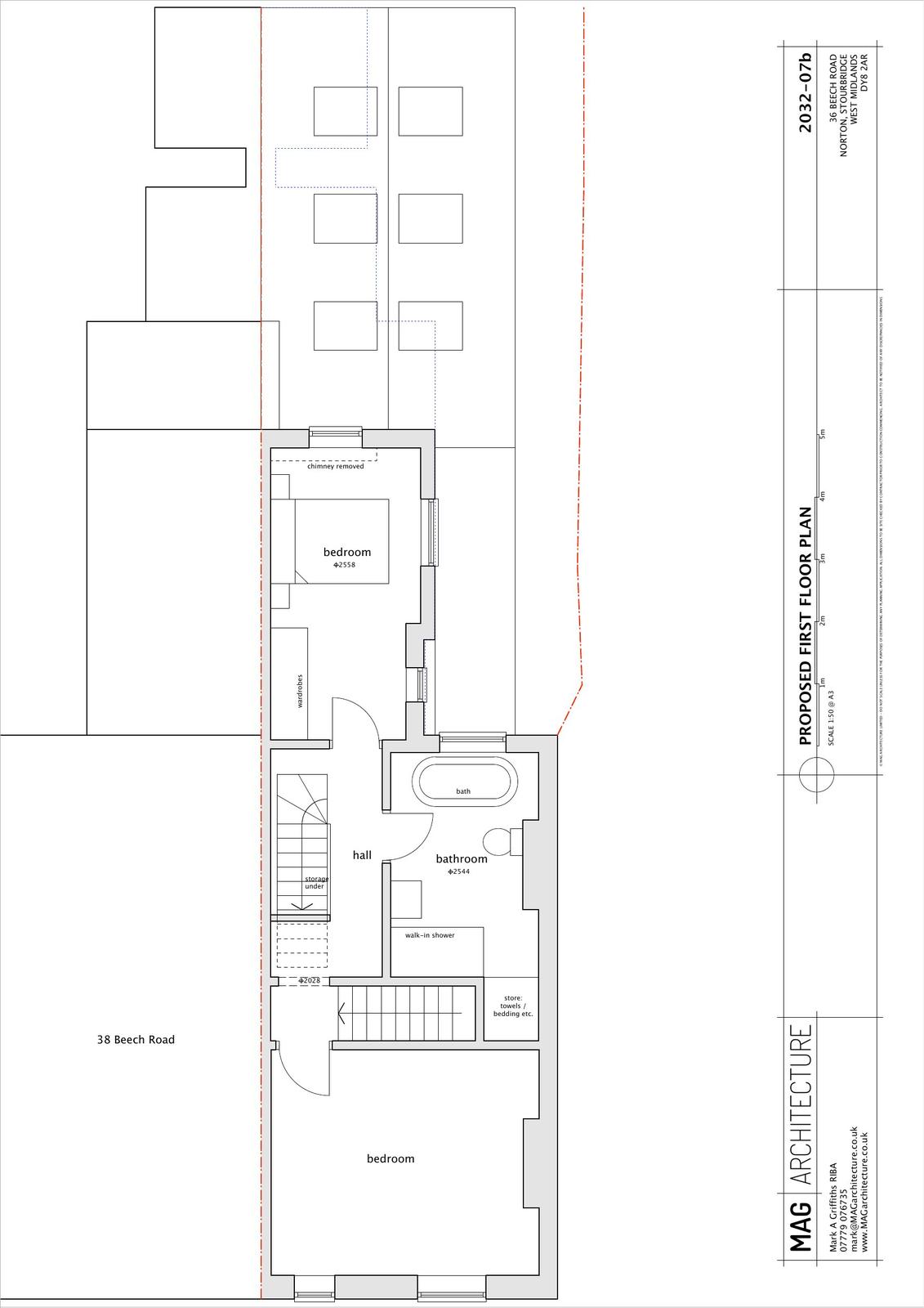
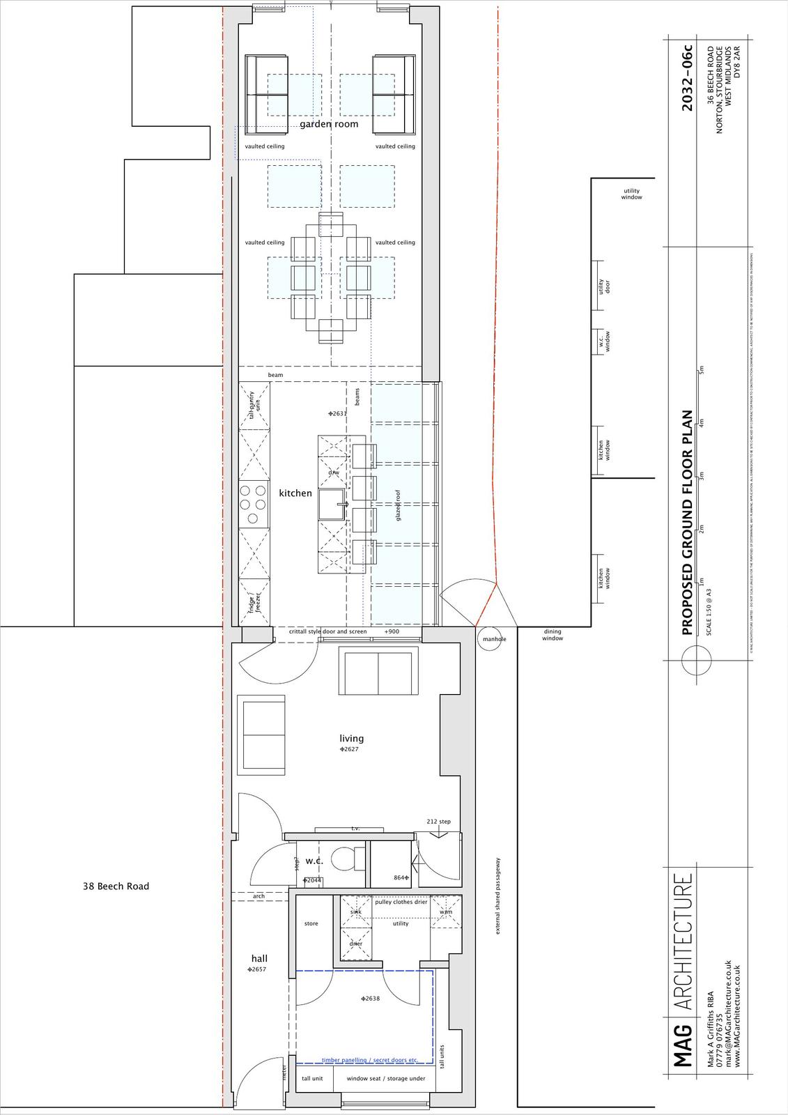
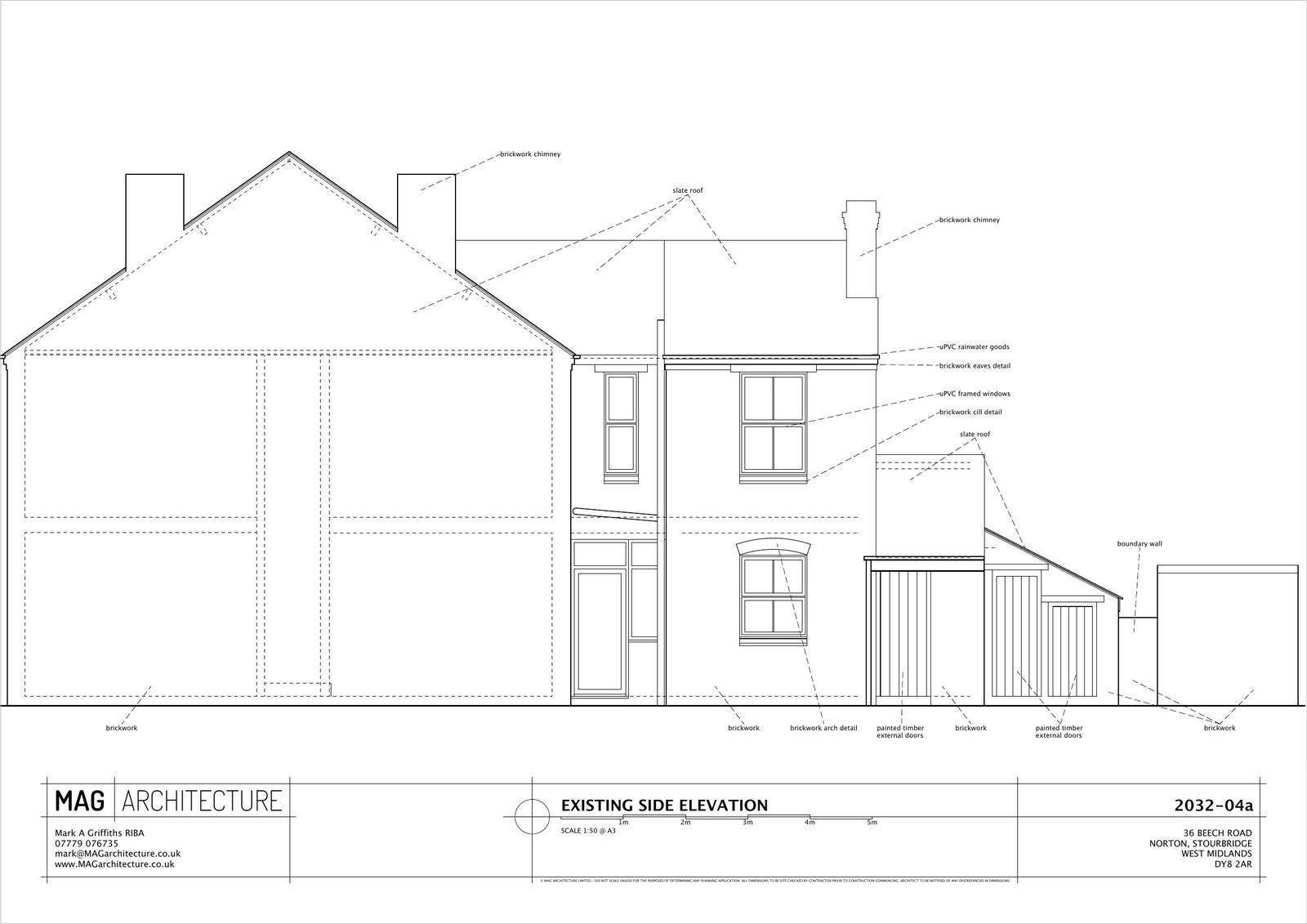
Single storey rear and side extensions, loft conversion with formation of rear dormer and insertion of rear bedroom window (following demolition of existing extensions)
Documents
Have your say
Your comment matters. Councils must consider every representation that raises material planning considerations.