← Dudley Metropolitan Borough Council
P25/0464
Dudley Metropolitan Borough Council
Status
Decision made
House extension
Received
11 Apr 2025
New homes
0
Full proposal
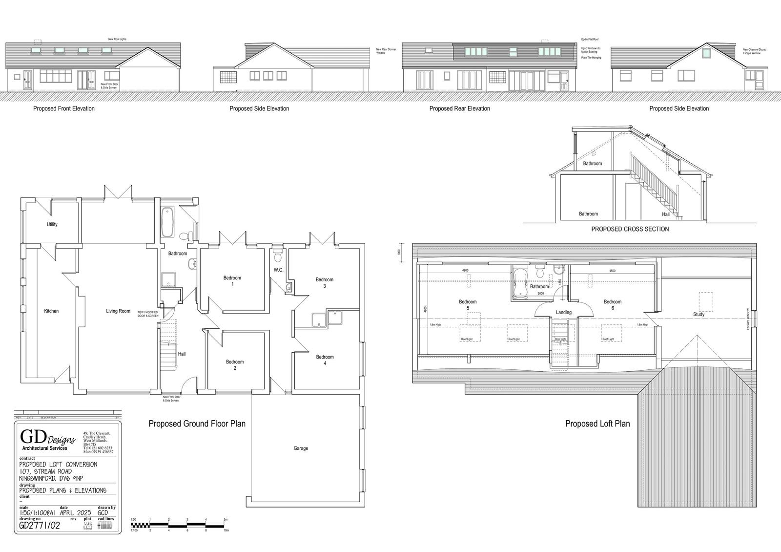
Proposed Loft Conversion including installation of dormer window to rear, roof lights to front elevation and new window to side.
Documents
Have your say
Your comment matters. Councils must consider every representation that raises material planning considerations.