← Dudley Metropolitan Borough Council
P25/0500
Dudley Metropolitan Borough Council
Status
Decision made
House extension
Received
24 Apr 2025
New homes
0
Full proposal
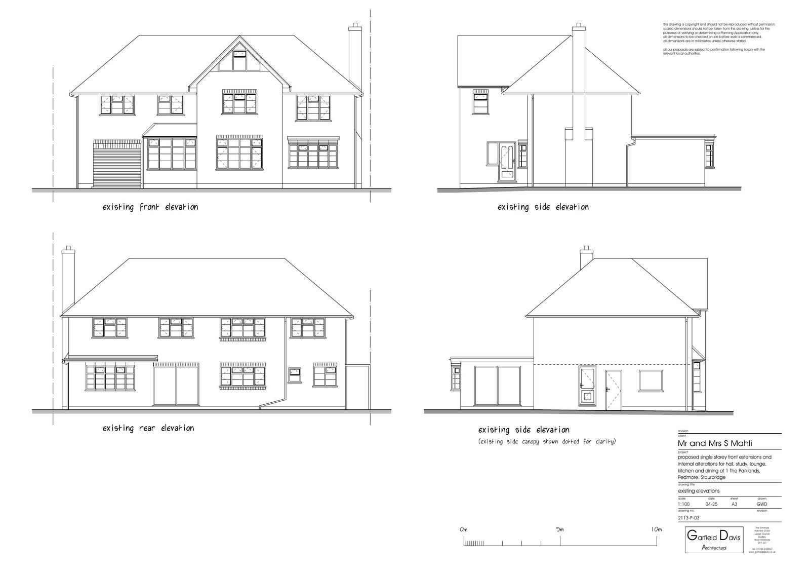
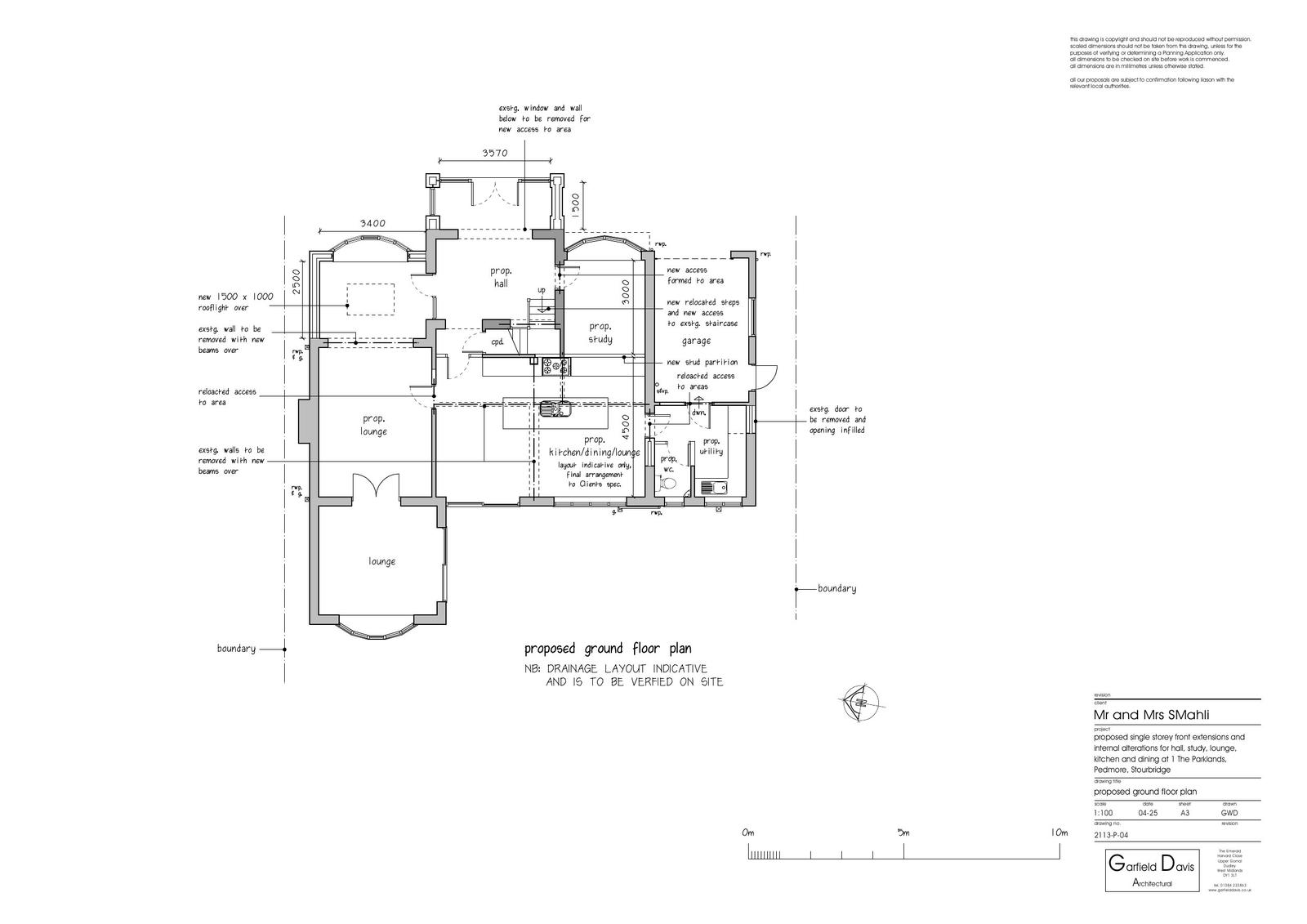
Erection of single storey extensions to front
Documents
Have your say
Your comment matters. Councils must consider every representation that raises material planning considerations.