← Dudley Metropolitan Borough Council
P25/0570
Dudley Metropolitan Borough Council
Status
Application under appeal
House extension
Received
13 May 2025
New homes
0
Full proposal
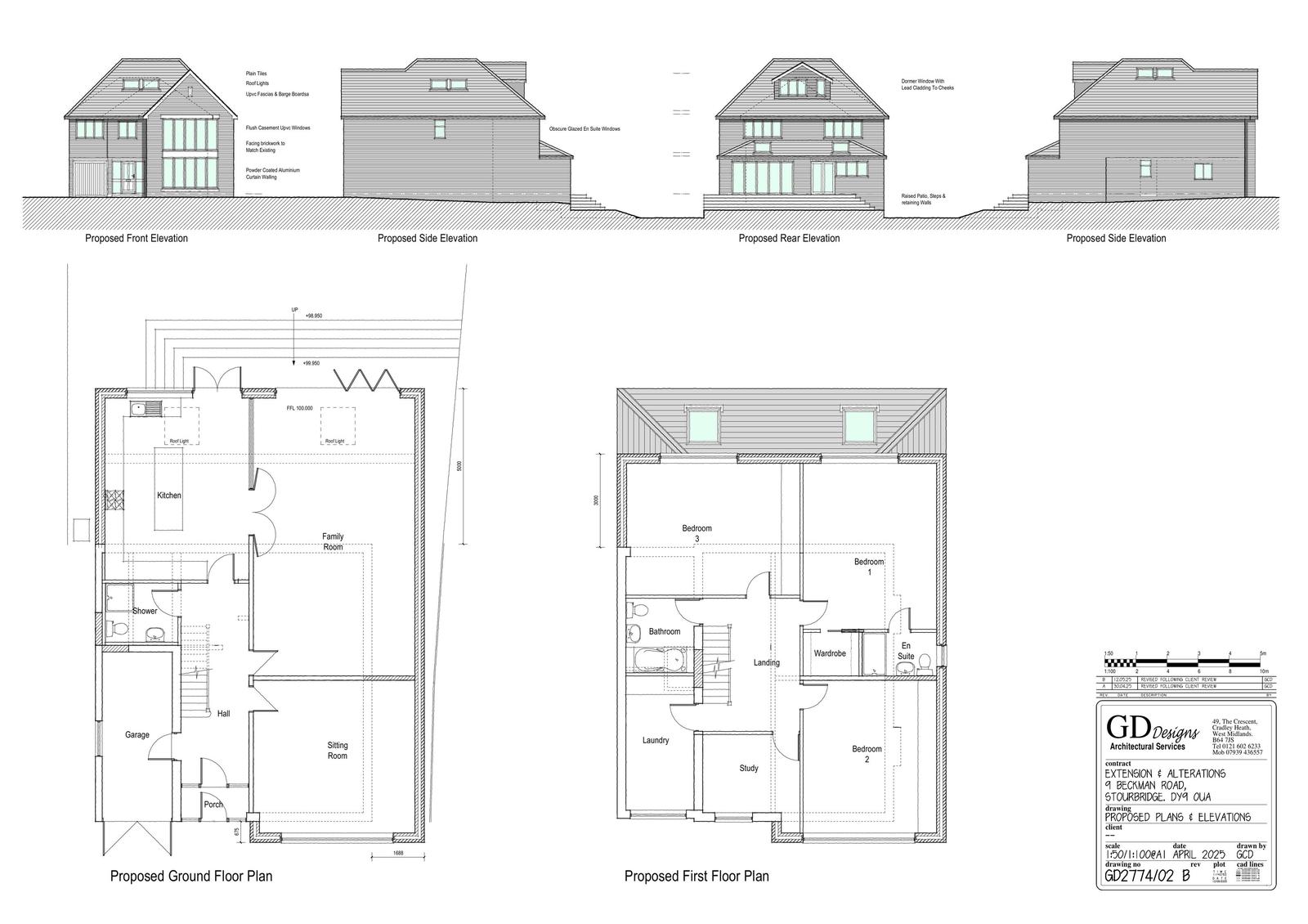
Erection of two storey side, front & rear extension; part single storey rear extension; raised pitched roof incorporating loft conversion, dormer window to rear & roof lights to front together with new steps to the rear.
Documents
Have your say
Your comment matters. Councils must consider every representation that raises material planning considerations.