← Dudley Metropolitan Borough Council
P25/0588
Dudley Metropolitan Borough Council
Status
Decision made
Change of use
Received
16 May 2025
New homes
0
Summary
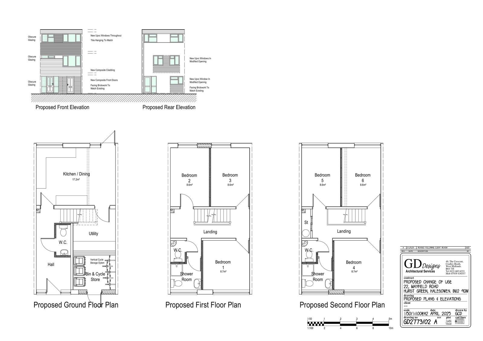
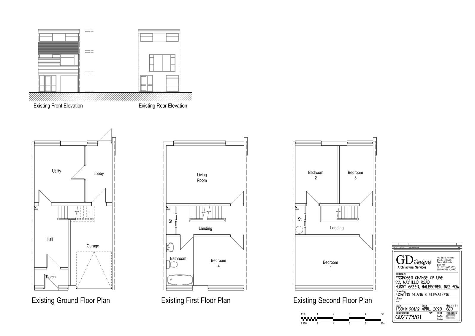
Change of use from dwelling (C3) to 6-bed HMO (C4) with external front and rear alterations.
Full proposal
Change of use of existing dwellinghouse (Use Class C3) to 6 bed House In Multiple Occupation (Use Class C4) with external alteration to front and rear elevations
Documents
Have your say
Your comment matters. Councils must consider every representation that raises material planning considerations.