← Dudley Metropolitan Borough Council
P25/0616
Dudley Metropolitan Borough Council
Status
Decision made
Change of use
Received
22 May 2025
New homes
1
Full proposal
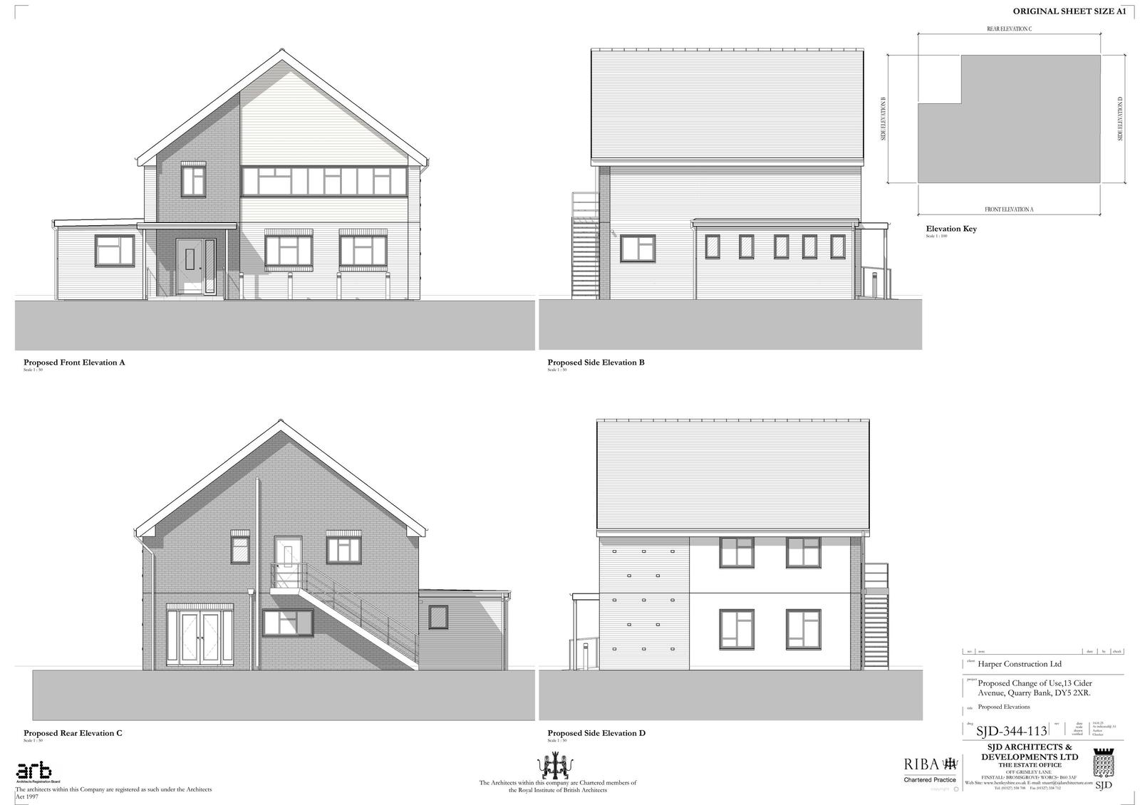
Change of use of ground floor from Assisted Living Centre to 1no Assisted Living Residential Flat and alterations to existing front entrance
Documents
Have your say
Your comment matters. Councils must consider every representation that raises material planning considerations.