← Dudley Metropolitan Borough Council
P25/0629
Dudley Metropolitan Borough Council
Status
Decision made
Change of use
Received
27 May 2025
New homes
2
Summary
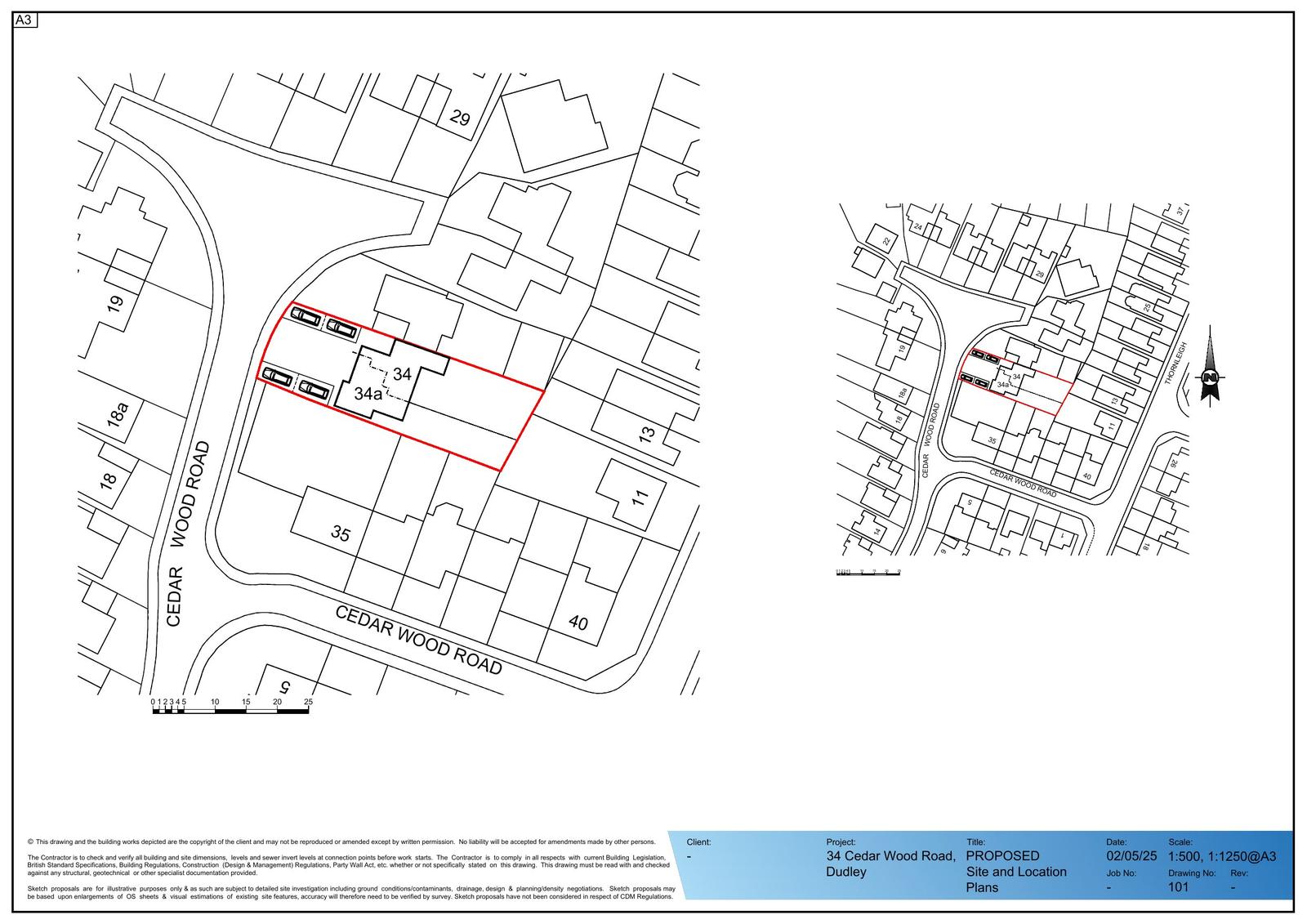
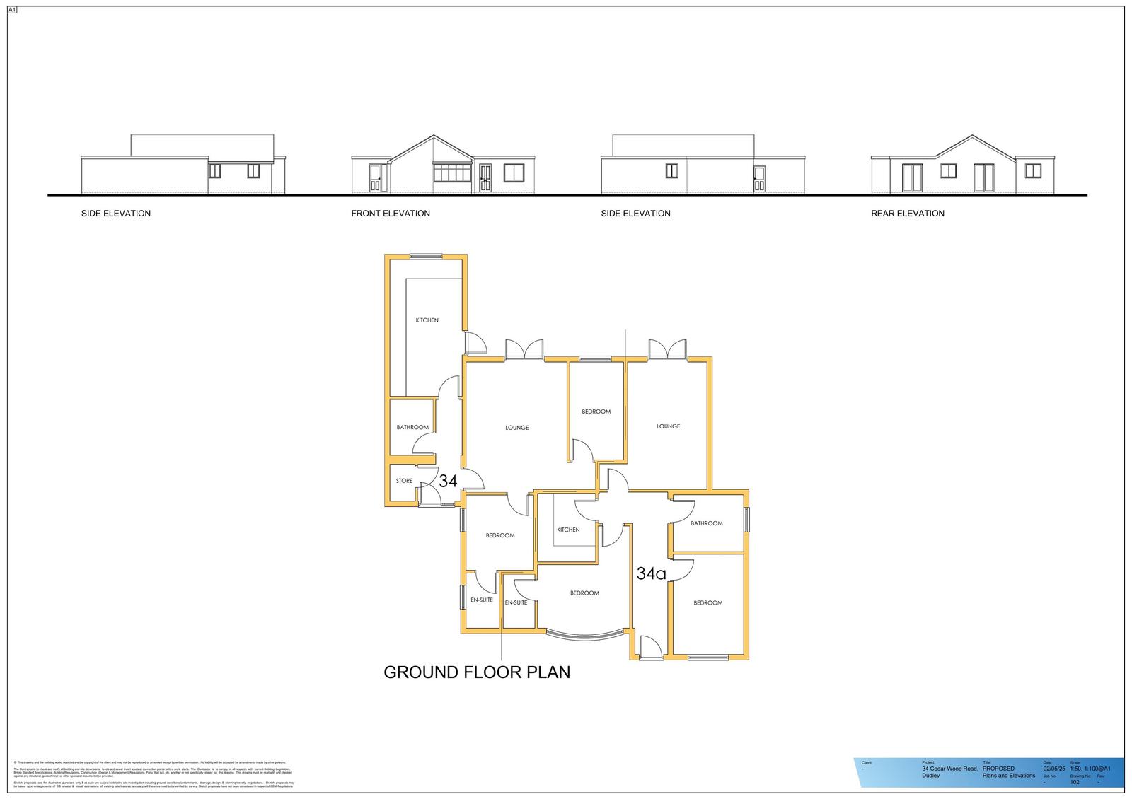
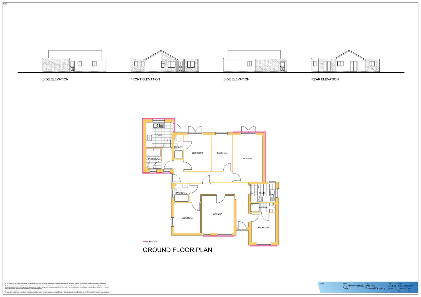
Convert property into two flats with single-storey extensions and replace cladding with white render.
Full proposal
Conversion of existing property to 2 no. flats (Use Class C3); single storey extensions to front, side and rear. Retrospective consent to remove existing cladding on front , rear and side sections to be replaced with a white render finish where indicated.
Documents
Have your say
Your comment matters. Councils must consider every representation that raises material planning considerations.