← Back to Dudley Metropolitan Borough Council
Application
P25/0635
Dudley Metropolitan Borough Council · AGILE
Status
Registered application
New housing
Received
29 May 2025
New dwellings
1
What you can do
Take Action
Make your voice heard. Authorities need to hear from people who support new homes.
Summary
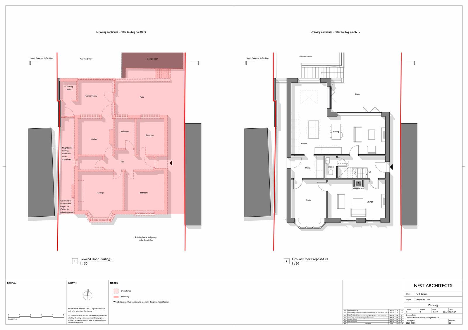
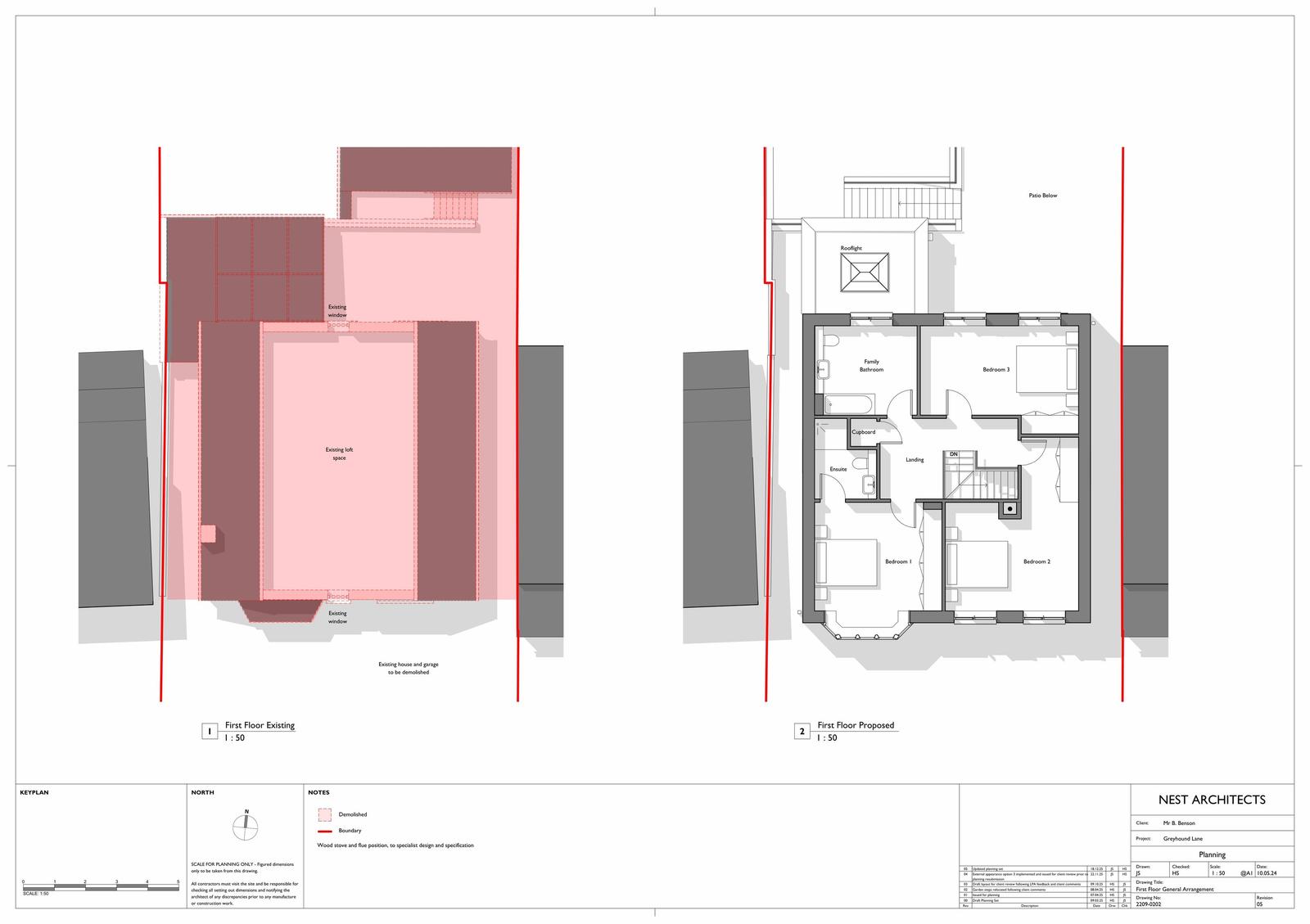
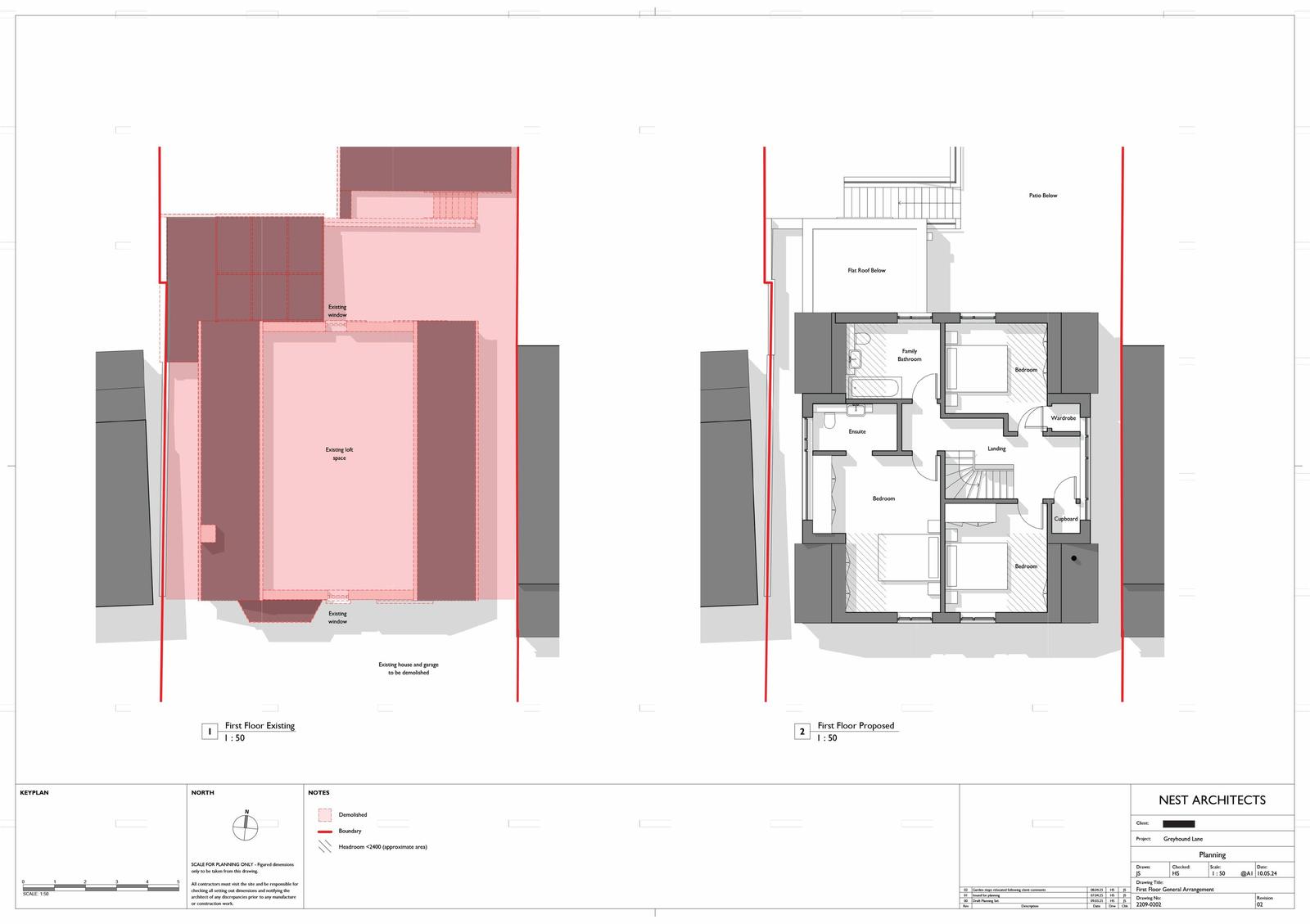
Demolition of existing dwelling and erection of replacement dwelling with parking and garden.
Full Proposal
Demolition of existing dwelling and erection of replacement dwelling with associated parking, garden and ancillary works.
Detail pages
- View live detail on council site
- No archived detail page available.
Documents
Exiisting and proposed floor plan, drg no. 2209-202 (A1)
DCPUBLIC
Not downloaded
· Council link
Existing and proposed east elevation, drg no.2209-902-02 (A1)
DCPUBLIC
Not downloaded
· Council link
Existing and proposed ground floor plan, drg no.2209-0201 (A1)
DCPUBLIC
Not downloaded
· Council link
Existing and proposed rear elevation, drg no.2209-901-02 (A1)
DCPUBLIC
Not downloaded
· Council link
Existing and proposed roof arrangement, drg no.2209-203 (A1)
DCPUBLIC
Not downloaded
· Council link
Existing and proposed South elevation drg no.2209-903-02 (A1)
DCPUBLIC
Not downloaded
· Council link
Existing and proposed West elevation, drg no. 2209-902-02 (A1)
DCPUBLIC
Not downloaded
· Council link
Proposed Block plan (A4)
DCPUBLIC
Not downloaded
· Council link
Site location plan (A4)
DCPUBLIC
Archived copy
· Council link