← Dudley Metropolitan Borough Council
P26/0130
Dudley Metropolitan Borough Council
Status
Registered application
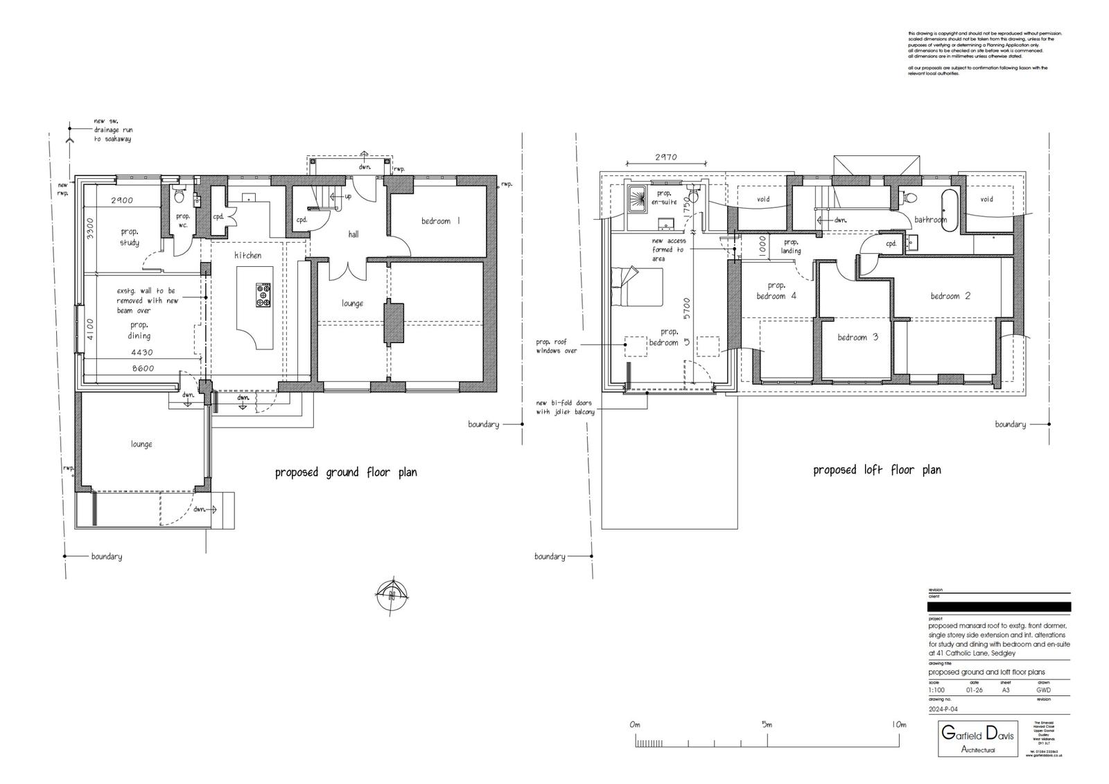
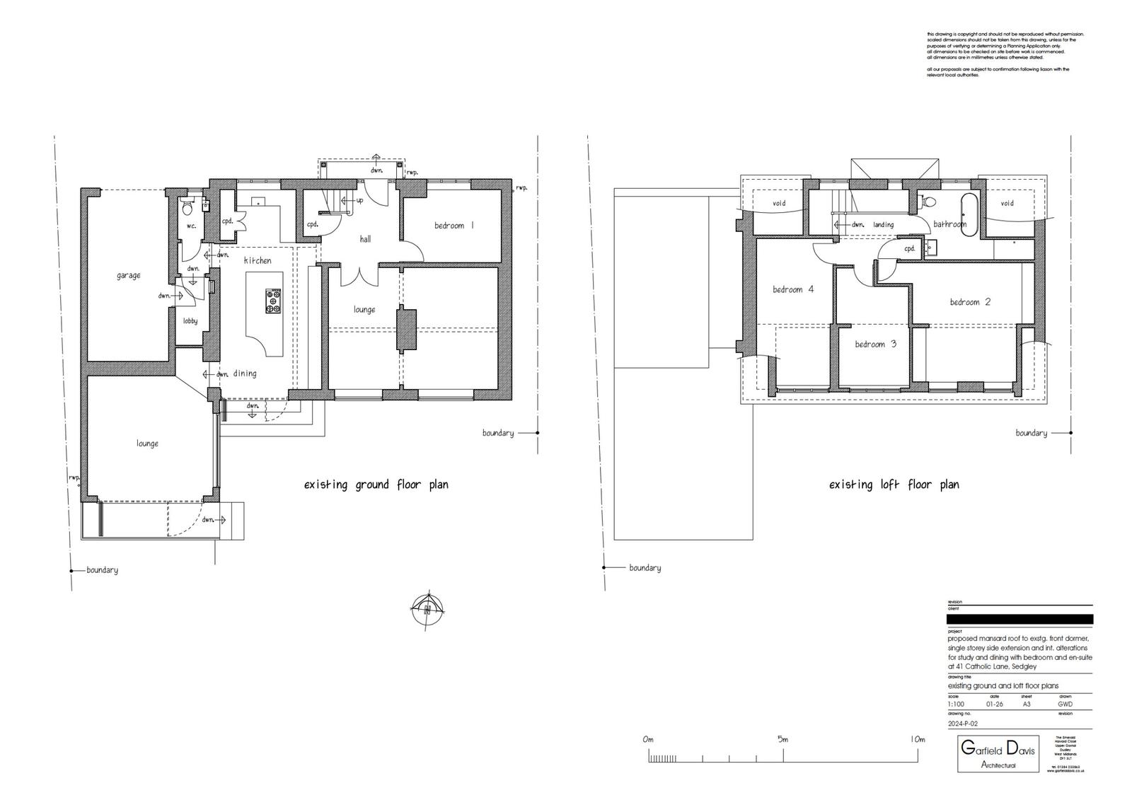
House extension
Received
03 Feb 2026
New homes
0
Full proposal
Single storey side extension (garage conversion) and new front dormer
Documents
Have your say
Your comment matters. Councils must consider every representation that raises material planning considerations.