← Dudley Metropolitan Borough Council

Status

Registered application House extension
Received
04 Feb 2026
New homes
0

Full proposal

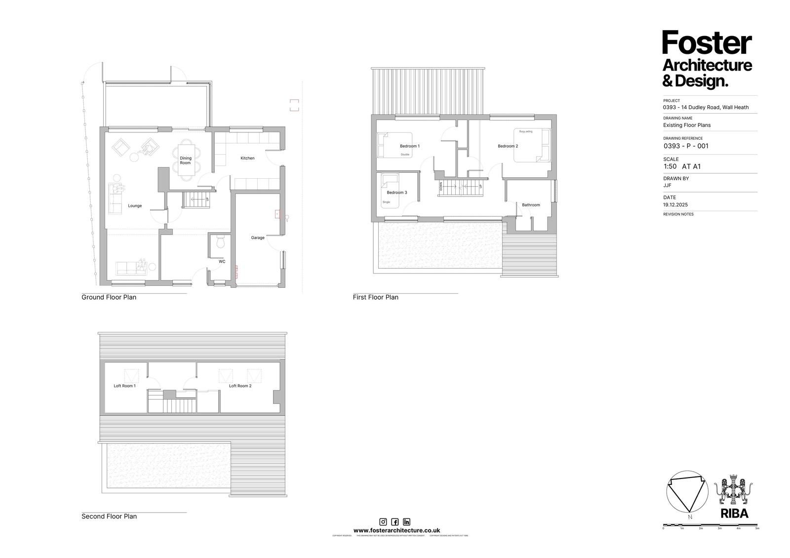
First floor extension, single storey rear extension and conversion of existing garage.

Documents

DCLOCPLN
Archived · Original link
DCFLOPLN
Archived · Original link
DCFLOPLN
Archived · Original link

Have your say

Your comment matters. Councils must consider every representation that raises material planning considerations.

Write a comment