← Dudley Metropolitan Borough Council
P26/0133
Dudley Metropolitan Borough Council
Status
Registered application
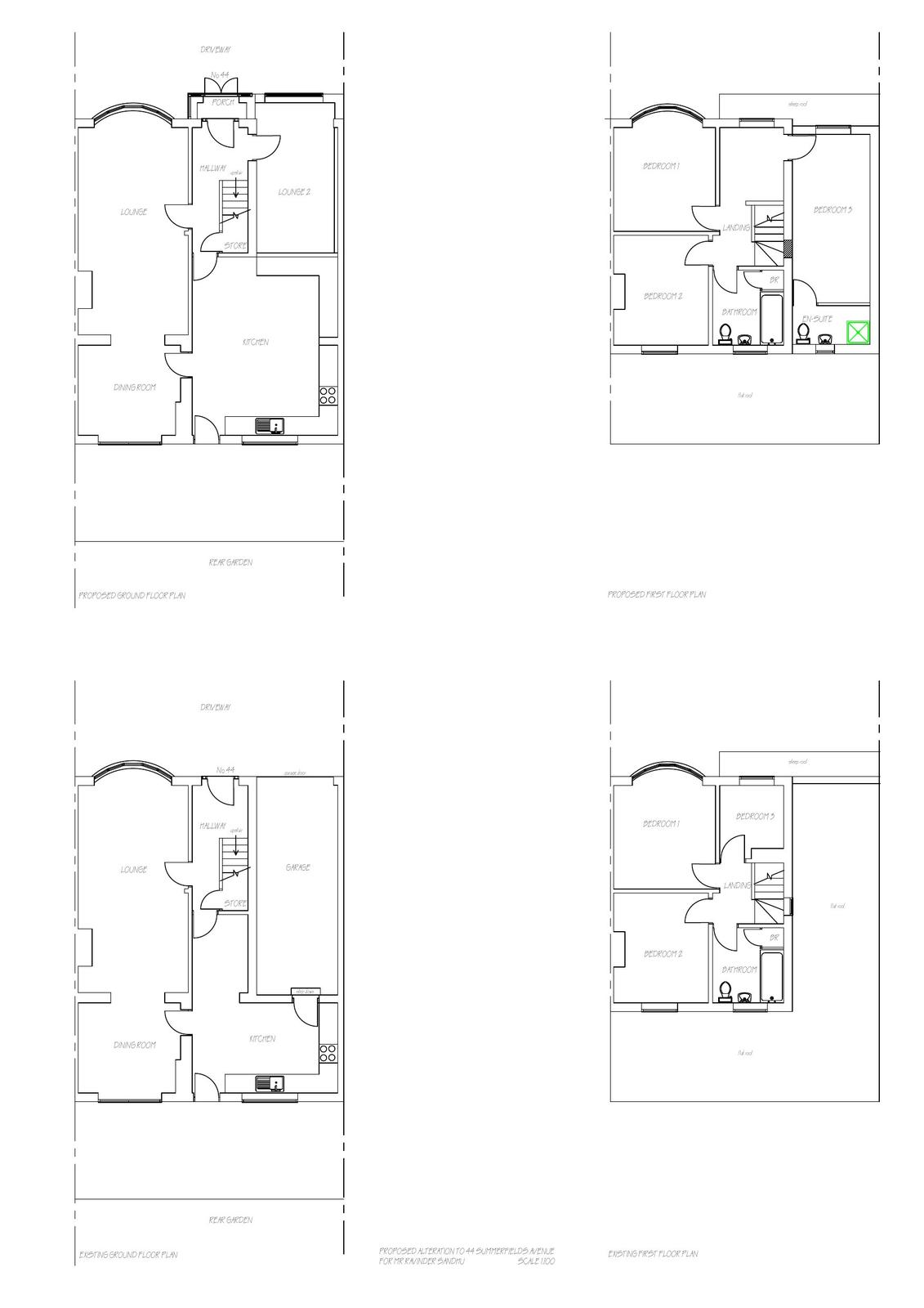
House extension
Received
04 Feb 2026
New homes
0
Full proposal
First floor side extension and garage conversion
Documents
Have your say
Your comment matters. Councils must consider every representation that raises material planning considerations.