← Dudley Metropolitan Borough Council

Status

Registered application Commercial
Received
Last month
New homes
0

Full proposal

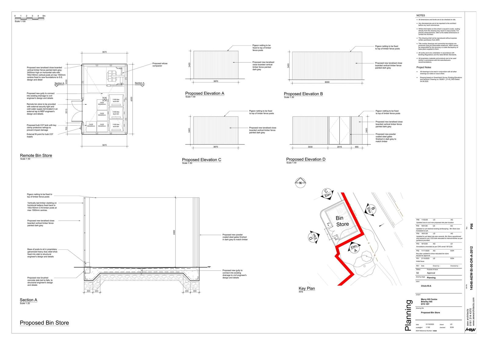
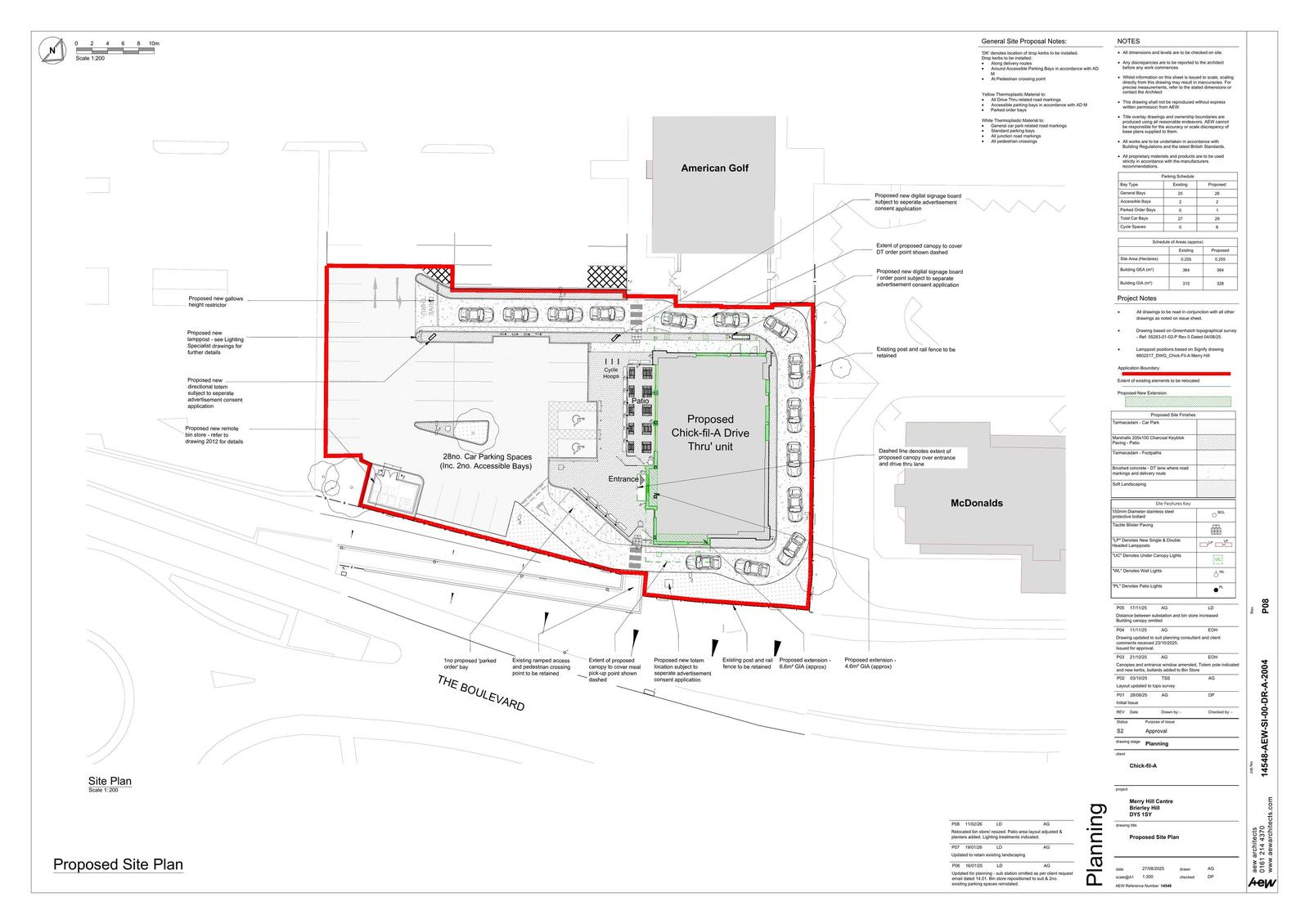
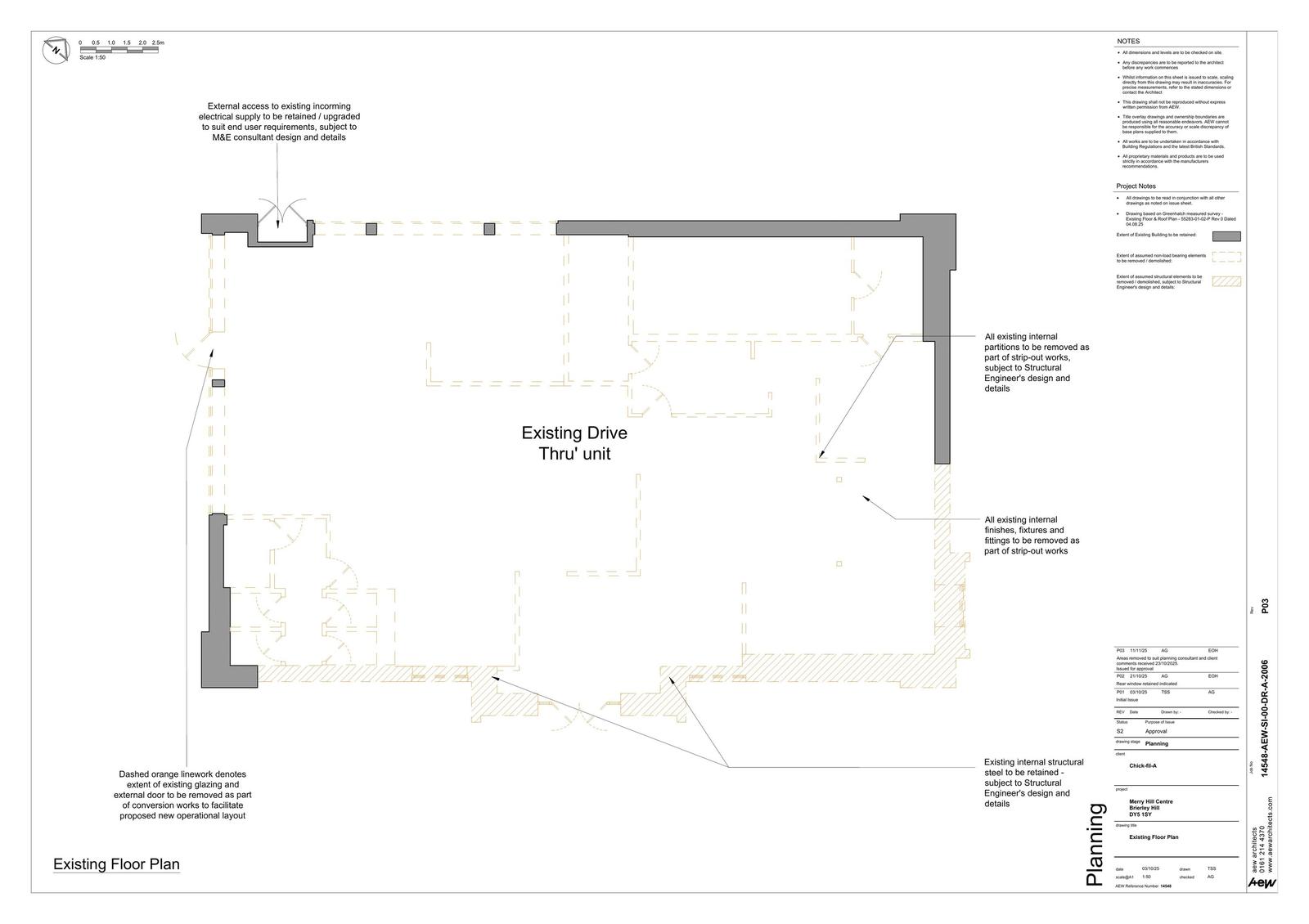
Refurbishment and reconfiguration of existing restaurant with drive-thru including two small extensions, external alterations including new cladding and glazing, revised roof profile, new entrance tower and canopies, rationalisation of existing drive-thru to a single lane, reconfiguration of car park layout, installation of a remote bin store, totem and associated engineering, servicing and site works. Change of use to restaurant with hot food takeaway sales (Sui Generis).

Documents

DCBLKPLN
Archived · Original link
DCELEVAT
Archived · Original link
DCFLOPLN
Archived · Original link
DCGENPLN
Archived · Original link
DCREPSRV
Archived · Original link
DCREPSRV
Archived · Original link
DCREPSRV
Archived · Original link
DCGENPLN
Archived · Original link
DCGENPLN
Archived · Original link
DCFLOPLN
Archived · Original link
DCGENPLN
Archived · Original link
DCSTEPLN
Archived · Original link
DCLOCPLN
Archived · Original link
DCREPSRV
Archived · Original link

Have your say

Your comment matters. Councils must consider every representation that raises material planning considerations.

Write a comment