← Back to London Borough of Ealing
Application
244543FUL
London Borough of Ealing · IDOX
Status
Pending Consideration
New housing
Received
29 Nov 2024
New dwellings
2
What you can do
Take Action
Make your voice heard. Authorities need to hear from people who support new homes.
Summary
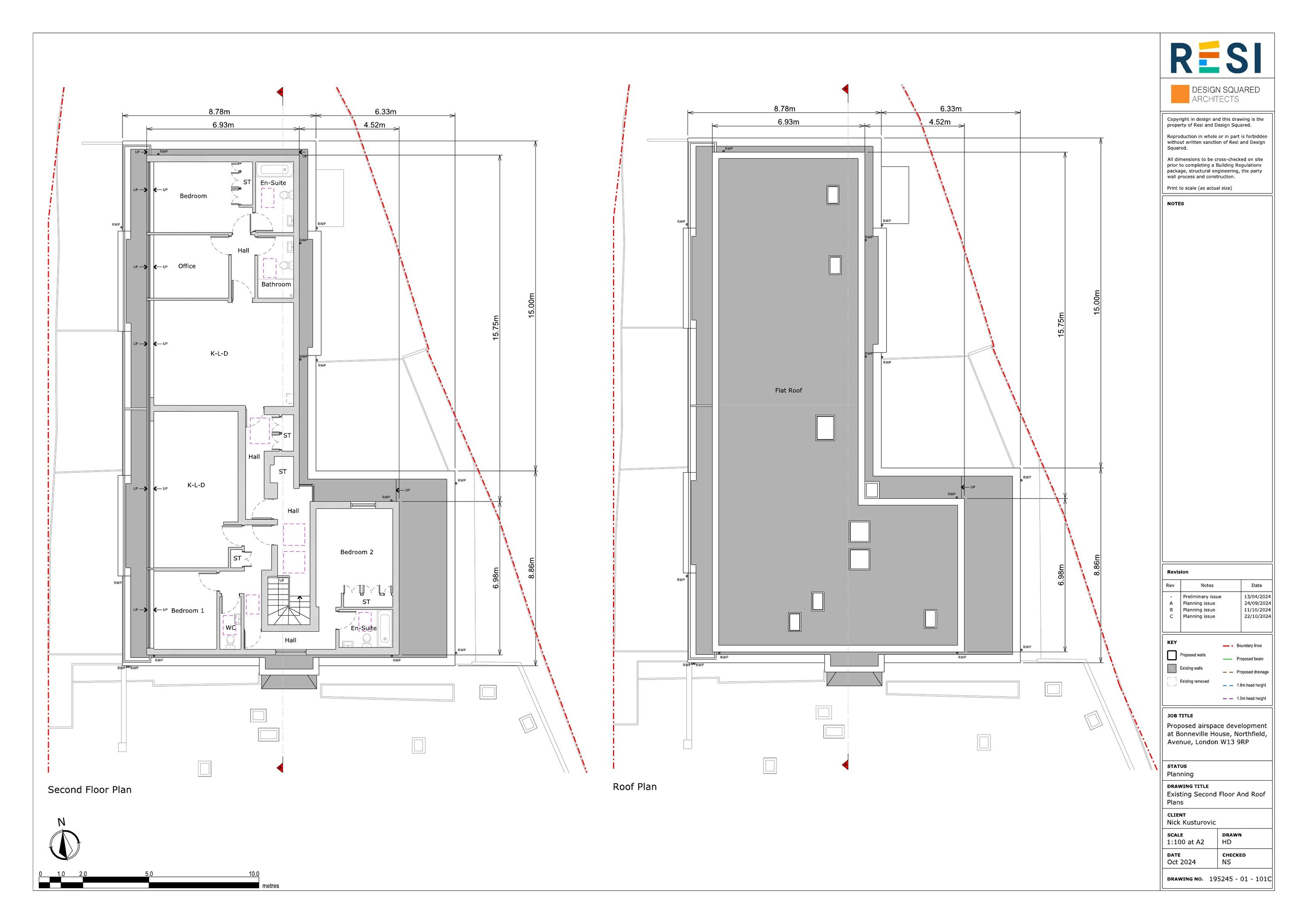
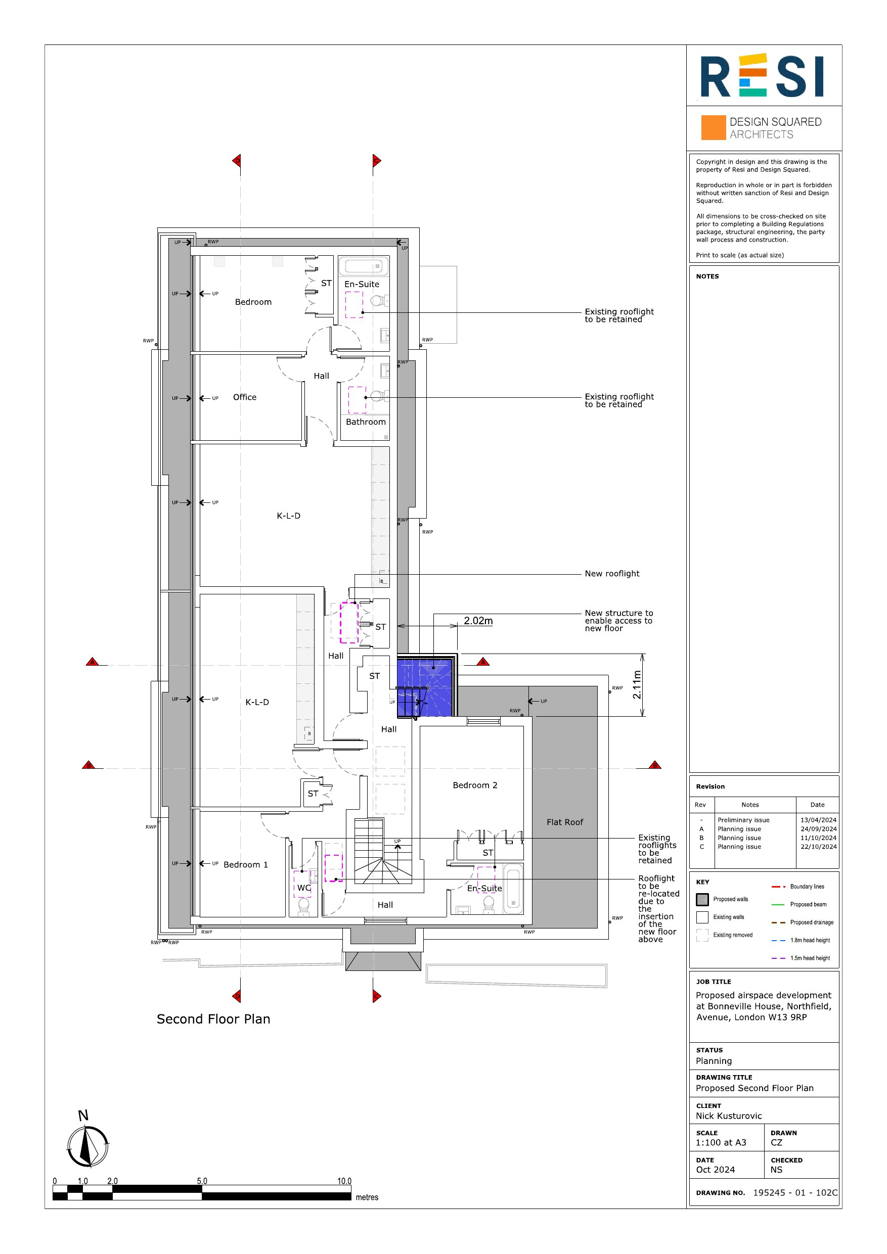
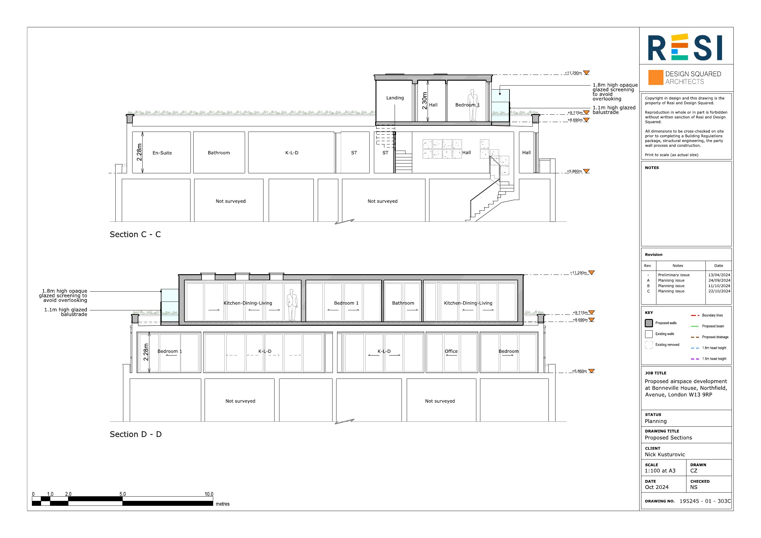
Add storey creating two flats with outdoor amenity; facade and window alterations.
Full Proposal
Creation of additional storey to provide additional two self-contained flats with outdoor amenity spaces: amendments to external facade at second floor level including brick cladding and alterations to windows
Detail pages
- View live detail on council site
- No archived detail page available.
Documents
ALL PLANS
Drawing
Not downloaded
· Council link
APPLICATIONFORMREDACTED
Application Form - Without Personal Data
Not downloaded
· Council link
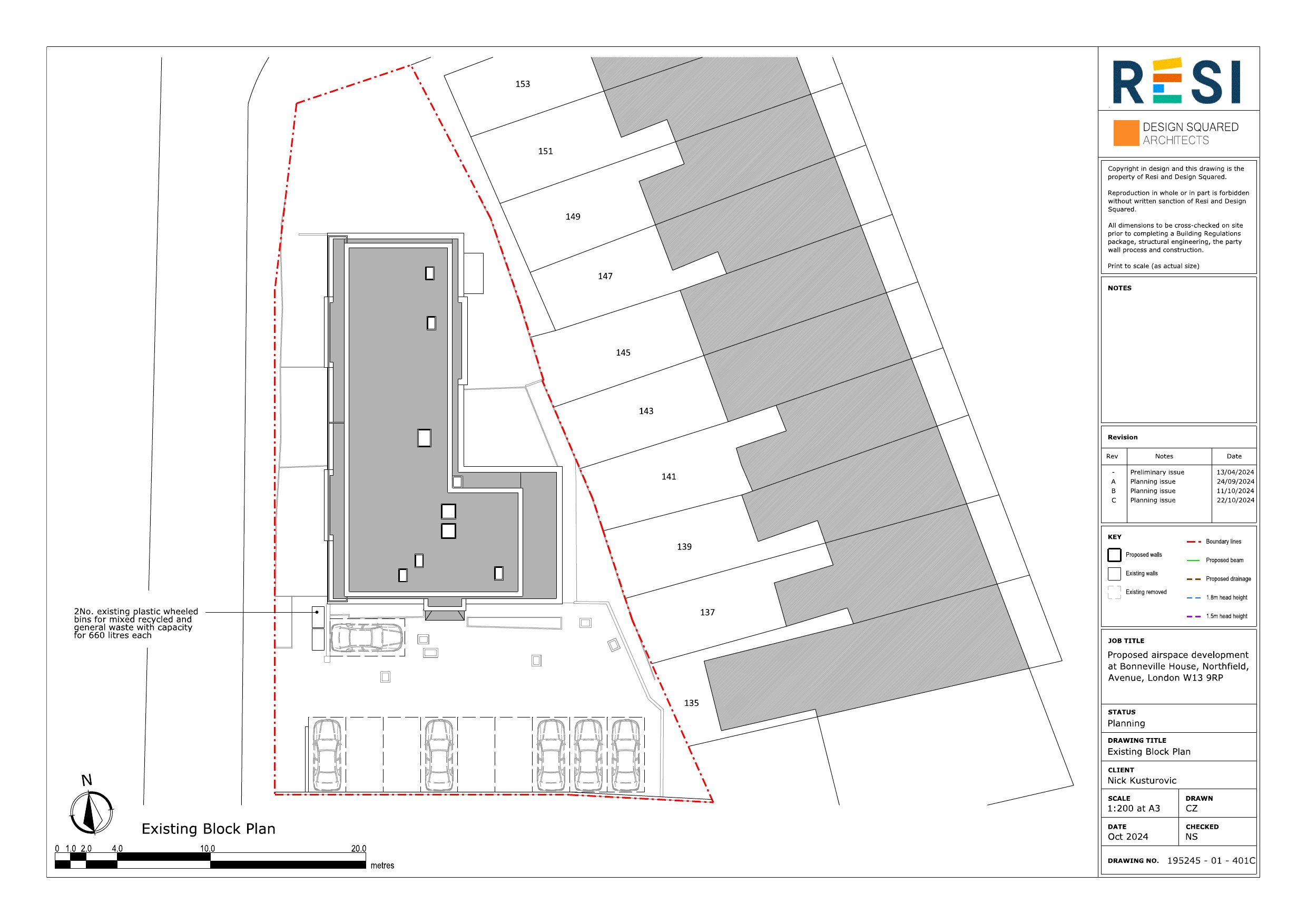
BLOCK PLANS
Draw - Exist Site/Block Plan
Not downloaded
· Council link
BONNEVILLE HOUSE - PLANNING STATEMENT
Planning Statement
Not downloaded
· Council link
CONSTRUCTION MANAGEMENT PLAN
Drawing
Not downloaded
· Council link
DESIGN ACCESS STATEMENT
Design and Access Statement
Not downloaded
· Council link
EXISTING AND PROPOSED BLOCK PLAN
Draw - Exist Site/Block Plan
Not downloaded
· Council link
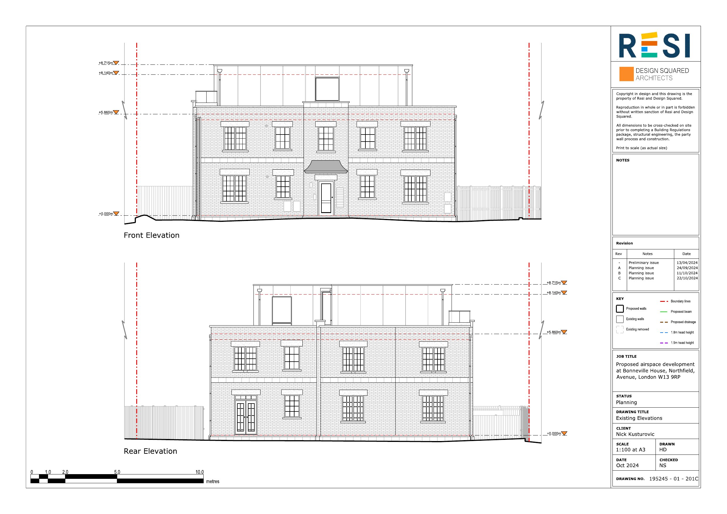
EXISTING ELEVATION
Drawing
Not downloaded
· Council link
EXISTING ELEVATION
Drawing
Not downloaded
· Council link
EXISTING GROUND FLOOR AND FIRST FLOORPLANS.PDF
Drawing
Not downloaded
· Council link
EXTERNAL DAYLIGHT AND SUNLIGHT STUDY
Daylight Assessment
Not downloaded
· Council link
INTERNAL DAS STUDY REV0
Daylight Assessment
Not downloaded
· Council link
LOCATIONPLAN
Draw - Location Plan
Not downloaded
· Council link
NEIGHBOUR SITE NOTICE
Site Notice
Not downloaded
· Council link
NEIGHBOUR SITE NOTICE
Site Notice
Not downloaded
· Council link
NEIGHBOUR SITE NOTICE
Site Notice
Not downloaded
· Council link
NEIGHBOUR SITE NOTICE
Site Notice
Not downloaded
· Council link
NOISE IMPACT ASSESSMENT
Noise Impact Assessment
Not downloaded
· Council link
PROPOSED GROUND AND FIRST FLOOR PLAN.PDF
Drawing
Not downloaded
· Council link
PROPOSED LEFT SIDE ELEVATION
Drawing
Not downloaded
· Council link
PROPOSED REAR ELEVATION
Drawing
Not downloaded
· Council link
PROPOSED RIGHT SIDE ELEVATION
Drawing
Not downloaded
· Council link
PROPOSED ROOF PLAN
Drawing
Not downloaded
· Council link
PROPOSED SECOND FLOOR PLAN
Drawing
Not downloaded
· Council link
PROPOSED SECTION
Drawing
Not downloaded
· Council link
PROPOSED SECTION
Draw - Exist Elevation (Front)
Not downloaded
· Council link
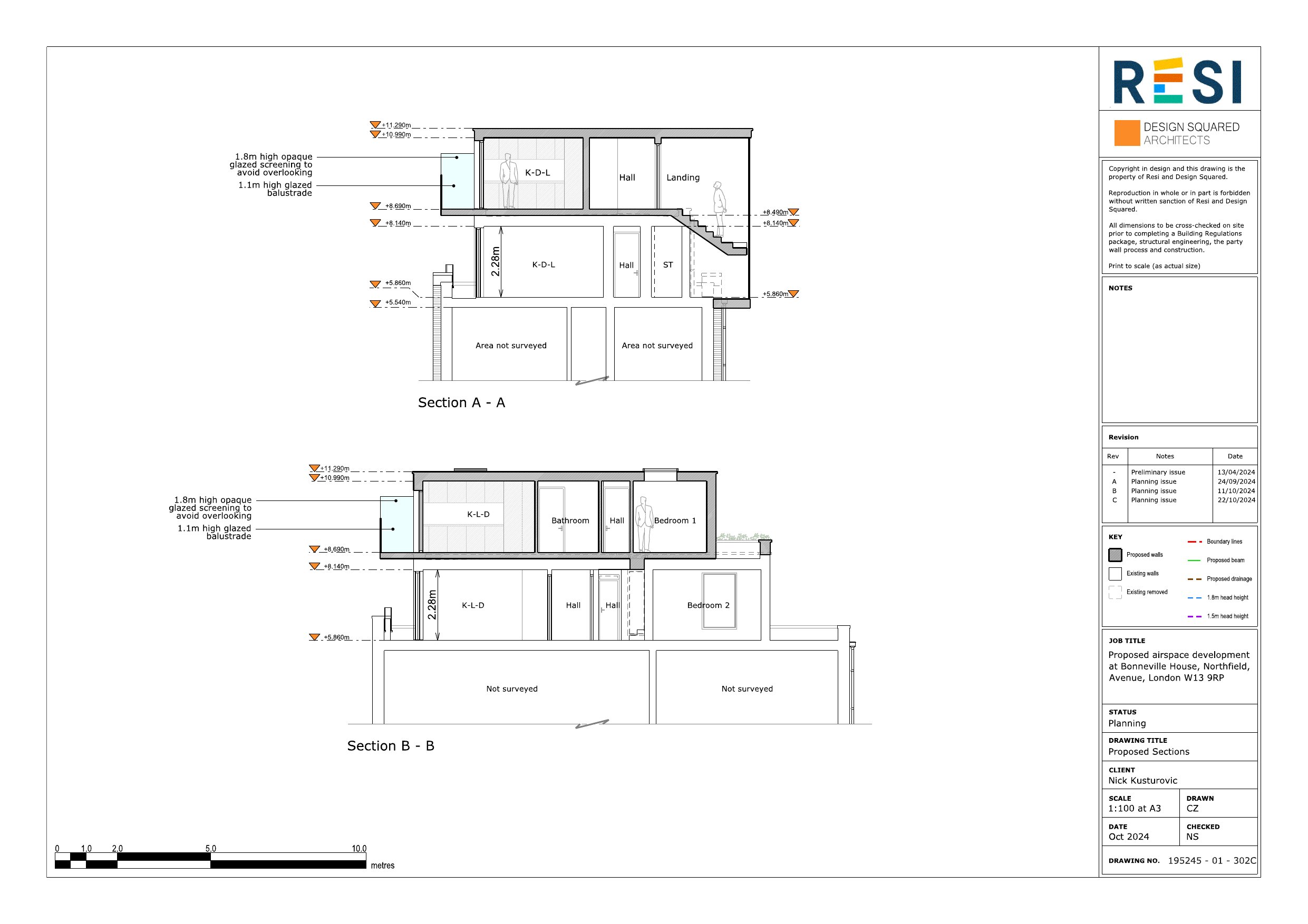
PROPOSED SECTIONS
Drawing
Not downloaded
· Council link
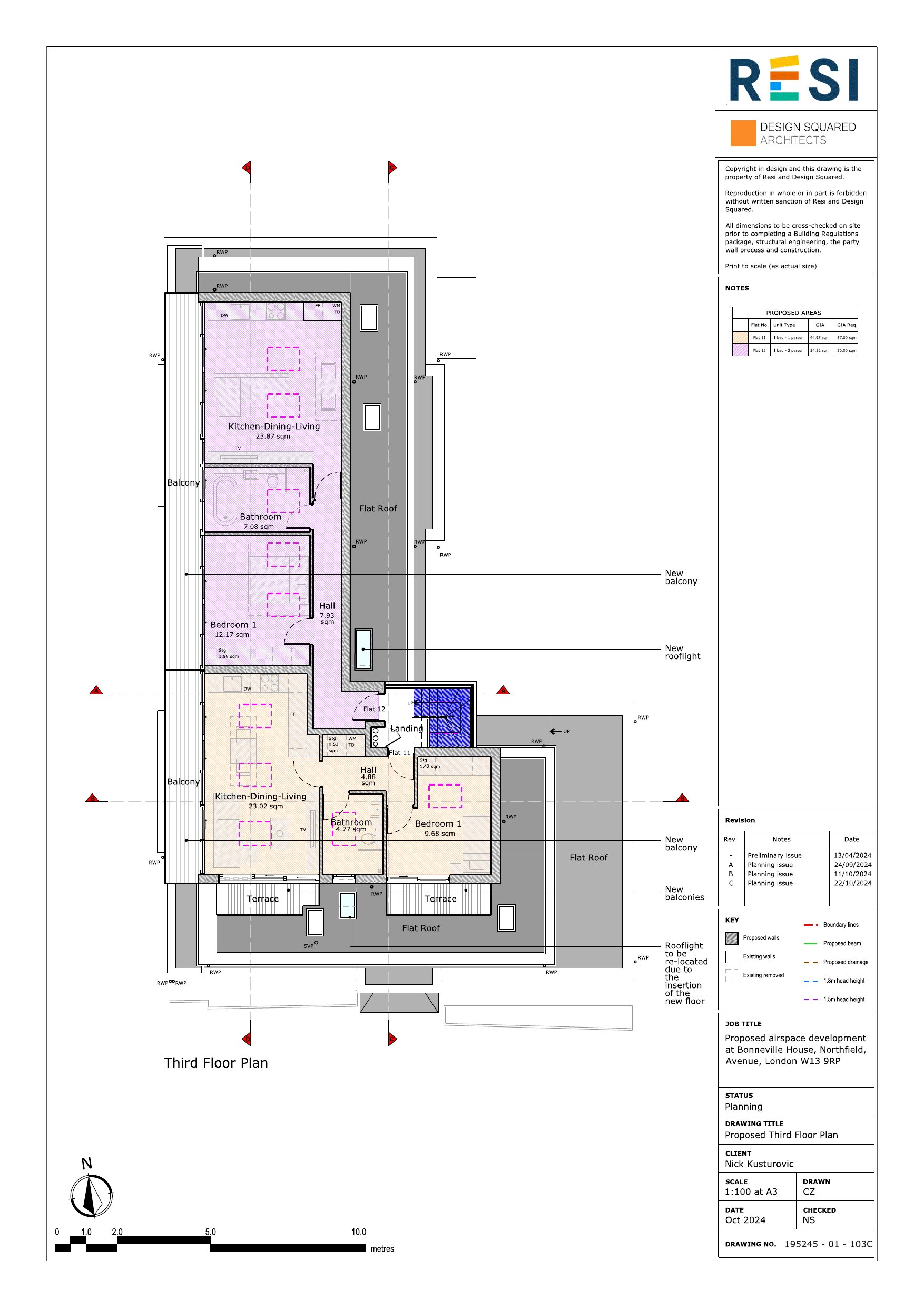
PROPOSED THIRD FLOOR PLAN
Drawing
Not downloaded
· Council link
PROPSOED FRONT ELEVATION
Drawing
Not downloaded
· Council link
SECOND FLOOR PLAN
Drawing
Not downloaded
· Council link
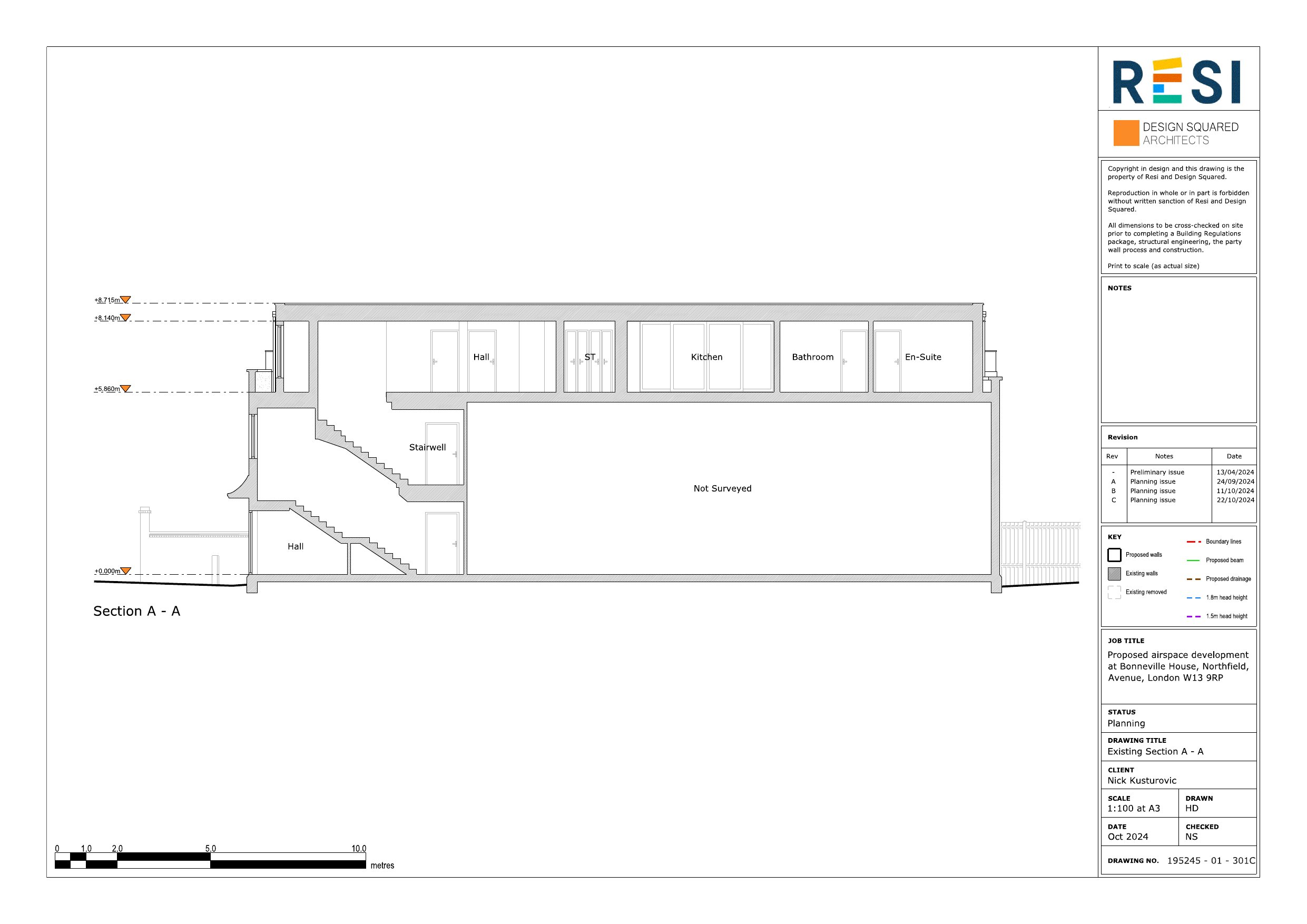
SECTION A
Drawing
Not downloaded
· Council link
SUDS SCHEMES-ML- XV-1
SuDS Documentation
Not downloaded
· Council link
SUSTAINABILITY DRAINAGE SYSTEM
SuDS Documentation
Not downloaded
· Council link
SUSTAINABILITY DRAINAGE SYSTEM
SuDS Documentation
Not downloaded
· Council link