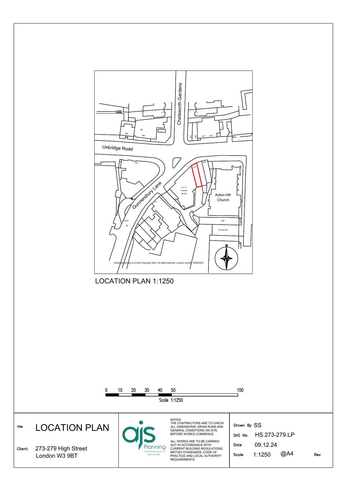
← London Borough of Ealing

Status

Prior Approval Not Required Change of use
Received
03 Dec 2024
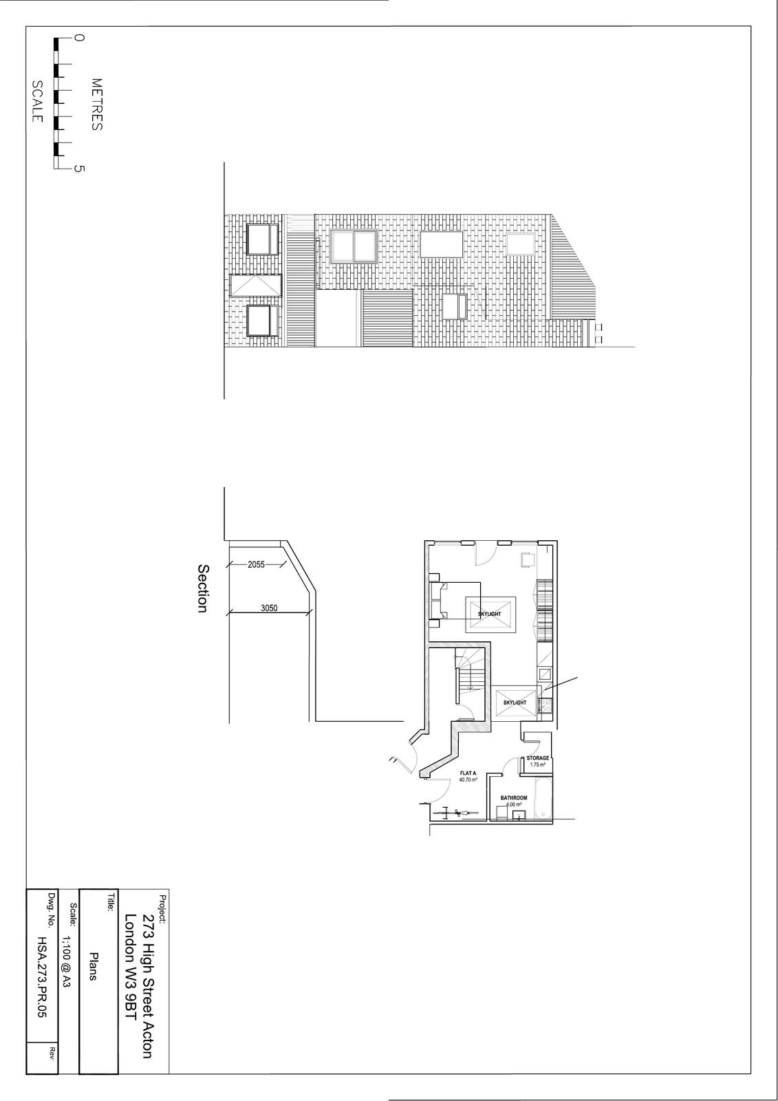
New homes
1

Full proposal

Change of use from commercial unit (Use Class E) to one self-contained flat (Use Class C3) (Class MA, 56 day Prior Approval Process)

Documents

Site Notice
Archived · Original link
Site Notice
Archived · Original link
Application Form - Redacted
Archived · Original link
Site Notice
Archived · Original link
Daylight Assessment
Archived · Original link
Decision
Archived · Original link
Drawing
Archived · Original link
Officer Report
Archived · Original link
Drawing
Archived · Original link
Drawing
Archived · Original link
Supporting Documentation
Archived · Original link

Have your say

Your comment matters. Councils must consider every representation that raises material planning considerations.

Write a comment