← Back to London Borough of Ealing
Application
244675CPL
London Borough of Ealing · IDOX
Status
Permitted Development
Change of use
Received
09 Dec 2024
New dwellings
0
What you can do
Take Action
Make your voice heard. Authorities need to hear from people who support new homes.
Summary
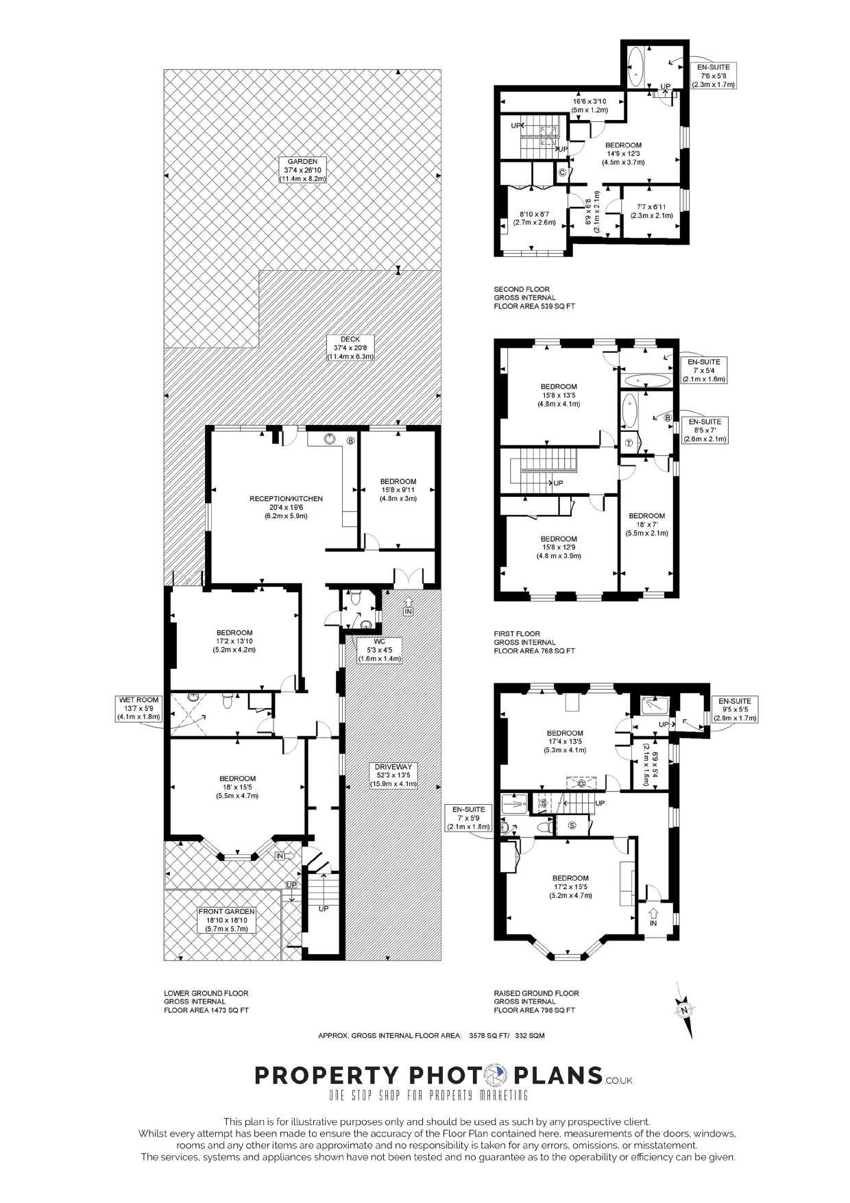
Deconversion of self-contained flats into one single-family dwellinghouse.
Full Proposal
Deconversion of residential building consisting of self-contained flats into one single family dwellinghouse
Detail pages
- View live detail on council site
- No archived detail page available.
Documents
APPLICATIONFORMREDACTED
Application Form - Without Personal Data
Not downloaded
· Council link
DECISION NOTICE
Decision
Not downloaded
· Council link
FLOORPLAN.PDF
Drawing
Not downloaded
· Council link
LOCATIONPLAN
Draw - Location Plan
Not downloaded
· Council link
OFFICERS REPORT
Officer Report
Not downloaded
· Council link