← London Borough of Ealing

Status

Pending Consideration House extension
Received
09 Jun 2025
New homes
1

Full proposal

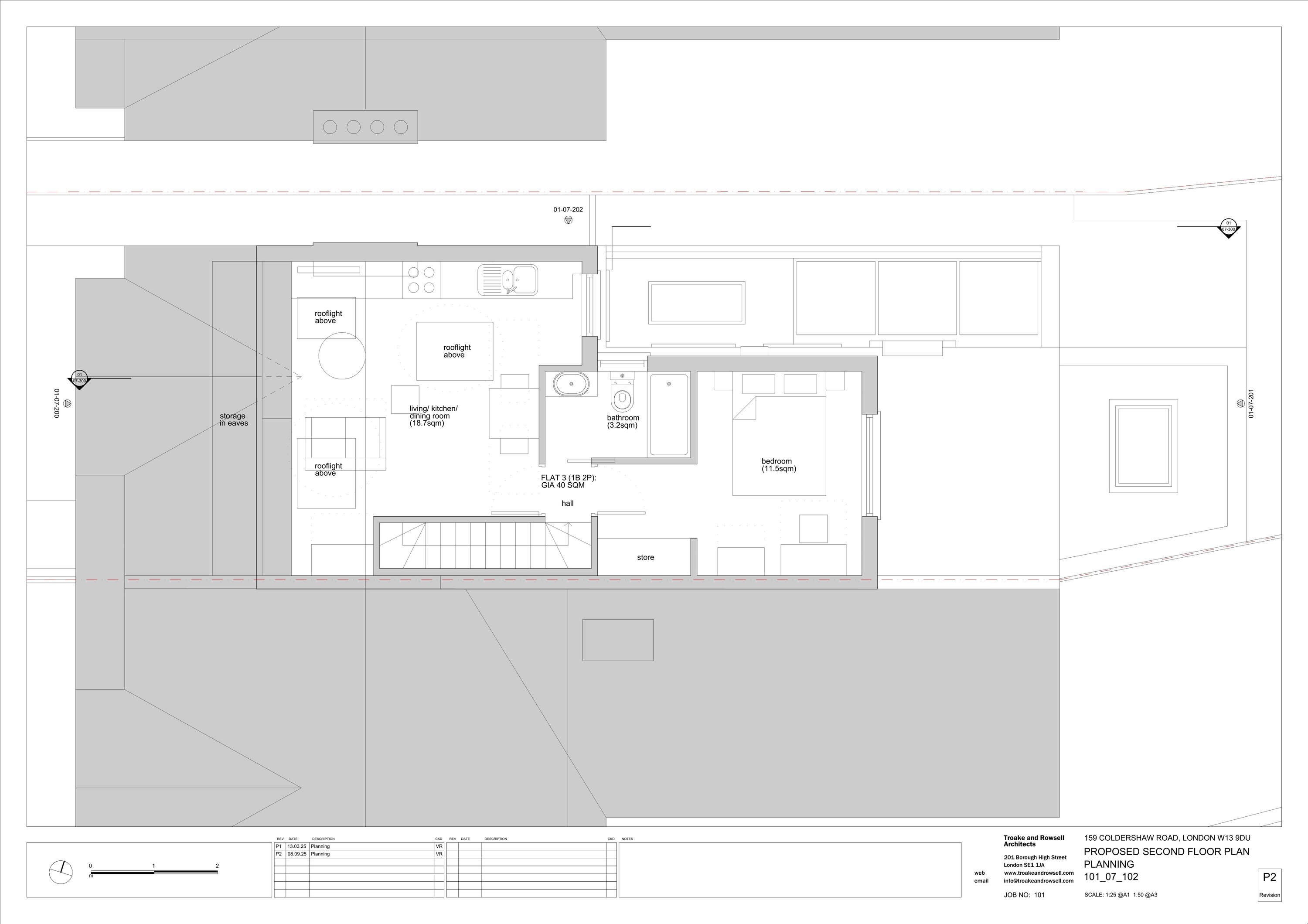
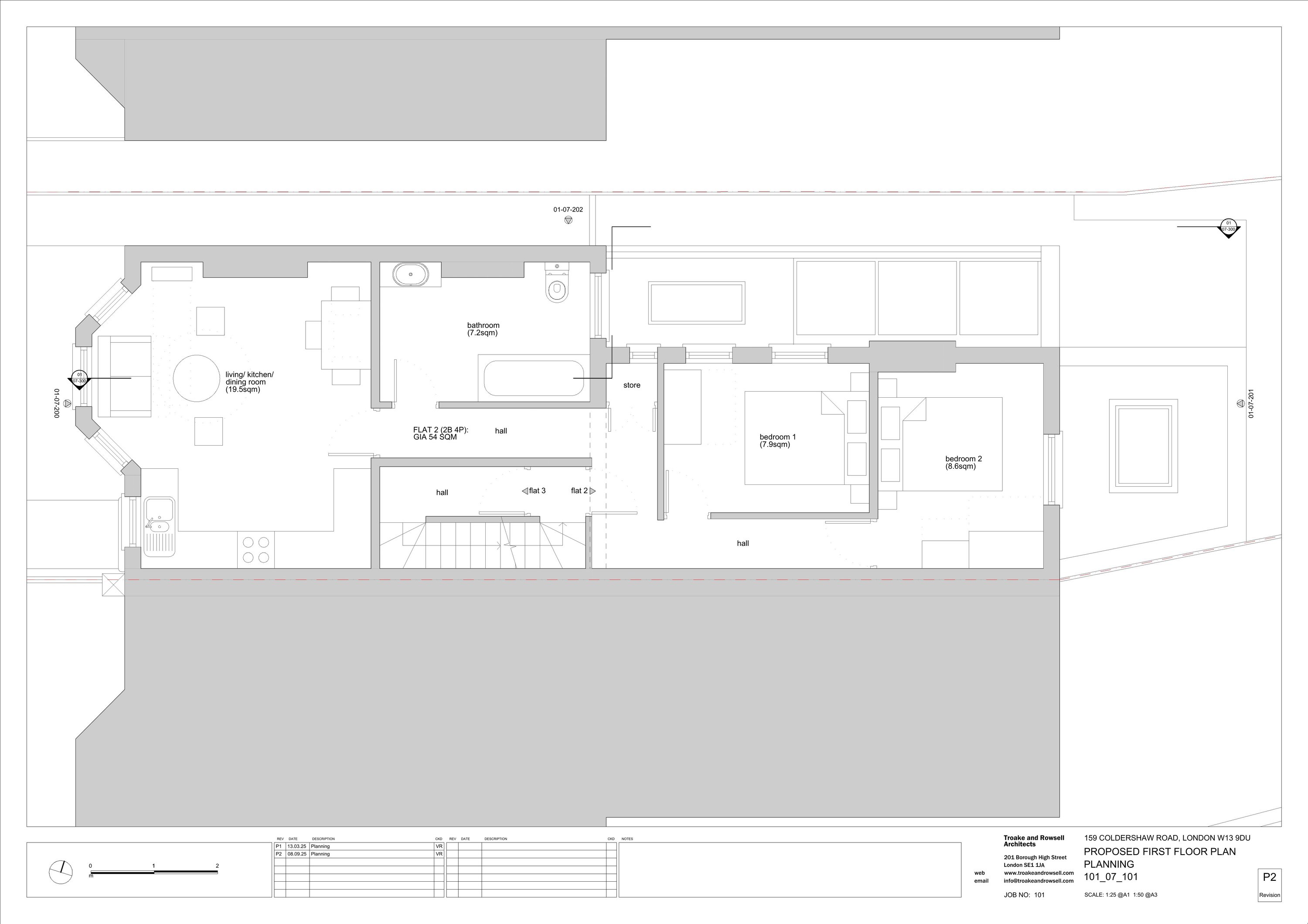
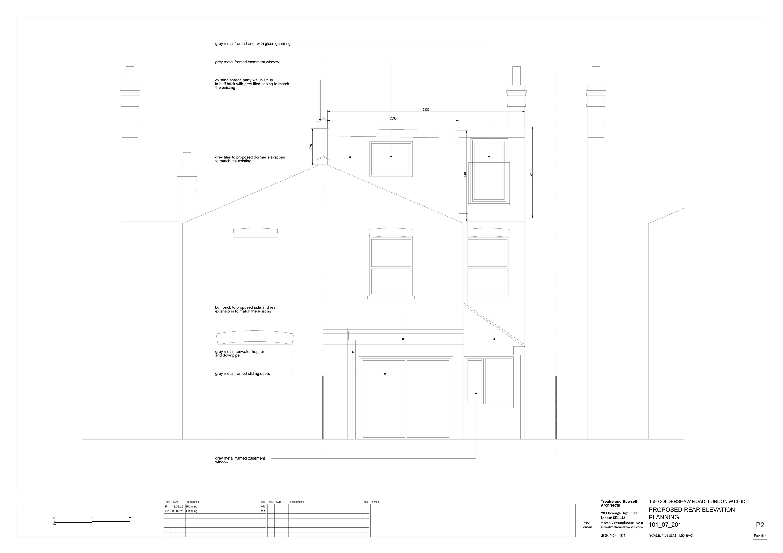
Single storey side and rear extension to the existing ground floor flat to create an additional bedroom and provide additional floorspace, Roof extension to rear (main) roof slope; part rear roof extension to rear outrigger roof slope and installation of two roof lights to front roofslope to create an additional 1 bedroom flat.

Documents

101_PHOTOGRAPHIC BOUNDARIES SURVEY.PDF
Photo
Not yet archived · Original link
APPLICATIONFORMREDACTED
Application Form - Without Personal Data
Not yet archived · Original link
EXISTING PLANS AND ELEVATIONS
Drawing
Not yet archived · Original link
LAMP POST
Site Notice
Not yet archived · Original link
LOCATIONPLAN
Draw - Location Plan
Not yet archived · Original link
NEIGHBOUR SITE NOTICE
Site Notice
Not yet archived · Original link

Have your say

Your comment matters. Councils must consider every representation that raises material planning considerations.

Write a comment