← London Borough of Ealing

Status

Pending Consideration New housing
Received
29 Jul 2025
New homes
9

Full proposal

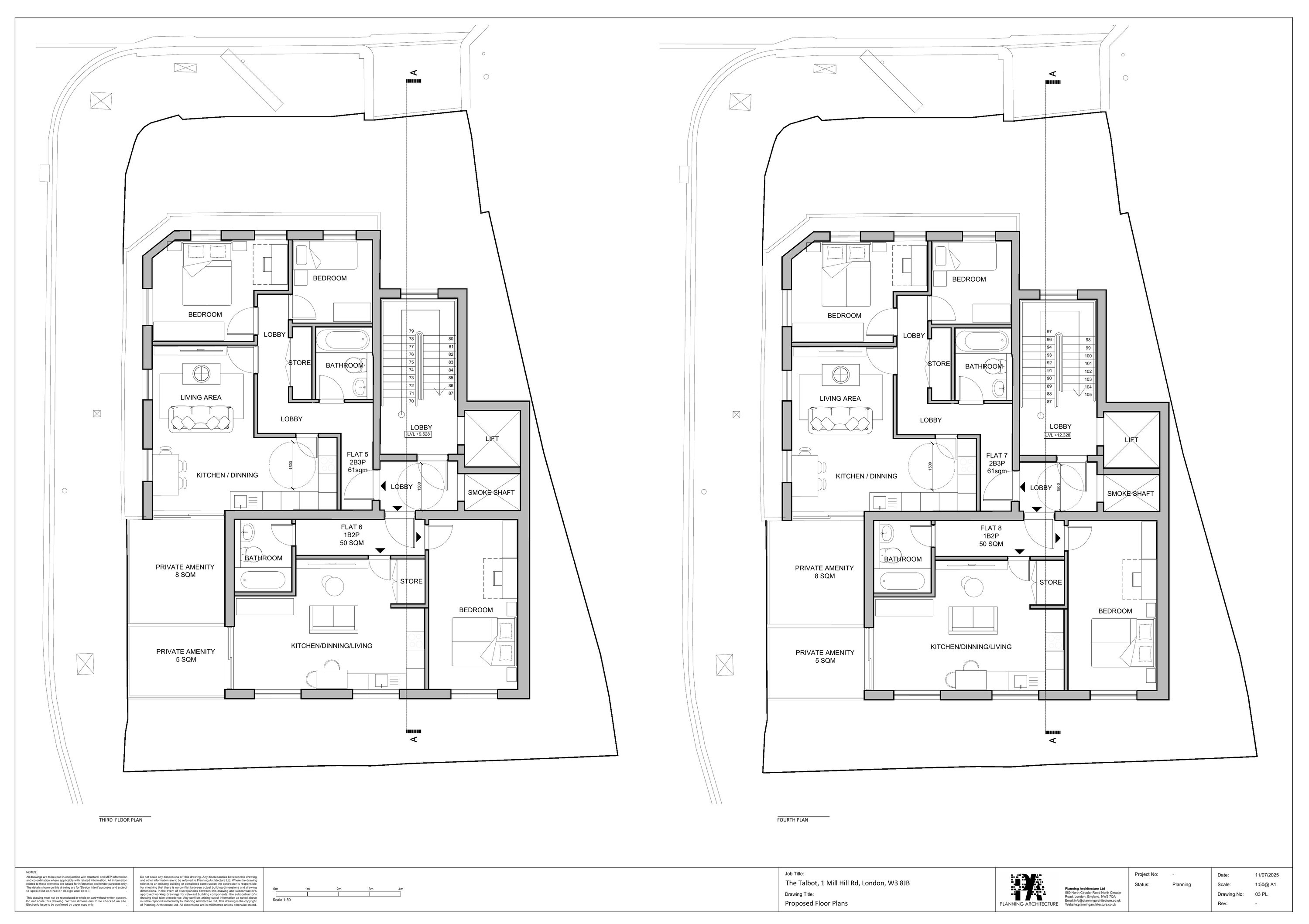
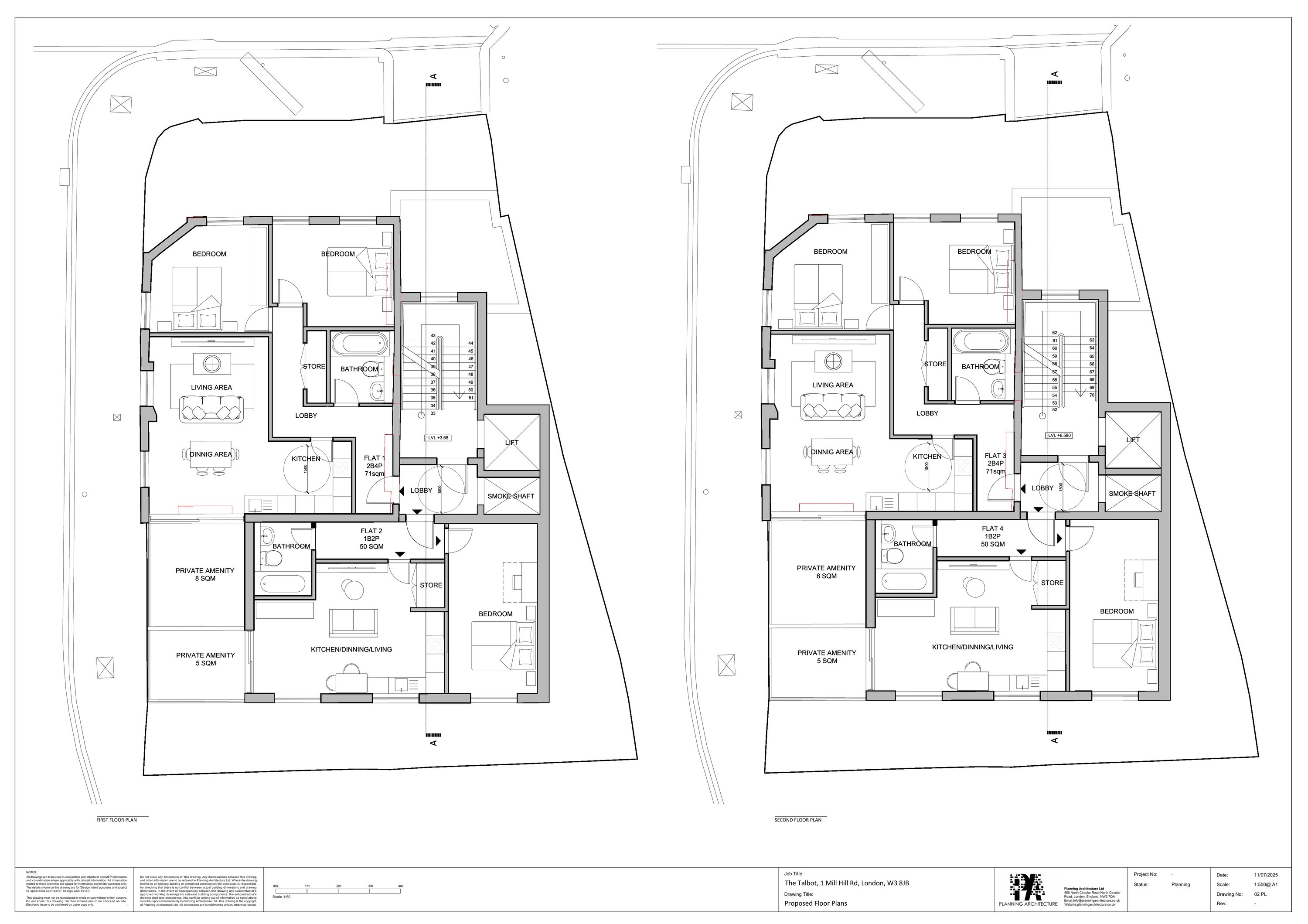
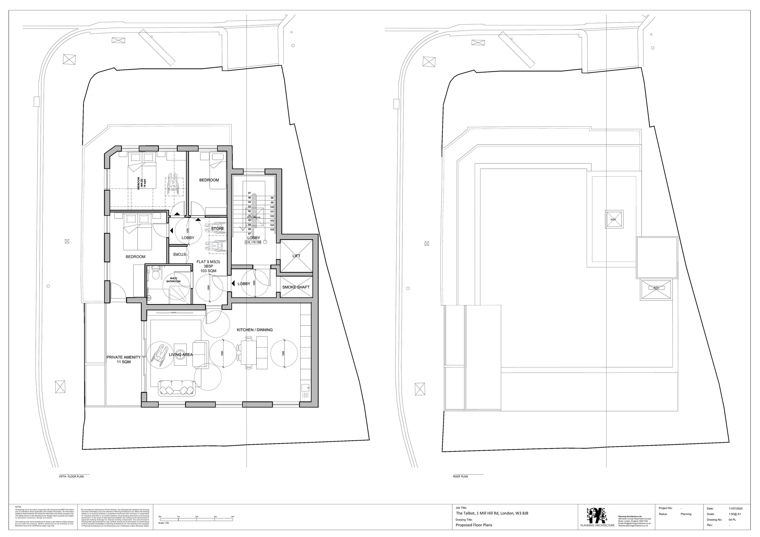
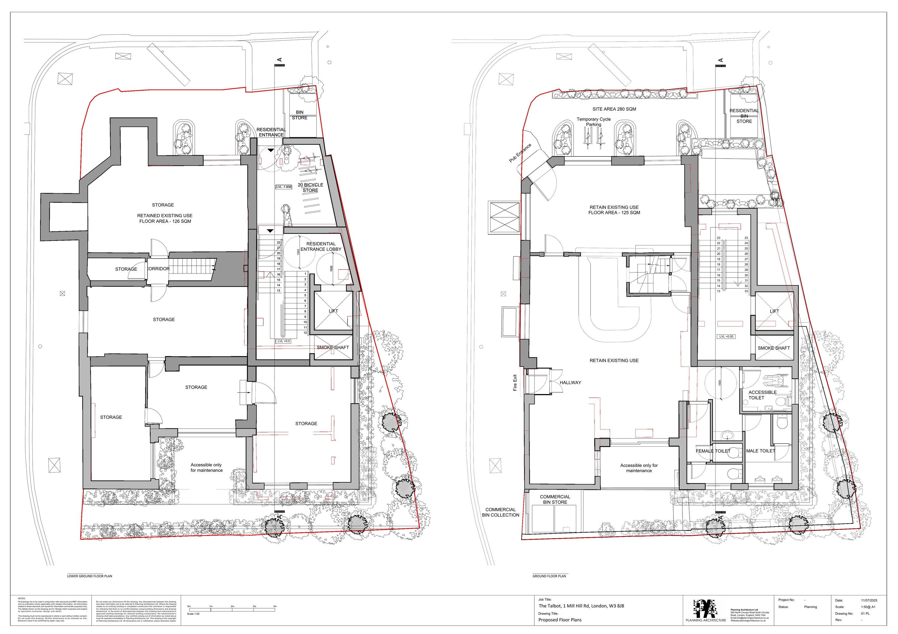
Retention of the pub at ground and lower ground floors with internal reconfigurations and two storey side and rear wraparound extensions, three storey roof extension to provide nine residential units (Use Class C3) accommodation across the upper floors with associated alteration to the fenestration. with provision of cycle storage, bin storage.

Documents

05 THE TALBOT PROPOSED ELEVATION 05 FRONT ELEVATION
Drawing
Not yet archived · Original link
06 THE TALBOT PROPOSED ELEVATION 06 REAR ELEVATION
Drawing
Not yet archived · Original link
07 THE TALBOT PROPOSED ELEVATION 07 SIDE ELEVATION
Drawing
Not yet archived · Original link
08 THE TALBOT PROPOSED SECTIONS 08 SECTION AA
Drawing
Not yet archived · Original link
21 07 2025 PLANNING STATEMENT FINAL
Drawing
Not yet archived · Original link
252898FUL SM.PDF
Site Notice
Not yet archived · Original link
3397 THE TALBOT DAYLIGHT AND SUNLIGHT IMPACT ASSESSMENT REPORT
Drawing
Not yet archived · Original link
3397 THE TALBOT SUSTAINABILITY AND ENERGY STATEMENT R00
Drawing
Not yet archived · Original link
APPLICATIONFORMREDACTED
Application Form - Without Personal Data
Not yet archived · Original link
DAS STATEMENT THE TALBOT 1 MILL HILL ROAD
Drawing
Not yet archived · Original link
EXISTING PLANS AND ELEVATIONS
Drawing
Not yet archived · Original link
NEIGHBOUR SITE NOTICE
Site Notice
Not yet archived · Original link
PROPOSED ELEVATION FRONT ELEVATION.PDF
Drawing
Not yet archived · Original link
PROPOSED ELEVATION REAR ELEVATION REV A (002).PDF
Drawing
Not yet archived · Original link
PROPOSED ELEVATION SIDE ELEVATION REV A.PDF
Drawing
Not yet archived · Original link
RP 3396 THE TALBOT 1 MILL HILL ROAD ACTON FACADE ASSESSMENT P01
Drawing
Not yet archived · Original link
THE TALBOT PRE APP RESPONSE STATEMENT
Drawing
Not yet archived · Original link

Have your say

Your comment matters. Councils must consider every representation that raises material planning considerations.

Write a comment