← London Borough of Ealing

Status

Awaiting Legal Agreement Change of use
Received
10 Oct 2025
New homes
3

Summary

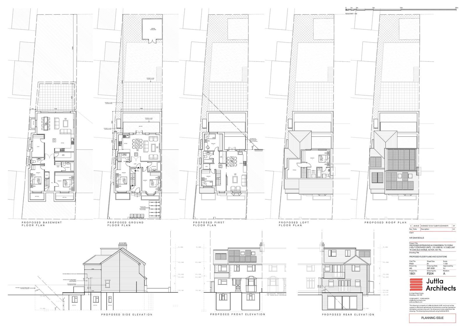
Convert HMO into three self-contained units with basement, extensions and roof alterations.

Full proposal

Conversion of existing House in Multiple Occupation (HMO) into three self-contained residential units; excavation of a basement with front lightwells; part single and part two storey rear extension with balcony at ground floor level and roof terrace at first floor level; alterations of main roof from hip to gable end and over two storey side extension; rear roof extension; installation of two rooflights to front roofslope and solar panels to front and rear roofslopes

Documents

253847FUL SITE NOTICE MAP SN X 5.PDF
Site Notice
Not yet archived · Original link
APPLICATIONFORMREDACTED
Application Form - Without Personal Data
Not yet archived · Original link
DRAFT DECISION NOTICE
Decision
Not yet archived · Original link
NEIGHBOUR SITE NOTICE
Site Notice
Not yet archived · Original link
OFFICERS REPORT
Officer Report
Not yet archived · Original link
P101 - LOCATION PLAN
Draw - Location Plan
Not yet archived · Original link
P202 - EXISTING PLANS AND ELEVATIONS
Drawing
Not yet archived · Original link
P203 - PREVIOUSLY APPROVED PLANS AND ELEVATIONS
Drawing
Not yet archived · Original link

Have your say

Your comment matters. Councils must consider every representation that raises material planning considerations.

Write a comment