← London Borough of Ealing

Status

Pending Consideration New housing
Received
17 Nov 2025
New homes
1

Full proposal

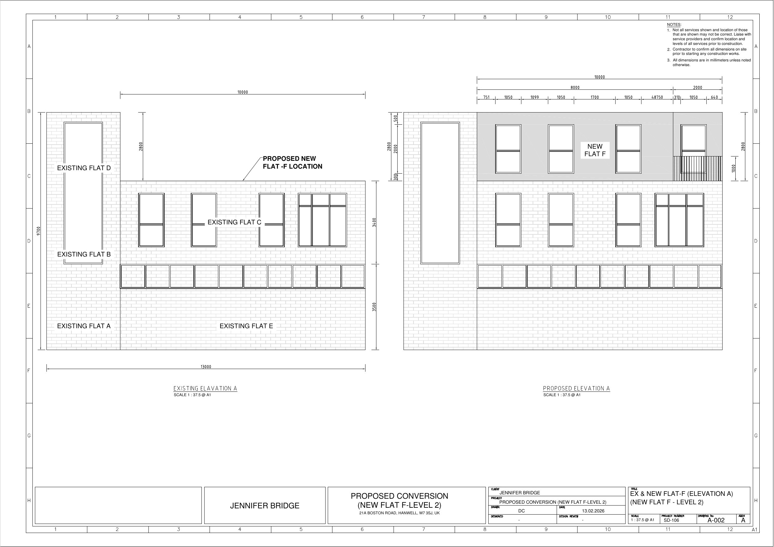
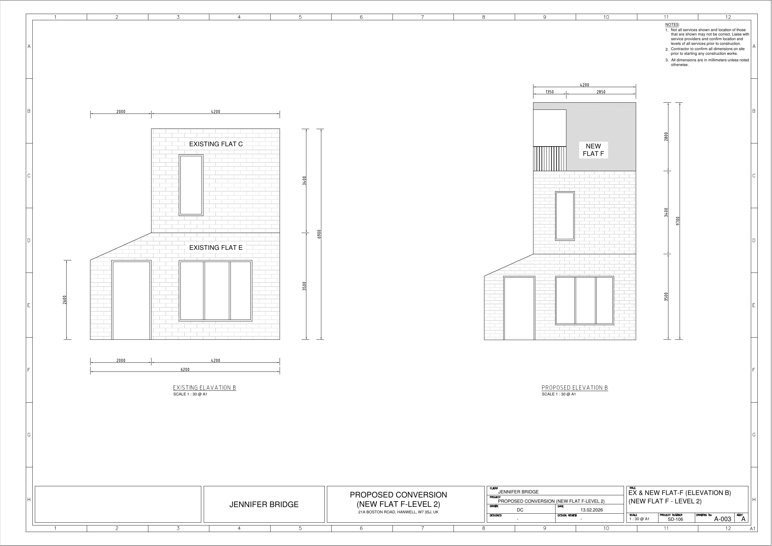
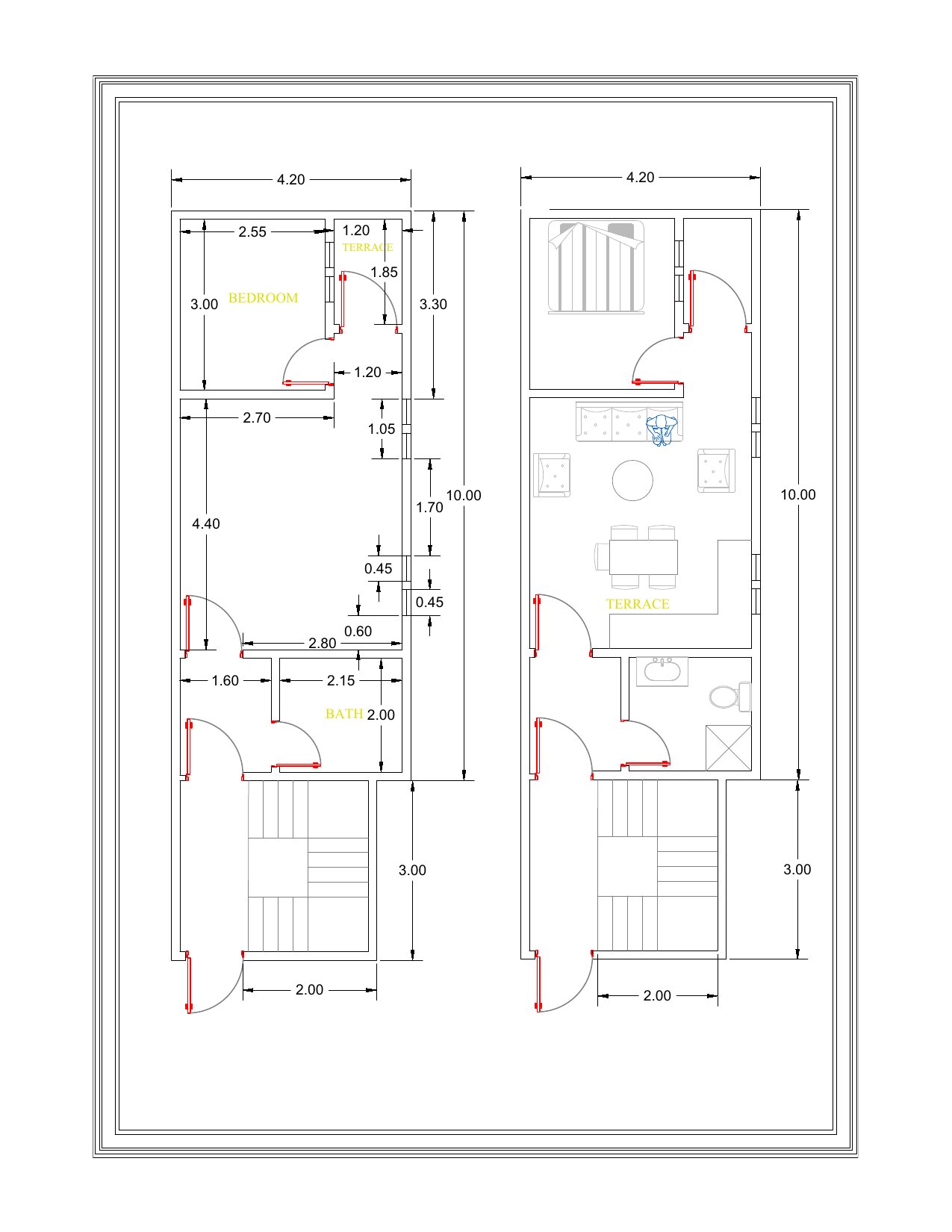
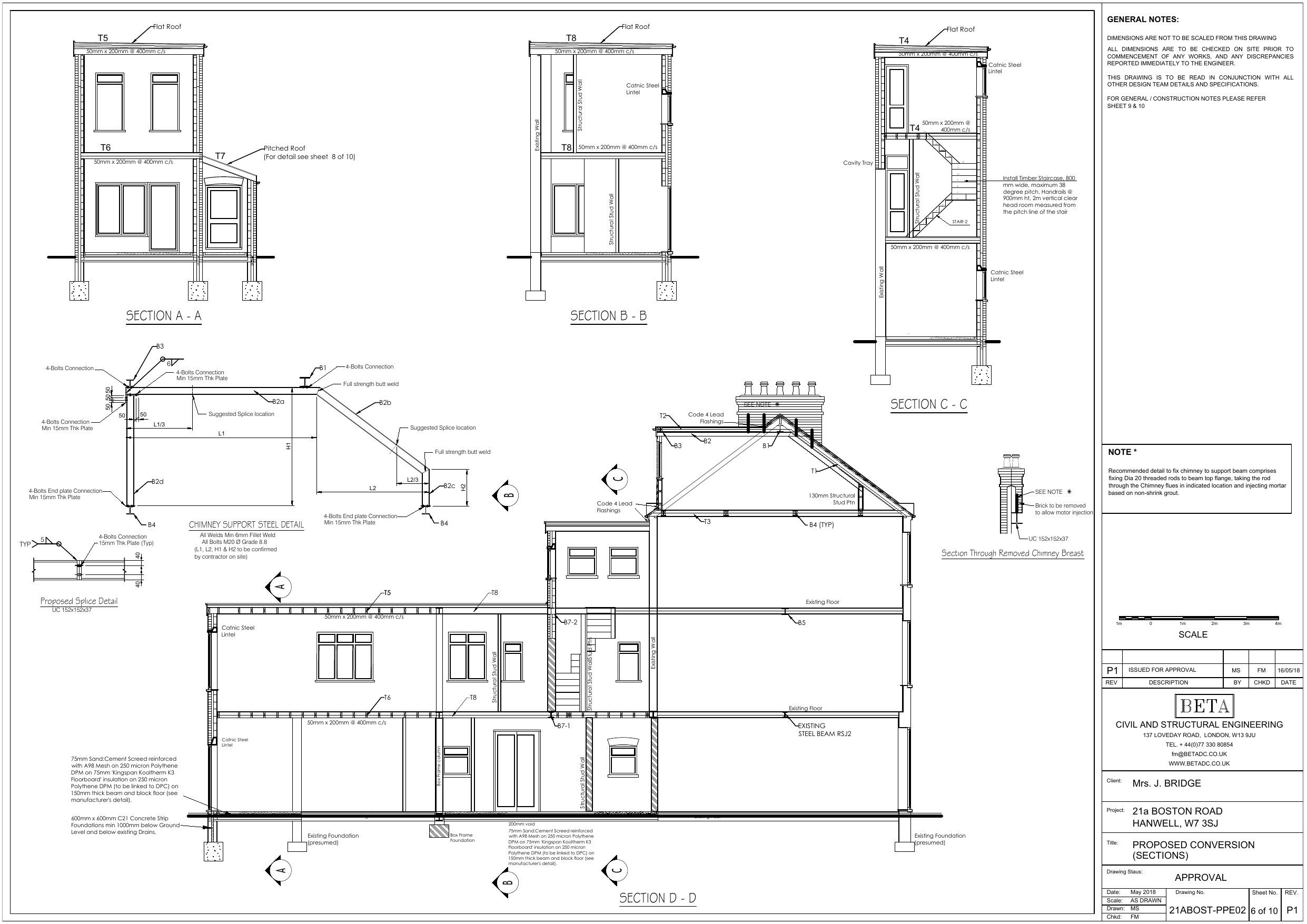
Construction to add another flat, to the outrigger to the rear of the building. Existing staircase and door will be used

Documents

Application Form - Without Personal Data
Archived · Original link
Site Notice
Archived · Original link
Supporting Documentation
Archived · Original link
Site Notice
Archived · Original link
Draw - Location Plan
Archived · Original link
Draw - Detail
Archived · Original link
Drawing
Archived · Original link
Drawing
Archived · Original link

Have your say

Your comment matters. Councils must consider every representation that raises material planning considerations.

Write a comment