← London Borough of Ealing

Status

Awaiting decision Change of use
Received
17 Nov 2025
New homes
1

Full proposal

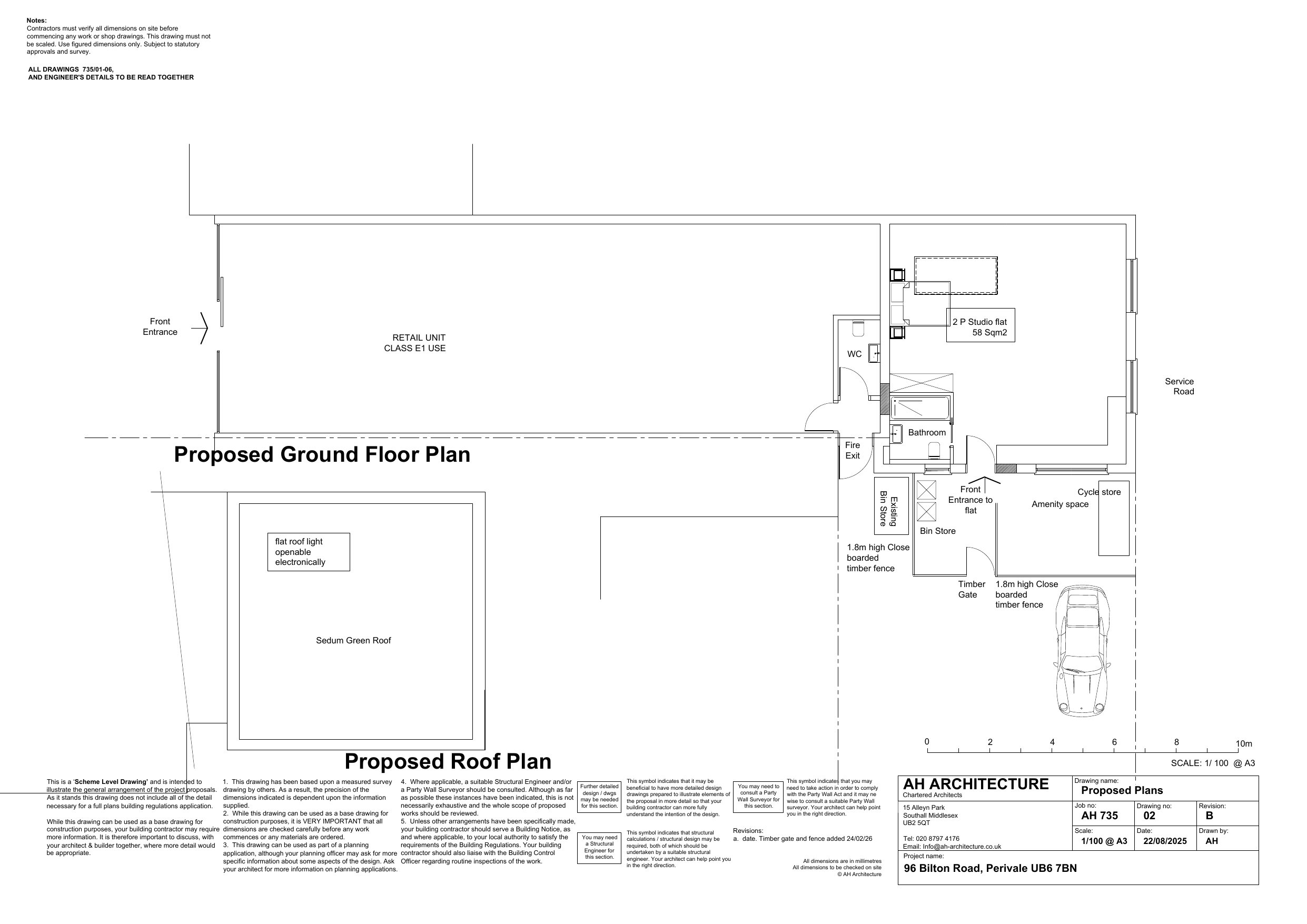
Conversion of part ground floor from retail/office into a studio-flat (C3) to the rear with provision of amenity space, cycle storage, parking space; alterations to side and rear fenestrations; installation of fence; alterations to side roof

Documents

Site Notice
Archived · Original link
Drawing
Archived · Original link
Application Form - Without Personal Data
Archived · Original link
Site Notice
Archived · Original link
Supporting Documentation
Archived · Original link
Supporting Documentation
Archived · Original link
Supporting Documentation
Archived · Original link

Have your say

Your comment matters. Councils must consider every representation that raises material planning considerations.

Write a comment