← London Borough of Ealing

Status

Pending Consideration Change of use
Received
18 Nov 2025
New homes
0

Full proposal

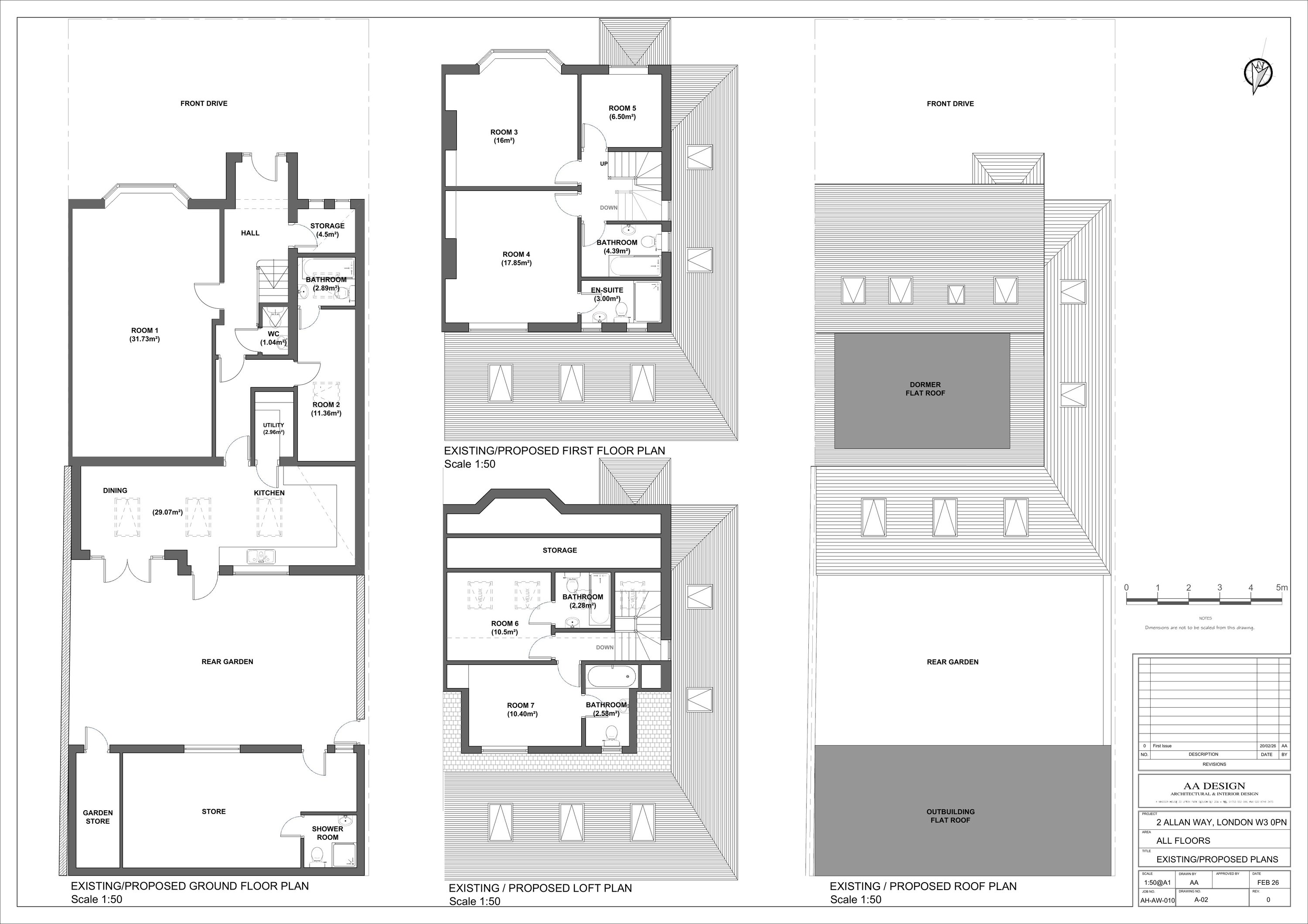
Change of use of a House in Multiple Occupation (HMO) (Use Class C4) into a Large House in Multiple Occupation (HMO) (Use Class Sui Generis) for 7 occupants (Retrospective)

Documents

Application Form - Without Personal Data
Archived · Original link
Site Notice
Archived · Original link
Draw - Location Plan
Archived · Original link
Site Notice
Archived · Original link
Draw - Detail
Archived · Original link
Draw - Detail
Archived · Original link
Draw - Detail
Archived · Original link

Have your say

Your comment matters. Councils must consider every representation that raises material planning considerations.

Write a comment